EasyManua.ls Logo

dolycon CT100 Series - Functions of the Main Circuit Terminals

dolycon CT100 Series
163 pages
Print Icon
To Next Page IconTo Next Page
To Next Page IconTo Next Page
To Previous Page IconTo Previous Page
To Previous Page IconTo Previous Page
Loading...
CT100 series inverters Installation and wiring
32
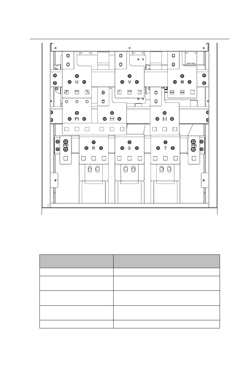
Figure 3-15 CT100-4T-355GCT100-4T-500G
3.5.2 Functions of the main circuit terminals
Table 3-4 Functions of the main circuit terminals
Terminals
Function
R, S, T
Three-phase power input terminals
(+), (-)
Reserved terminals for external braking
units, common DC bus terminals
(+), PB
Reserved terminals for external braking
resistors
P1, (+)
Reserved terminals for external DC
reactors
(-)
DC negative bus output terminal

Table of Contents

Related product manuals