EasyManua.ls Logo

EWM PHOENIX 333 PROGRESS PULS forceArc - Page 94

EWM PHOENIX 333 PROGRESS PULS forceArc
97 pages
Print Icon
To Next Page IconTo Next Page
To Next Page IconTo Next Page
To Previous Page IconTo Previous Page
To Previous Page IconTo Previous Page
Loading...
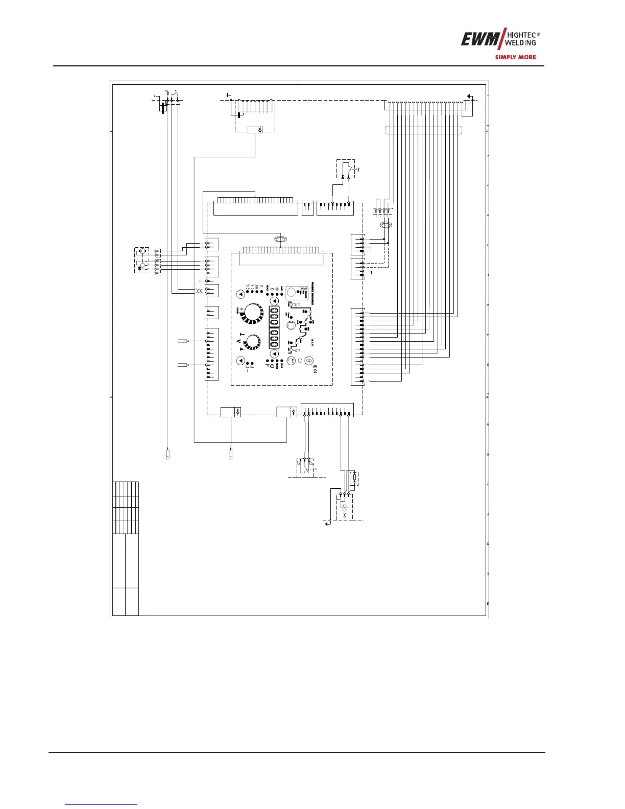
Circuit diagrams
PHOENIX 333 PROGRESS KG
94 Item No.: 099-005073-EWM01
A
B
C
D
E
F
G
H
J
K
L
M
N
P
R
S
T
U
V
NC
LED-A
+10V
DV(UP)
0V
BRT
US(DOWN)
LED-G
LED-D
LED-E
Code UP
LED-B
LED-C
Code DV
Code US
BRT
LED-F
Motor -
Motor +
X5-
Ringkern
1
+10V
2
LED-A
3
LED-B
4
LED-C
5
LED-D
6
LED-E
7
LED-F
8
LED-G
9
BRT
10
0V
11
US(DOWN)
12
DV(UP)
14
Code UP
15
Code US
16
Code DV
18
BRT
Frontseite
M2-1M2-1
M2-1
1
PE
1
2
3
4
X7-
15polig
D-Sub.
X1/10
X1/11
X1/12
X1/13
X1/14
X1/15
X1/16
X1/17
X1/18
X1/19
X1/20
X1/21
X1/22
X1/23
X1/24
X1/25
X1/1
X1/2
X1/3
X1/4
X1/5
X1/6
X1/7
X1/8
X1/9
X1/26
X1
Frontplatte
X10/2
X10/3
X10/4
X10/1
PE
X3/1
X3/2
X3
BRT
Systembus
X8
X1/10
X1/11
X1/12
X1/13
X1/14
X1/15
X1/16
X1/17
X1/18
X1/19
X1/20
X1/21
X1/22
X1/23
X1/24
X1/25
X1/1
X1/2
X1/3
X1/4
X1/5
X1/6
X1/7
X1/8
X1/9
X1/26
Ringkern
A5-
M 3 7 0 / 2
X5/12
X5/11
X5/10
X5/9
X5/8
X5/7
X5/6
X5/5
X5/4
X5/3
X5/2
X5/1
Gas/Schalter
X5
Systembus
15polig
D-Sub.
X11
X1
Frontplatte
Tacho
X10
X23
Zwischentrieb
X2X24
X24/1
X24/2
X24/3
X24/4
X23/1
X23/2
X23/3
X23/4
Fernregler
X2/1
X2/2
X2/3
X2/4
X2/5
X2/6
X2/7
X2/8
X2/9
X2/10
X2/11
X2/12
X2/13
X2/14
X2/15
X2/16
X2/17
X2/18
Push-Pull
M 3 7 0 / 1
X18
Peripherie1
X18/1
X18/2
X18/3
X18/4
X18/5
X18/6
X18/7
X18/8
X16/1
X16/2
ext. Motorversorgung
X16
A4-
X20/1
X20/2
Koffer-Motor
X20 X19
X19/1
X19/2
Gas/Wasserversorg.
X17/2
X17/3
X17/4
X17/1
X17/5
X17/6
X17/8
X17/9
X17/10
X17/7
X17/11
X17/12
X17
Peripherie2
1
0VAC
3
Gas
11
Up/Down
12
Programm
Y1-
Gas
1
2
PE
2
2
S1-
1
1
1
BRT
2
BRT
T?
PE6--1
1
Motor
2
Motor
1
Tacho
2
Tacho
3
Tacho
1
PE
Rückseite
3
SäWa
9
SäWa
5
Schlüsselschalter
47R
0u1F
RC-1
Innenblech
C 31
D
31
1
Motor +
2
Motor -
3
?T
4
?T
1
?T
2
?T
3
?T
4
?T
Ringkern
4Wdg.
1
Schlüsselschalter
Schlüsselschalter
S2-
3
4
2x2n2F
BT
XZ-1
Zentralanschluß
1
2
E
151
M
T
br bl swrt sw
Drahtvorschub
M1-
X8-
1
2
1
234
X7-
1
X11-1
2
X11-1
3
X11-1
1
X11-
2
X11-
3
X11-
VP5/1D
42V
RSGND
RXD
TXD
0V
Schirm
RS+12V
X1/7
X1/6
X1/5
X1/4
X1/3
X1/2
X1/1
D-SUB
15polig
Stecker X2
2n2F
A5-
1
PE
83
I
Datum: Name:
gezeichnet:
geprüft:
Freigabe:
10.10.2007 NIEDENTHAL
Blatt: / 3
This drawing is protected by copyright.
It may not be reproduced or utilised in any way
or communicated or forwarded to third parties
without our express permission!
2
PHOENIX 333 PROGRESS
5034-00
Zeichnungsnummer:
WIG-GERAET, 3X400V FAHRBAR
Änderung-
Änderung-
Änderung-
Änderung-
Figure 11-2

Table of Contents

Related product manuals