EasyManua.ls Logo

EWM PHOENIX 333 PROGRESS PULS forceArc - Page 95

EWM PHOENIX 333 PROGRESS PULS forceArc
97 pages
Print Icon
To Next Page IconTo Next Page
To Next Page IconTo Next Page
To Previous Page IconTo Previous Page
To Previous Page IconTo Previous Page
Loading...
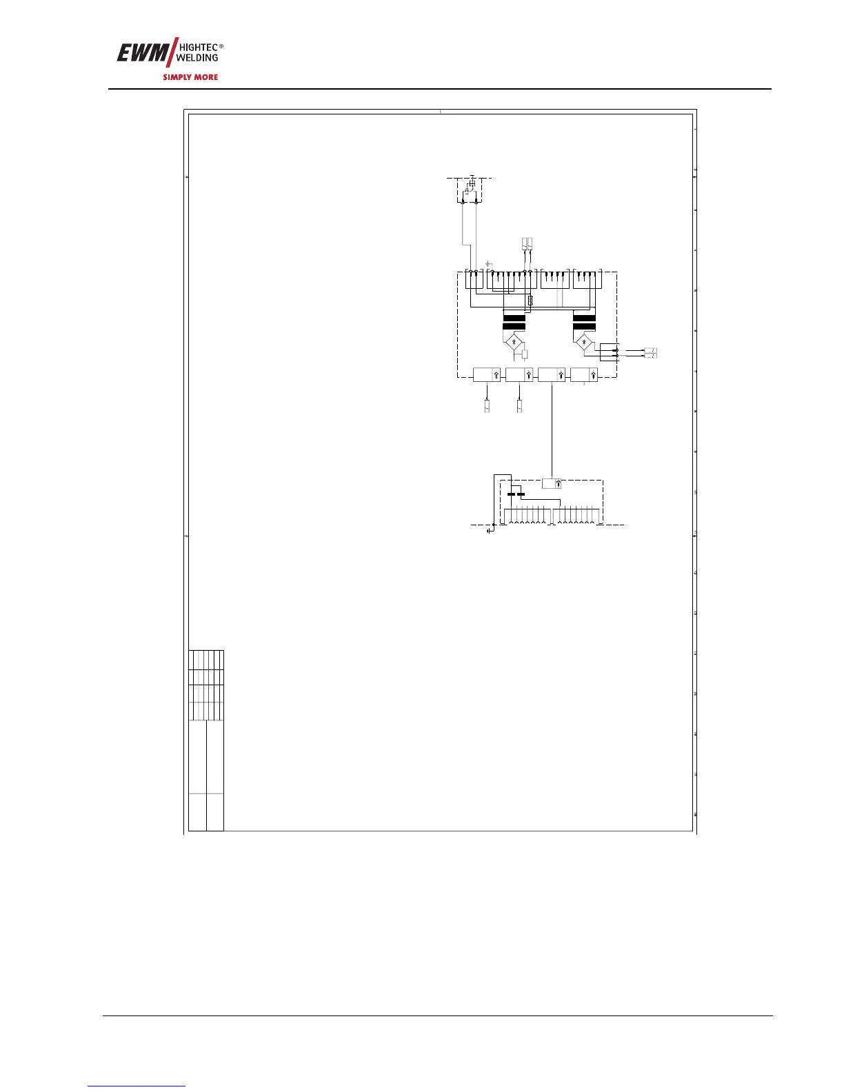
Circuit diagrams
PHOENIX 333 PROGRESS KG
Item No.: 099-005073-EWM01 95
X8/2
X8/1
15polig
D-Sub.
15polig
D-Sub.
15polig
D-Sub.
15polig
D-Sub.
X3/1
X3/2
X3/3
X3/4
X1/1
X1/2
X1/3
X1/4
X1/5
X1/6
X1/7
X1/8
T2
4AT
F1
T1
12V
W K - 6
A6-
X9/1
X9/2
X2/1
X2/2
X2/3
X2/4
X7
X6
X5
X4
X2
X3
X1
X9
X8
1
Absicherung
2
Absicherung
1
2
8
PE
1
42VAC
2
0VAC
A
21
B
21
15polig
D-SUB
Stecker X3
Schirm
0V
RS+12V
TXD
RXD
RSGND
42V
X1/7
X1/6
X1/5
X1/4
X1/3
X1/2
X1/1
Schirm
0V
RS+12V
RSGND
42V
X2/7
X2/6
X2/5
X2/4
X2/3
X2/2
X2/1
RXD
TXD
VP5/2D
2x2n2F
A7-
I 132
F
91
1
PE
1
Fühlerspannung
2
Fühlerspannung
G 101
H 101
1
2
4A
F1-
Datum: Name:
gezeichnet:
geprüft:
Freigabe:
10.10.2007 NIEDENTHAL
Blatt: / 3
This drawing is protected by copyright.
It may not be reproduced or utilised in any way
or communicated or forwarded to third parties
without our express permission!
3
PHOENIX 333 PROGRESS
5034-00
Zeichnungsnummer:
WIG-GERAET, 3X400V FAHRBAR
Änderung-
Änderung-
Änderung-
Änderung-
Figure 11-3

Table of Contents

Related product manuals