EasyManua.ls Logo

Fire-Lite MS-9200UDLS - C.2: MBT-1 Municipal Box Trip - Silenceable

Fire-Lite MS-9200UDLS
232 pages
Print Icon
To Next Page IconTo Next Page
To Next Page IconTo Next Page
To Previous Page IconTo Previous Page
To Previous Page IconTo Previous Page
Loading...
206 MS-9200UDLS/E/C Manual — P/N 52750:F 7/26/2010
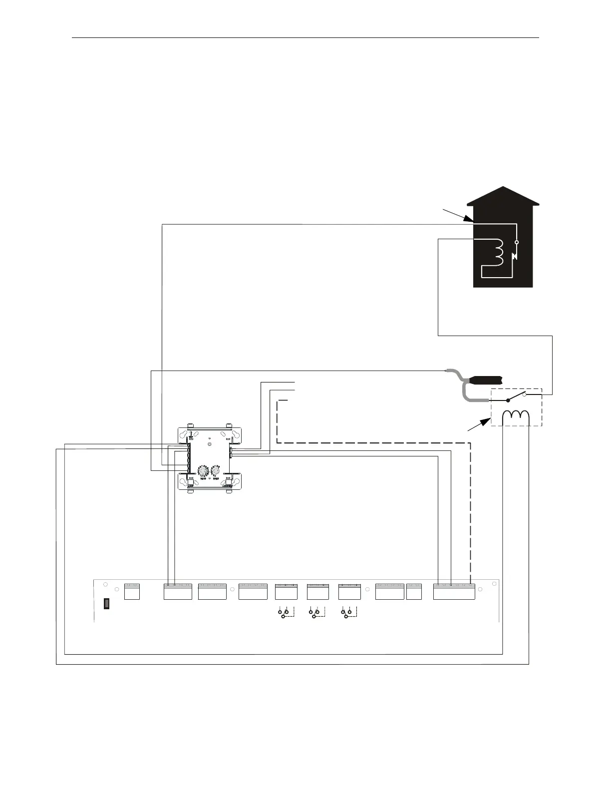
NFPA Standard-Specific Requirements MBT-1 Municipal Box Trip - Silenceable
C.2 MBT-1 Municipal Box Trip - Silenceable
The following figure illustrates the connection of the MBT-1 (Municipal Box Trip) between the
FACP and a Local Energy Municipal Box. The use of an addressable control module programmed
for General Alarm and Silenceable allows silencing of the Municipal Box without resetting the
panel or box.
FIRE
T11
T10
T9
T8
T7
T6
T1
T2
T3
T4
T5
+ 24V -
NON-RST
POWER
+ 24V -
RST
POWER
REMOTE PWR
SUPPLY SYNC
+ -
1B+ 3B+ 3B- 1B-
2B+ 4B+ 4B- 2B-
NO NC C NO NC C NC NO C
TB5
TB3
TB7
TB2
TB1
TB4
TB9
TB8TB6
TB10
JP7
Xmt Rcv Dtr Gnd
A B
In+ In- Out+ Out-
+ -
A B
B+ A+ B- A- A B
Slc Slc Slc Slc Shield
FACP Main Circuit Board
CMF-300
Control Module*
24 VDC, Nonresettable
+ -
SLC Loop
B
+ -B
Shield
red
black
MBT-1
brown wire
white wire
EOLR-1 Power
Supervision Relay
Alarm polarity shown!
-
+
- To next device
+ on SLC Loop
Braided-shield/Drain Wire
The addressable Control Module must be programmed
as Silenceable and General Alarm.
Gamewell Model M34-56
Local Energy Municipal Box
Note: 10
maximum loop
resistance due to wiring from
power supply to Municipal Box.
Connect wires to two
red terminals on box.
(All contacts shown in energized position).
Figure C.5 MBT-1 Silenceable
9
2
u
d
l
s
c
-
M
B
T
1
n
e
w
.
w
m
f
*If the SLC device does not match the one in this figure, refer to the SLC manual wiring conversion
charts for legacy and newer versions of the modules.

Table of Contents

Other manuals for Fire-Lite MS-9200UDLS

Related product manuals