EasyManua.ls Logo

Fischer Panda 10000i - Page 63

Fischer Panda 10000i
218 pages
Print Icon
To Next Page IconTo Next Page
To Next Page IconTo Next Page
To Previous Page IconTo Previous Page
To Previous Page IconTo Previous Page
Loading...
Installation Instructions
16.1.15 Kapitel/Chapter 5: Installation Instructions - Seite/Page 63
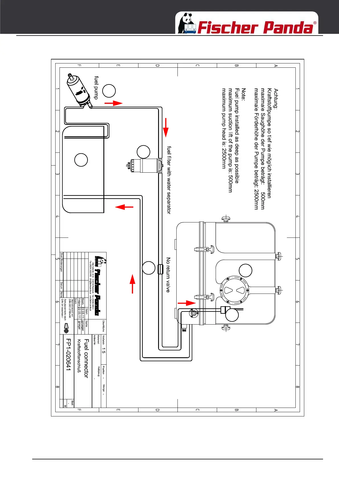
Fig. 5.5.1-2: Fuel system - schema
5
2
3
4
1
6
1. Fuel tank
2. external fuel pump
3. external fuel prefilter with water separator
4. Non return valve
5. Fuel fine filter
6. Generator

Table of Contents

Related product manuals