EasyManua.ls Logo

Frick QUANTUM LX - Page 74

Frick QUANTUM LX
116 pages
Print Icon
To Next Page IconTo Next Page
To Next Page IconTo Next Page
To Previous Page IconTo Previous Page
To Previous Page IconTo Previous Page
Loading...
S90-020 M FRICK
®
QUANTUM™ LX COMPRESSOR CONTROL PANEL
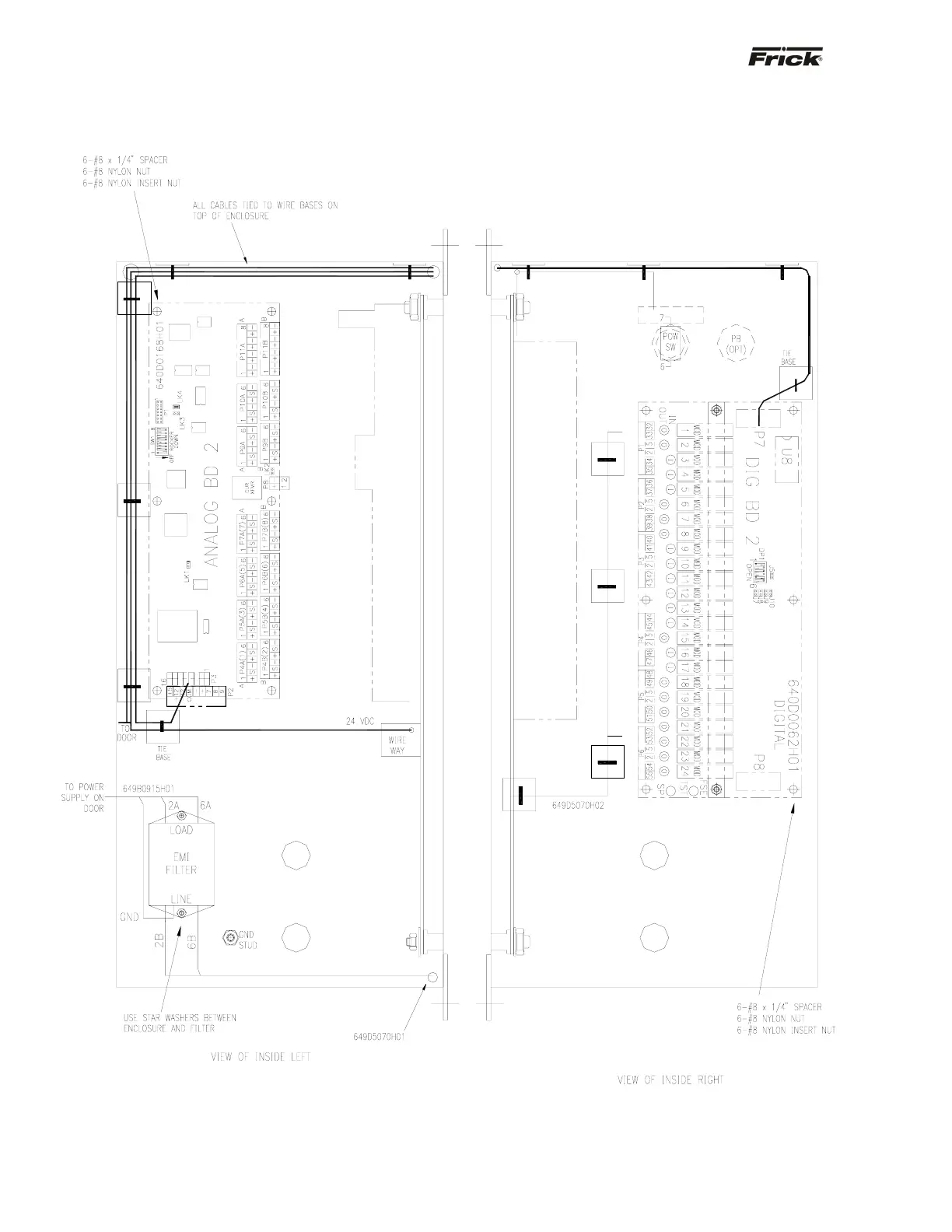
Page 74 MAINTENANCE
RDB / RWB II / RWF / RXF (58 - 101) CONTROL CENTER ASSEMBLY (Sheet 4 of 4)
This drawing appears here for reference purposes only, and is subject to change without notice. When installing, or servicing
equipment, always refer to the actual drawings that are included with the control panel for the latest information.

Table of Contents

Other manuals for Frick QUANTUM LX

Related product manuals