EasyManua.ls Logo

Frick QUANTUM LX - Quantum Controller Board Pictorial; Quantum Board Settings; Processor Board Jumpers; Communications Board Jumpers

Frick QUANTUM LX
116 pages
Print Icon
To Next Page IconTo Next Page
To Next Page IconTo Next Page
To Previous Page IconTo Previous Page
To Previous Page IconTo Previous Page
Loading...
FRICK
®
QUANTUM™ LX COMPRESSOR CONTROL PANEL S90-020 M
MAINTENANCE Page 9
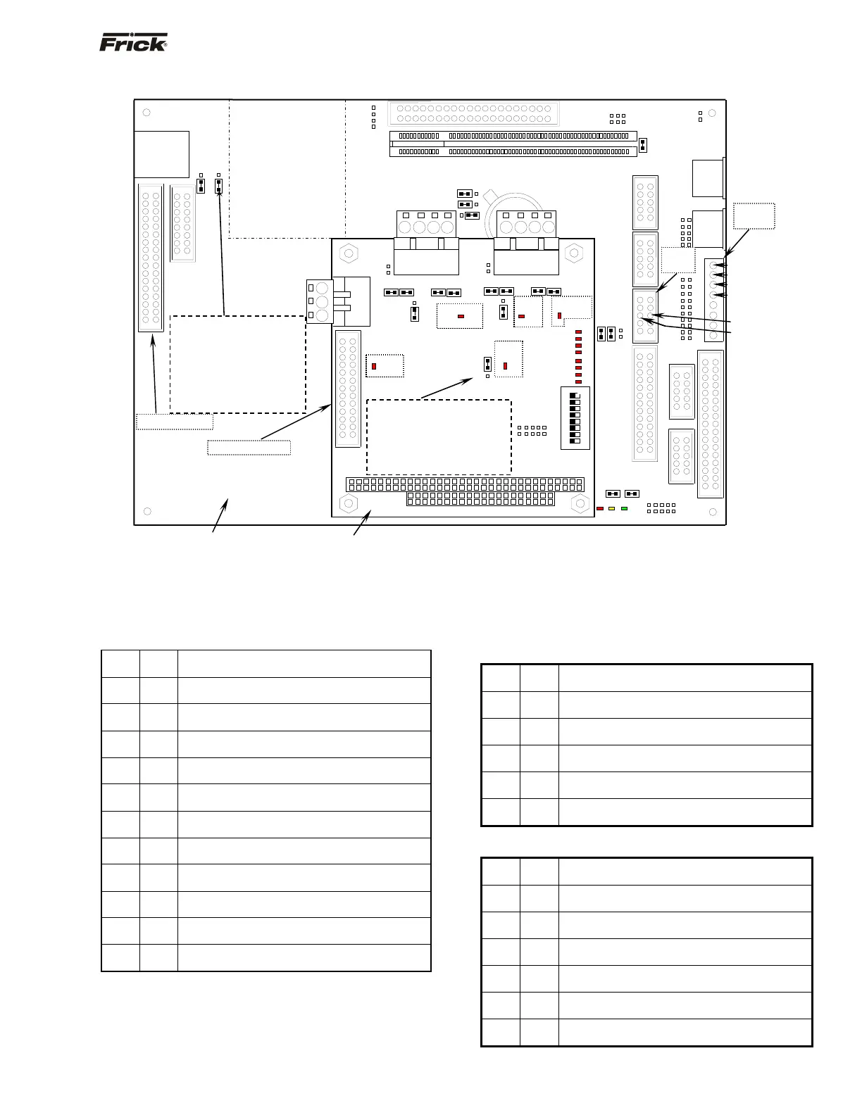
QUANTUM™ CONTROLLER BOARD PICTORIAL
Note: There are duplicate numbers for the links on the processor (larger) board and the communications (smaller) board. If you must make a
change to a jumper (link), then ensure that you modify the correct link.
QUANTUM™ BOARD SETTINGS
Processor Board Jumpers
LK1
in
out*
2 second Watchdog timer timeout
8 second Watchdog timer timeout
LK2
in*
out
Watchdog timer Enabled
Watchdog timer Disabled
LK3
A
B *
+5V Backlight Voltage (Samsung, NEC, Sharp)
+12V Backlight Voltage (LG Philips Display)
LK4
A
B *
+5V LCD Supply (Samsung, NEC, Sharp)
+3.3V LCD Supply (LG Philips Display)
LK5
A
B *
COM4 IRQ3
COM4 IRQ10
LK6
A
B *
COM3 IRQ4
COM3 IRQ11
LK7
A *
B
Battery Backup Enabled
Battery Backup Disabled (CMOS Cleared)
LK8
in*
out
RS-485 Receiver Enabled
RS-485 Receiver Disabled
LK9
in*
out
RS-485 Terminated
RS-485 Not Terminated
LK10
in
out*
RS-422 Terminated
RS-422 Not Terminated
LK11
in*
out
Bit 1 of 259H “Logic 1” User Application Link
Bit 1 of 259H “Logic 0” User Application Link
LK12
in*
out
Bit 2 of 259H “Logic 1” User Application Link
Bit 2 of 259H “Logic 0” User Application Link
* Standard Setting
Communications Board Jumpers
Com-1 (TB1)
LK2
in
out*
Terminate COM1
No termination
RS-422/485
LK7
in
out*
Pull down COM1
No pull down
RS-422/485 (Rx-/Tx-)
LK8
in*
out
Pull up COM1
No pull up
RS-422/485 (Rx-/Tx+)
LK9
in
out*
Pull down COM1
No pull down
RS-422 (Tx-)
LK10
in
out*
Pull up COM1
No pull up
RS-422 (Tx+)
LK16
A
B*
COM1 RS-422 (TB1)
COM1 RS-485 (TB1)
* Standard Setting
Com-2 (TB2 - TB3)
LK1
in
out*
Terminate COM2
No termination
RS-422/485
LK3
in
out*
Pull down COM2
No pull down
RS-422/485 (Rx-/Tx-)
LK4
in
out*
Pull up COM2
No pull up
RS-422/485 (Rx-/Tx+)
LK5
in
out*
Pull down COM2
No pull down
RS-422 (Tx-)
LK6
in
out*
Pull up COM2
No pull up
RS-422 (Tx+)
LK11
A
B*
Select RS-232 for COM2 (TB2)
Select RS-422/RS-485 for COM2 (TB3)
LK17
A
B*
COM2 RS-422 (TB2)
COM2 RS-485 (TB2)
* Standard Setting
PWR
SUSP
FLASH
LK11
LK12
PL24
PL3
PL
LK9
LK8
LK10
PL16
LK1
PL7
PL9
LK2
PL17
PL12
PL19
PL18
PL14
PL10
PL6
PL2
PL4
PL1
Flash Card
Socket
(Located
under
board)
PL3
PL
5
PL11
LK3
A
B
LK4
PL15
+5VDC
+12VDC
RET / GND
RET / GND
+RX/+TX
-RX/-TX
Power
Cable
PL8
I/O
Cable
TB1
TB2
LK2
COM-2
TB
3
RS-232
3
2
1
PL13
This assembly is
shipped with LK4 set to
B position for an LG
Philips display.
If using a Samsung, NEC
or Sharp Display, set
LK4 to position
A
.
Keyboard Cable
Display Cable
LK6
A
LK5
LK7
COM-2
COM-1
1
2
3
4
1
2
3
4
LK8
LK7
LK10LK9
D3
LK16
A
B
A
B
PL2
3
4
5 6 7
0
1
2
D8
D10
D11
D12
PORT 80H
D4
D5
D7
D13
SW1
O
N
1
2
3
4
5
6
7
8
D6
D2
LK11
B
A
LK1
LK4LK3
LK6LK5
D1
D8
LK17
To set Comm-2 for RS-232
operation, set LK11 to A
position.
To set Comm-2 for RS-422/485
operation, set LK11 to B
position.
RS-422
RS-485
RS-422
RS-485
PL1
Processor Board (large
bottom board
)
Communications Board
(
small to
p
board
)
COM2
(
TX
)
COM1
(
RX
)
COM1
(
TX
)
KB
COM2
(
RX
)

Table of Contents

Other manuals for Frick QUANTUM LX

Related product manuals