EasyManua.ls Logo

Frick QUANTUM LX - MAIN BOARD HISTORY AND IDENTIFICATION

Frick QUANTUM LX
132 pages
Print Icon
To Next Page IconTo Next Page
To Next Page IconTo Next Page
To Previous Page IconTo Previous Page
To Previous Page IconTo Previous Page
Loading...
QUANTUM
LX EVAPORATOR CONTROL PANEL
COMMUNICATIONS SETUP
090.610-CS (MAY 2016)
Page 112
Q4 CONTROLLER
MAIN BOARD HISTORY AND IDENTIFICATION
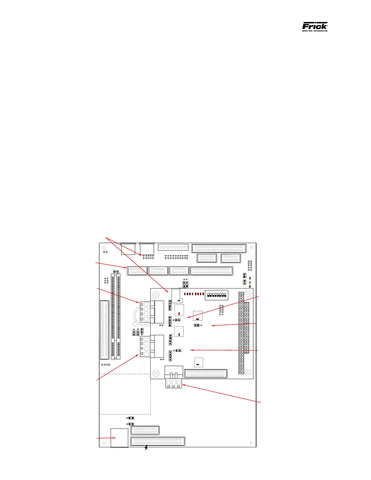
The processor board shown on this page is known as
the Q4 board, and it is based on the Pentium micro-
processor platform. The operating software that this
board runs is known as Quantum™ LX software. This
software displays graphic information and data on the
LCD screen in a format that is similar to the way a
Windows® desktop computer screen displays a Web
browser (the Internet).
The Q4 board can be identied by the presence of
a daughter board mounted to the main board. This
daughter board is the communications portion of the
Q4, and it can be identied by the presence of an 8 po-
sition DIP switch. There are also a number of jumpers
(or links) present on this smaller board, as well as three
green connectors (RS-232, RS-422 and RS-485 ports).
The jumpers are used to set up the communications
parameters that are listed on the next page.
The main board (larger of the two) has a number of
jumpers (or links) also. The links on this board MAY
need to be modied by qualied personnel to congure
the Quantum™ 4 for specic applications.
The Q4 utilizes Flash Card technology, as did the Q3.
There is a Flash Card socket located on the under side
of this main board. The Q4 board has the LX Operating
System pre-loaded at the factory, so this Flash Card
feature will primarily be utilized for future program up-
dates.
When calling Frick® Company for service or help, it
will greatly assist us if the type of board is known, ei-
ther Q1, 2, 3 or 4. Additionally, Frick® will request the
Sales Order number, and the Operating System version
number (this can be found on the About… screen). The
more information available at the time of the call, the
better able we will be to assist you.
The information that follows will primarily describe the
jumper conguration for communications settings, as
well as wiring diagrams for the different types of com-
munications that are possible with the Q4.
Keypad
PL8
LK1
PL
9
PL1
LK2
Flash Card Socket
(Located under board)
PL3
PL13
PL7
PL
17
PL
12
PL
19
PL
18
PL14
PL10
PL6
PL2
PL4
PW
R
SU
SP
FL
AS
H
LK11
LK12
PL
24
PL3
PL4
LK9
LK8
LK10
PL16
PL5
PL
11
LK3
A
B
LK4
PL1
5
TB1
TB2
LK2
COM-2
TB3
RS-232
3
2
1
COM2
(TX)
D3
LK16
A
B
A
B
COM-2
LK
6
B
A
LK
5
LK
7
PL2
COM1
(TX)
3
4
5
6
7
0
1
2
D8
D10
D1
1
D1
2
POR
T
80H
D4
D5
D7
D13
SW1
ON
8
7 6
5 4
3 2
1
COM-1
1
2
3
4
1
2
4
RS-
422
RS-
485
LK
4
LK
3
LK
6
LK
5
D1
D8
LK17
RS-
422
RS-
485
LK
8
LK
7
LK
10
LK
9
D6
D2
LK11
B
A
PL1
COM1
(RX)
COM2
(RX)
KB
3
LK1
CAT-5 Ethernet
Connector
Com-3
RS-232
Connector
USB Connector
(Depending on board version, USB could be
located in either of these two places).
Com-1
(TB1)
RS-422/485
Connector
Com-2
(TB2)
RS-422/485
Connector
Com-2
(TB3)
RS-232
Connector
LK11 Selects
between using
RS-422/485 on
Com-2 (TB2)
OR
RS-232 on
Com-2 (TB3)
LK16 selects
between
RS-422 and
RS-485 for
Com-1 (TB1).
LK17 selects
between
RS-422 and
RS-485 for
Com-2 (TB2).

Table of Contents

Other manuals for Frick QUANTUM LX

Related product manuals