EasyManua.ls Logo

Frick QUANTUM LX - SERIAL COMMUNICATIONS PORT WIRING

Frick QUANTUM LX
132 pages
Print Icon
To Next Page IconTo Next Page
To Next Page IconTo Next Page
To Previous Page IconTo Previous Page
To Previous Page IconTo Previous Page
Loading...
QUANTUM
LX EVAPORATOR CONTROL PANEL
COMMUNICATIONS SETUP
090.610-CS (MAY 2016)
Page 114
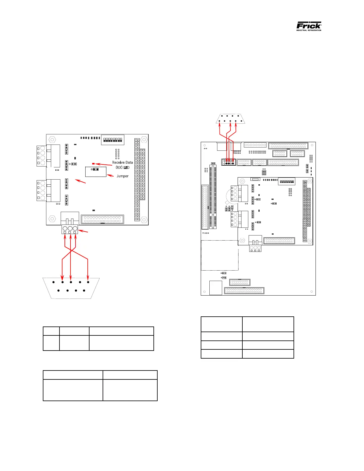
SERIAL COMMUNICATIONS PORT WIRING
RS-232 WIRING AND JUMPERS
COM-2 (TB3)
The following pictorial shows the communi-
cations board, as well as the jumpers, LED’s
and signal pinouts to allow the end user to
communicate to Com-2 (TB3) using RS-232
protocol. Refer to the tables in this section
for the specics on the jumper settings and
wiring convention for RS-232.
A
B
COM
TX
RX
LK17
D1
RS-232 TB3
3-Pin Connector
PC or PLC
9-Pin
D-Connector
6 7 8 9
1 2 3 4 5
TX
RX
COM
D
11
D
8
D
10
D
12
PORT
80H
D
13
0
1
2
3
4
5
6
7
D6
D3
D2
LK1
LK4
LK3
LK6
LK5
COM-2
1
2
3
4
RS-
422
RS-
485
COM-1
1
2
3
4
RS-
422
RS-
485
TB1
TB2
LK16
A
B
LK7
LK10
LK9
LK8
LK2
PL2
SW1
ON
1 2 3 4
5
6
7
8
PL3
KB
D8
COM-2
TB3
RS-232
3
2
1
PL1
Transmit Data (TX)
LED
Receive Data
(RX) LED
Jumper
B
A
LK11
RS-232 Com-2 (TB3) Communications Wiring
RS-232 Com-2, TB3 Communications Board
Jumpers
LINK POSITION FUNCTION
LK11
A *
B
RS-232 for COM2 (TB3)
RS-422 for COM2 (TB2)
* Standard Setting
RS-232 Com-2, TB3 Communications Signals
TB3 Connector Pin # Signal
1
2
3
Transmit Data (TX)
Received Data (RX)
Ground (COM)
COM-3 (PL6)
The following pictorial shows the communications
board, as well as the jumpers, LED’s and signal pin-
outs to allow the end user to communicate to Com-3
(PL6) using RS-232 protocol. Refer to the table entitled
Com-3, PL6 Communications Signals for the specics
on the jumper settings and wiring convention for RS-
232. NOTE: There are NO jumper settings associated
with this connector (Com-3).
D1
LK11
B
A
PL16
LK12
LK11
B
A
TB2
COM2 (TX)
LK4
LK3
PL11
PL15
PL5
Flash Card Socket
(Located under
board)
PL3
PL4
PL1
PWR
SUSP
FLASH
LK2
LK8
LK9
LK10
PL19
PL18
PL24
PL17
PL8
LK1
PL7
PL9
PL13
PL12
PL10
PL14
RS-
422
RS-485
1
2
3
4
COM-1
LK6
B
A
LK5
LK7
PL3
PL4
TB3
COM-2
RS-232
3
2
1
KB
D8
PL1
LK6
LK4
LK1
LK3
LK17
LK5
A
B
1
2
3
4
RS-
422
RS-
485
TB1
LK2
A
B
LK7
D6
COM2 (RX)
D2
LK16
LK8
SW1
ON
1 2 3 4 5 6 7 8
LK10
D3
PL2
0
1
2
3
4
5
6
7
LK9
PL6
PC or PLC
9-Pin
D-Connector
5
1
9
6
COM
TX
RX
RS-232 Com-3 (PL6) Wiring To 9-Pin D-Connector
RS-232 Com-3, PL6 Communications Signals
PL6 Connector
Pin #
Signal
3 Received Data (RX)
5 Transmit Data (TX)
9 Ground (COM)

Table of Contents

Other manuals for Frick QUANTUM LX

Related product manuals