EasyManua.ls Logo

HBM PX455 - SSI Encoder (Active Only)

HBM PX455
552 pages
Print Icon
To Next Page IconTo Next Page
To Next Page IconTo Next Page
To Previous Page IconTo Previous Page
To Previous Page IconTo Previous Page
Loading...
Electrical connections PMX
PMX A4354-2.2 HBM: public 95
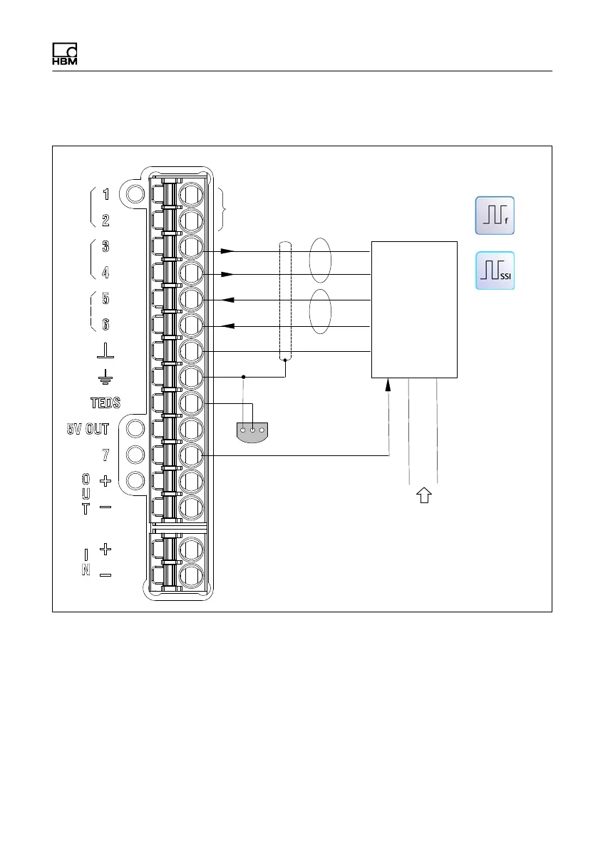
8.4.4.7 SSI encoder (active only)
SSI Encoder
1
2
SSI Clock
SSI Data
Excitation,
external direct or external
via PMX terminals
1
2
TEDS module
(optional)
*) Additional frequency encoders can be connected to
terminals 1 and 2 and frequencies measured.
*)
Fig. 8.18 PX460 pin assignment SSI encoder
Possible channel setting via web server:
Transducer: SSI

Table of Contents