Home
HNC Electric
Servo Drives
HSD7-E Series
Page 25 (Wiring Examples for Input;Output Signals)
HNC Electric HSD7-E Series - Wiring Examples for Input;Output Signals
121 pages
Manual
Save Page as PDF
To Next Page
To Next Page
To Previous Page
To Previous Page
Loading...
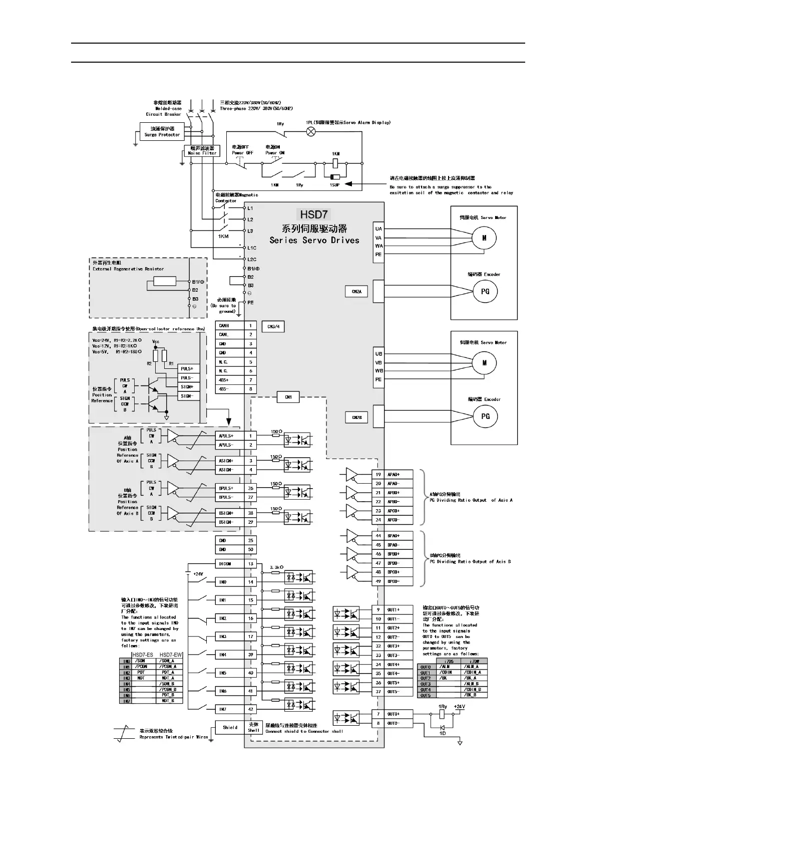
19
4.5.3
Examples
of
wiring
for
inpu
t
a
nd
out
put
signals
■
Position
control
mo
de
*
AC
380
V
mode
l
control
power
supply
is
DC
24V
.
*
W
hen
usin
g
the
built-in
regenerative
resistor,
terminals
B2
and
B3
need
to
be
shorted;
*
W
hen
usin
g
ex
t
ernal
regenerative
resistor,
B2
and
B3
te
rminals
need
to
be
disconnec
ted;
*
Model
*24/35D
has
no
built-in
regenerative
resistor.
(Reserved)
(Reserved)
(Reserved)
(Reserved)
(Reserved)
(Reserved)
(Reserved)
24
26
Table of Contents
Main Page
default chapter
4
Table of Contents
4
Chapter 1 Basic Information of Servo Drive
6
HSD7 Series AC Servo Driver
6
Distinguishing Method of Nameplate
6
Model Description
7
Servo Drive Model Description Example
7
Chapter 2 Selection of Servo Drive
8
Ratings and Specifications
8
Rating Value
8
Specification Table
9
Overall Dimensions of Servo Driver
10
Chapter 3 Installation of Servo Drive
12
Precautions for Setting
12
Mounting Types and Orientation
12
Mounting Hole Dimensions
12
Installation Interval
12
Chapter 4 Connection of Servo Unit
13
Wiring and Connecting Precautions
13
General Precautions
13
Anti-Interference Countermeasures
14
Grounding
18
Basic Connection Diagram
19
Power Supply Wiring for Servo Drive
19
Terminal Symbol and Terminal Name
19
Wiring Operation Steps of Main Loop Connector
20
Power on Sequence Control
20
Power Wiring Diagram
21
Connection of Regenerative Resistance
21
Servo Motor Connection
22
Terminal Symbol and Terminal Name
22
Pin Arrangement of Connector (CN2) for Encoder
22
Connection of Servo Drive and Encoder
22
Wiring of Servo Drive and Brake
23
Connection of Input and Output Signals
24
Name and Function of Input/Output Signal Connector (CN1)
24
Pin Arrangement of Input and Output Signal Connector (CN1)
24
Examples of Wiring for Input and Output Signals
25
Input-Output Loop
27
Chapter 5 Basic Functions to be Set before Operation
29
Operation of Parameters (Pn)
29
Classification of the Parameter
29
Writing Method of Parameters
29
How to Set Parameters
30
Write Inhibit Setting of Parameters
30
Initialization of Parameter Settings
30
Setting of Communication Specifications for MECHATROLINK-II
30
Communication Specification Setting
30
Station Address Setting
30
Setting of Communication Specifications for MECHATROLINK-III
30
Station Address Setting
31
Setting of Ethercat Communication Specifications
31
Setting of Communication Specifications
31
Setting of Power Supply Types for Main Circuit and Control Circuit
31
Setting of AC Power Input/DC Power Input
31
Setting of Single-Phase AC Power Input/Three-Phase AC Power Input
32
Function and Setting of Servo on Input (/S-ON) Signal
32
Function of Servo on Input (/S-ON) Signal
32
Set to Constant Servo on (Motor Energized)
32
Setting of Motor Rotation Direction
32
Functions and Settings of Over-Travel Prevention
33
Overtravel Signal
33
Select Whether the Over-Travel Prevention Function Is Valid/Invalid
34
Selection of Motor Stopping Method for Over-Travel Prevention Function
34
Overtravel Warning Function
35
Brake
35
Action Sequence of Brake
36
Brake Control Output (/BK) Signal
36
Output Time of Brake Control Output (/BK) Signal When Servo Motor Stopped
38
Output Time of Brake Control Output (/BK) Signal in Servo Motor Rotation
38
Servo off and Motor Stop Method in Alarm
39
Motor Stop Method When Servo off
39
Motor Stopping Method When Alarm Occurs
39
Motor Overload Detection Value
40
Detection Time of Overload Warning (A.910)
40
Detection Time of Overload Alarm (A.720)
41
Setting of Electronic Gear
41
Setting of Electronic Gear Ratio
41
Setting Examples of Electronic Gear Ratio
42
Setting of Absolute Value Encoder
42
Precautions in Setting (Initializing)
42
Confirmation before Execution
43
Operable Tool
43
Setting of Regenerative Resistance Capacity
43
Chapter 6 Application Function
44
Distribution of Input and Output Signals
44
Distribution of Input Signals
44
Distribution of Output Signals
45
Servo Alarm Output (ALM) Signal
45
Warning Output (/WARN) Signal
45
Rotation Detection Output (/TGON) Signal
45
Ready Output (/S-RDY) Signal
46
Speed Consistent Output (/V-CMP) Signal
46
Positioning Completion (/COIN) Signal
47
Position Nearby Output (/NEAR) Signal
47
Speed Limit Function During Torque Control
48
Operation for Momentary Power Interruptions
49
SEMI F47 Specification Support Function
49
Setting of Maximum Speed of Motor
51
Encoder Frequency Division Pulse Output
51
Signal Output by Encoder Frequency Division Pulse
51
Setting of Encoder Frequency Division Pulse Output
52
Soft Limit Function
54
The Valid/Invalid Choice of Soft Limit Function
54
Setting of Soft Limit Value
54
Carry out Soft Limit Check According to Commands
54
Selection of Torque Limit
54
Internal Torque Limit
55
Exterior Torque Limit
55
Torque Limit Detection Output (/CLT) Signal
56
Absolute Position
56
Forced Stop Function
57
Forced Stop Input (FSTP) Signal
57
Selection of Stop Method for Forced Stop Function
57
Methods of Recovery from Compulsory Stop
58
Chapter 7 Trial Operation
59
Commissioning Process
59
Process of Servo Motor Test Run
59
Inspection and Precautions before Commissioning
59
Commissioning of Servo Motor Unit
59
Confirmation before Execution
59
Operable Tool
60
Chapter 8 Panel Display and Use of Panel Operators
61
Panel Operator
61
Name and Function of Panel Operator Keys
61
Switching of Functions
61
Status Display Mode
62
Operation of Parameters (PA) in Panel Operator
63
Setting Method of "Numerical Setting Type
63
Setting Method of "Function Selection Type
64
The Operation of the Monitor Display (Un) in the Panel Operator
64
Basic Operation of Monitoring Display
65
Monitoring of Input and Output Signals (Un005/ Un006)
65
Operation of Auxiliary Function (FA) in Panel Operator
66
Display of Alarm Records (FA000)
66
JOG Operation (FA002)
66
Origin Search (FA003)
67
Program JOG Run (FA004)
67
Initialization of Parameter Settings (FA005)
68
Deletion of Alarm Records (FA006)
68
Absolute Value Encoder Setup(Initialization)(Fa008
68
Automatic Adjustment of Analog (Speed and Torque) Command Bias (FA009)
69
Manual Adjustment of Speed Command Bias (FA00A)
69
Manual Adjustment of Torque Command Bias (FA00B)
69
Automatic Adjustment of Offset of Motor Current Detection Signal(Fa00E
70
Write Inhibit Setting of Parameters(Fa010
70
Displays the Motor Model (FA011)
70
Display Software Version (FA012)
71
Single Parameter Adjustment (FA203)
71
Easyfft(Fn206
72
Load Inertia/Mass Detection (FA208)
73
Chapter 9 Maintenance
74
Inspection and Component Replacement
74
Inspection
74
Battery Replacement
74
Alarm Display
75
Warning List
75
Cause of Alarm and Treatment Measures
77
Alarm Reset
83
Display of Alarm Records
83
Deletion of Alarm Records
83
When Warning Is Displayed
83
Warning List
83
Reasons for Warning and Countermeasures
85
Monitoring of Communication Data When Alarms and Warnings Occur
86
The Fault Causes and Treatment Measures Can be Judged from the Actions and States of Servo Motors
86
Chapter 10 List of Parameter
90
List of Servo Parameters
90
Method for Distinguishing the List
90
List of Servo Parameters
91
Chapter 11 Operation of Debugging Software (Iwatch+)
116
Connection and Login of Iwath+ Debugging Software
116
Automatic Adjustment (no Upper Command)
116
Motor Code Is Written to Encoder EEROM Operation(Fa301
119
Motor Zero Position Check and Reset Operation (FA300
120