EasyManua.ls Logo

HPE Apollo 4200 Gen10

HPE Apollo 4200 Gen10
182 pages
To Next Page IconTo Next Page
To Next Page IconTo Next Page
To Previous Page IconTo Previous Page
To Previous Page IconTo Previous Page
Loading...
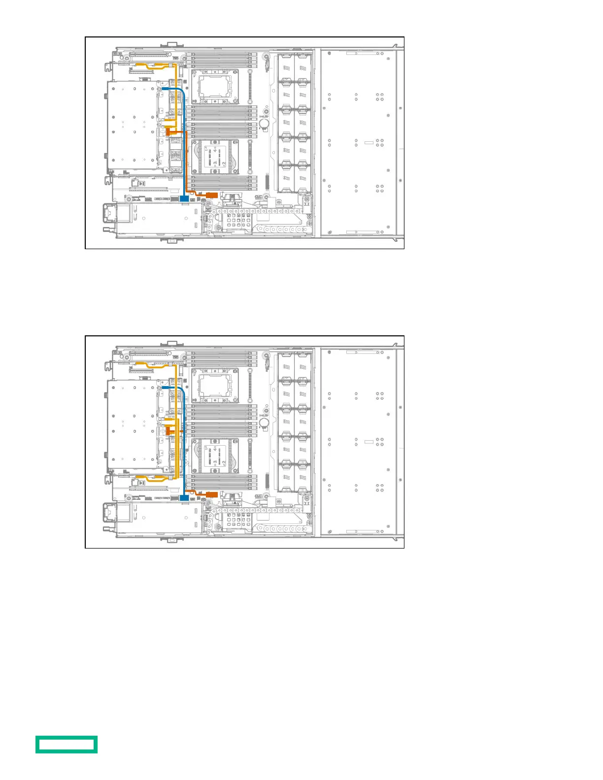
NVMe rear drive cage cabling to pass-through boards in slots 2 and 6
NVMe P1 to pass-through P1 in slot 6
NVMe P2 to pass-through P2 in slot 2
NVMe P3 to pass-through P3 in slot 2
M.2 SSD Enablement option cabling
The M.2 SSD Enablement option is supported in the following slots:
Expansion slot 1 on the system board
Expansion slot 2 on the system board
Expansion slot 3 in the PCI3 riser cage
Expansion slot 4 in the PCI3 riser cage
Cabling
134

Table of Contents

Related product manuals