EasyManua.ls Logo

HPE ProLiant ML30 Gen10 Plus

HPE ProLiant ML30 Gen10 Plus
185 pages
To Next Page IconTo Next Page
To Next Page IconTo Next Page
To Previous Page IconTo Previous Page
To Previous Page IconTo Previous Page
Loading...
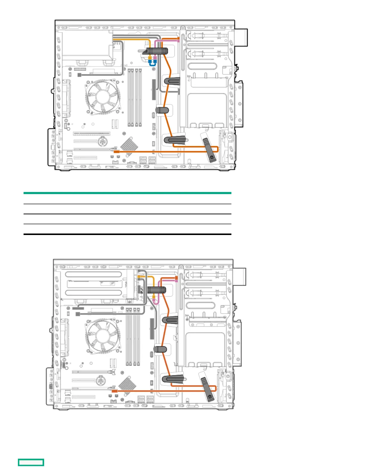
ColorColor DescriptionDescription
Gold P9 / P10 connector of the non-hot-plug power supply fan-out cable
Pink Power connector of the LTO tape drive SAS-power Y-cable
Orange SAS connector of the LTO tape drive SAS-power Y-cable
Blue LTO/RDX power extension cable
LTO tape drive cabling with LTO tape drive cabling with Flexible Slot power supplyFlexible Slot power supply
HPE ProLiant ML30 Gen10 Plus Server Maintenance and Service Guide 167

Table of Contents

Related product manuals