EasyManua.ls Logo

IBM 7026-H80 - RS/6000 - 256 MB RAM - Primary I;O Drawer Cable Diagram

IBM 7026-H80 - RS/6000 - 256 MB RAM
557 pages
To Next Page IconTo Next Page
To Next Page IconTo Next Page
To Previous Page IconTo Previous Page
To Previous Page IconTo Previous Page
Loading...
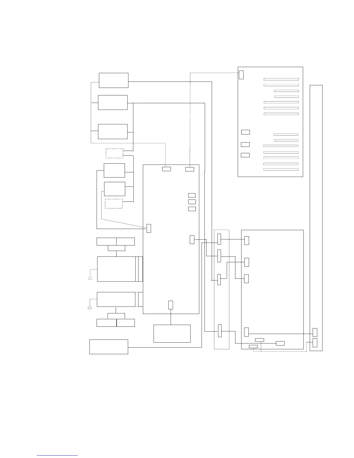
Primary I/O Drawer Cable Diagram
Fan
Controller
Card
Power
Distribution
Board
DASD
Power
I/O Board
PCI Board
Op Panel
Op Panel
Power
Supply 1
3.3 V
3.3 V
Ground
Grd
5V
5V
Fan 1
Fan 2
Fan 5
CD-ROM
DASD 2
DASD 1
Term
Term
Optional
Media
Diskette
Diskette
Base SPCN
Base SPCN
JTAG
I/P
SCSI
V/S COMM
B
u
l
k
h
e
a
d
Power
Supply 2 or
Cooling
Unit
Fan 3 Fan 4
Fan 6
Fan 9
J4
J3
J2
J9
J4
J5
J30
J28
J2
J1
Media
Power
J6
Misc.
Power
J7
J21
J3
J5
Chapter 1. Reference Information 55

Table of Contents

Related product manuals