EasyManua.ls Logo

Immergas VICTRIX TERA V2 35 PLUS EU - Page 48

Immergas VICTRIX TERA V2 35 PLUS EU
124 pages
Print Icon
To Next Page IconTo Next Page
To Next Page IconTo Next Page
To Previous Page IconTo Previous Page
To Previous Page IconTo Previous Page
Loading...
48
INSTALLERUSERMAINTENANCE TECHNICIANTECHNICAL DATA
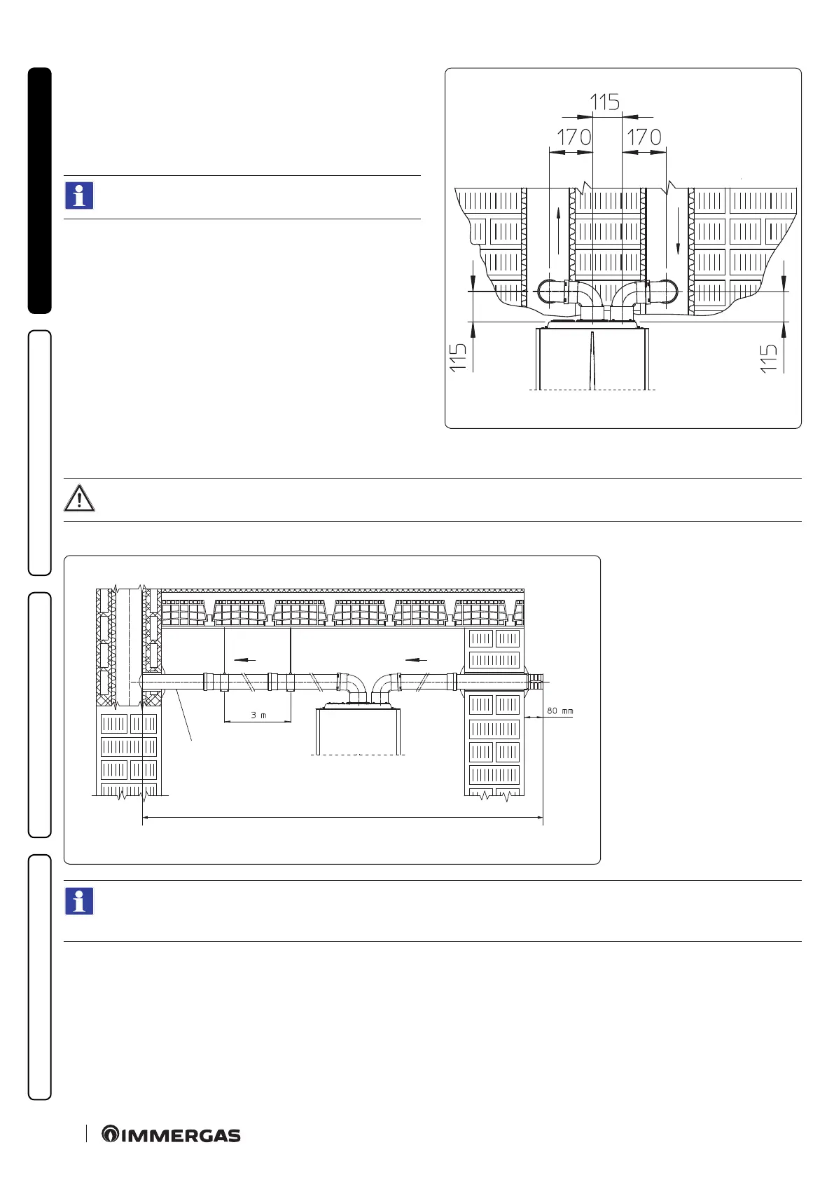
Installation clearances (Fig. 29)
e minimum installation clearance measurements of the Ø
80/80 separator terminal kit have been stated in some limit condi-
tions.
* Conguration C
4
envisages connection to ues working with nat-
ural draught.
For technical data concerning conguration C
4
please
refer to the table in par. 4.3.
C
43
29
Extensions for separator kit Ø 80/80 (L = maximum length)
To aid in the removal of possible condensate forming in the exhaust pipe, tilt the pipes towards the appliance with a minimum
slope of 5% (Fig. 30).
Please note the type of installation C
43
must be done with a natural draught ue.
C
83
C
S
A
L
30
Key (Fig. 30):
A - Intake
C - Minimum slope 5%
S - Exhaust
L - Maximum length
To calculate the length of the ue, simply add, for each component you intend to use, the corresponding value indicated in the
column "Length equivalent to m of pipe" in the table in par. 1.14, and check that the resulting sum is equal to or less than the
maximum length indicated in par. 1.15.

Table of Contents

Related product manuals