EasyManua.ls Logo

KEB COMBIVERT F4-F - Motorpotentiometer Function

KEB COMBIVERT F4-F
300 pages
Print Icon
To Next Page IconTo Next Page
To Next Page IconTo Next Page
To Previous Page IconTo Previous Page
To Previous Page IconTo Previous Page
Loading...
11
ANTRIEBSTECHNIK
6
811
KEB COMBIVERT F4-F
Name: Basis
19.05.99
6
Section PageDate
© KEB Antriebstechnik, 1999
All Rights reserved
Chapter
Functional DescriptionSpecial Functions
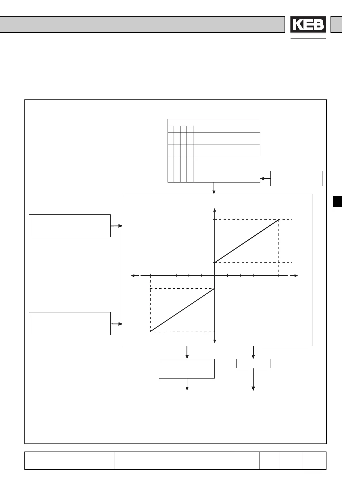
6.8.4 Motor-
potentiometer
Function
This function simulates a mechanic motor potentiometer. By way of two programmable
inputs the value of the motor potentiometer can be increased or decreased.
100%
0%
t [s]
0%
-100%
16 33 66
»
»
SP.29
163366SP.29
8421
xxx0
xxx1
xx0x
xx1x
00xx
01xx
10xx
11xx
SP.26 Motorpoti / Function
Meaning
set programmble
non-set programmble
no motor potentiometer reset
reset after Power on
0...100 % in 16 s
0...100 % in 33 s
0...100 % in 66 s
0...100 % accord. to SP.29
SP.27 0,00...300,00 s
Motorpoti time
n [min
-1
]
n
max
(SP.5)
n
min
(SP.4)
n
min
(SP.6)
n
max
(SP.7)
Increase of motorpoti value
assign value 13 to prog.
input di.3...12
Decrease motorpoti value
assign value 14 to prog.
input di.3...12
Rotation
+ = forward
- = reverse
Setpoint
Fig. 6.8.4 Motorpotentiometer function
Speed setting
Setpoint setting

Table of Contents

Other manuals for KEB COMBIVERT F4-F