EasyManua.ls Logo

KitchenAid KESI901PBL - Wiring Diagrams & Strip Circuits; Wiring Diagrams

KitchenAid KESI901PBL
76 pages
Print Icon
To Next Page IconTo Next Page
To Next Page IconTo Next Page
To Previous Page IconTo Previous Page
To Previous Page IconTo Previous Page
Loading...
7-1
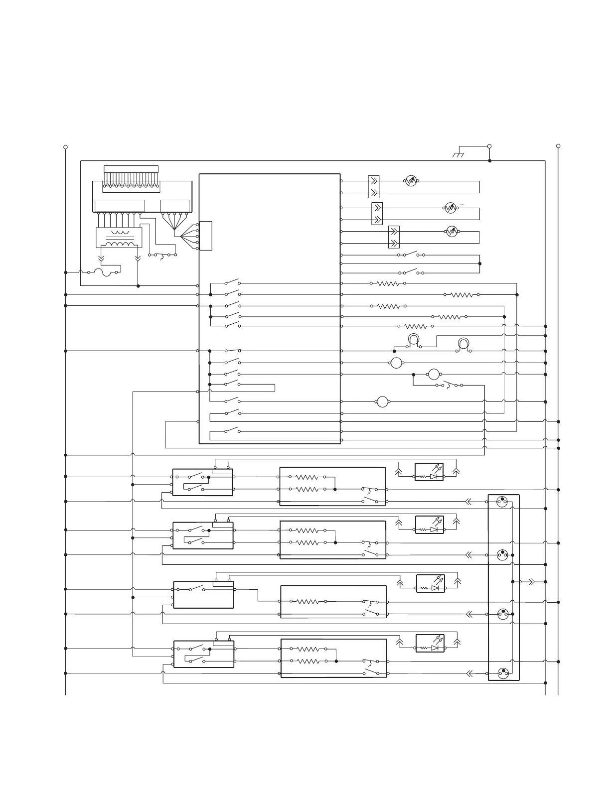
WIRING DIAGRAMS & STRIP CIRCUITS
WIRING DIAGRAMS
W
LATCH MOTOR
4W
K1A DLB RELAY 1
K1B DLB RELAY 2
K12 COOK TOP LOCKOUT RELAY
K11 LATCH MOTOR RELAY
K9 CONVECTIONFAN RELAY
K10 COOLINGFAN RELAY
R
R
R
R
OR
BR
GY
M
W
W
DISPLAY
BOARD
P2
BK
BK
BK
P4-1
T2-1
T3-1
W
R
P5-3
P5-1
TRANSFORMER
W
L1
BK
BK
BK
W
P1
OVEN LIGHT
40 W
R
CONVECTION FAN 60 W
Y
R
OVEN LIGHT
40 W
P7-4
T3-2
T3-3
K7 OVEN LIGHT RELAY
K6 WARM DRWR RELAY
K5 CONVECTION RING RELAY
K3 OUTER BROIL RELAY
K4 INNER BROIL RELAY
K2 BAKE RELAY
OR
R/W
BU
BU
R
OUTER BROIL 1450 W
BAKE 2000 W
P3-5
P7-1
P3-7
P3-8
P3-6
P3-1
P3-2
Y
V
V
W
W
INNER BROIL 1791 W
R
GY
GND
N
L2
OR/W
WARM DRWR 850 W
W
GY
GY
BK
T1B-1
T1B-2
T2-2
T1A-1
T1A-2
P4-7
P4-6
P4-5
P4-4
M
P4-3
T2-4
T2-3
R
WARM DRWR SENSOR
MAIN OVEN SENSOR
KEYPAD
P2
POWER
BOARD
MEAT PROBE
TOD 130
°
C (266
°
F)
CONVECTION RING 1600 W
R
M
COOLING FAN 60 W
W
OR
OR
GY
GY
BK
BK
GY
V
V
V
V
GY
GY
GY
BK
THERMAL SW
OPENS @ 96.1
°
C
±
3
°
C
(205
°
F
±
5.4
°
F)
THERMAL SW CLOSES @ 70
°
C
±
3
°
C
(158
°
F
±
5.4
°
F)
R/W
R
R
R
LATCH SW
P7-2
2
1
INNER ELEMENT 1200 W
OUTER ELEMENT 1300 W
OR
BK
BK
1B
2A
2B
1A
L1
L2
LED CONSOLE LIGHT
LED
L1
L1a
N
W
Y
Y
LF
OR/W
OR/BK
OR
2
1
INNER ELEMENT 1000 W
OUTER ELEMENT 800 W
Y
BK
BK
W
1B
2A
2B
1A
L1
L2
LED CONSOLE LIGHT
LED
N
W
Y
LR
Y/W
Y/BK
Y
2
ELEMENT 1800 W
BR
BK
BK
1B
2A
2B
1A
L1
LED CONSOLE LIGHT
LED
N
W
Y
RF
BR/W
BR
R
2
1
INNER ELEMENT 1200 W
OUTER ELEMENT 1300 W
BU
BK
BK
W
1B
2A
2B
1A
L1
L2
LED CONSOLE LIGHT
LED
N
W
Y
RR
BU/W
BU/BK
BU
W
W
W
W
R/W
G
3
1
3
1
3
1
3
1
OR
Y
BR
BU
DOOR SW
SURFACE INDICATOR LIGHTS
COOKTOP ELEMENTS
SMART KNOB SWITCHES
OR
Y
BR
BU
2
BU
W
1
2
BU
W
1
2
BU
W
1
2
BU
W
1
LF
LR
RR
RF
L1
L1a
L1
L1a
L1
L1a
TECH SHEET #9757662

Table of Contents

Related product manuals