EasyManua.ls Logo

Lenze EPM-T1 Series - Page 356

Lenze EPM-T1 Series
544 pages
To Next Page IconTo Next Page
To Next Page IconTo Next Page
To Previous Page IconTo Previous Page
To Previous Page IconTo Previous Page
Loading...
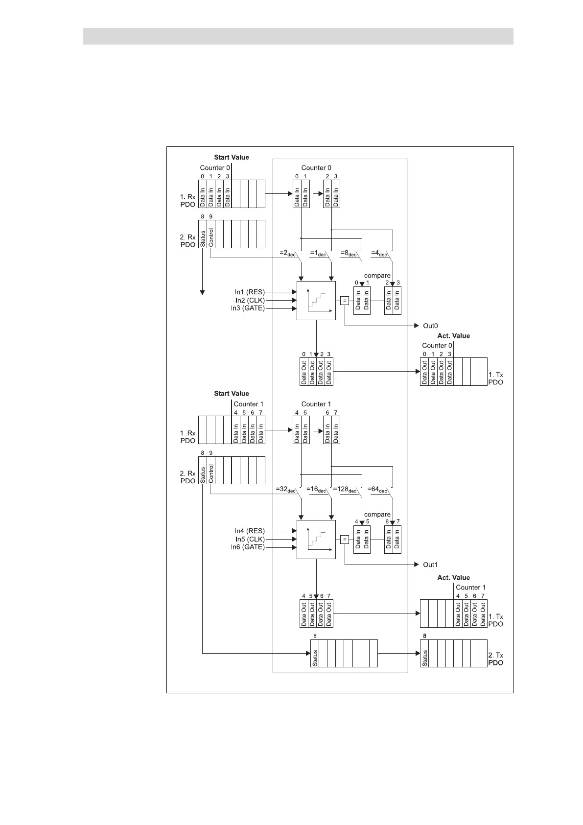
Parameterising 2/4xcounter module
2 × 32 bit counter with GATE and set/reset (modes 23 ... 26)
12
Parameter setting via system bus (CAN) / CANopen
12.4
12.4.13
L
12.4−36
EDSPM−TXXX−9.0−11/2009
epm−t084
Fig. 12.4−46 Counter access of the 2/4xcounter in the modes 23 ... 26
Counter access

Table of Contents

Related product manuals