EasyManua.ls Logo

Linde H 80 D - Central Electrical System

Linde H 80 D
282 pages
Print Icon
To Next Page IconTo Next Page
To Next Page IconTo Next Page
To Previous Page IconTo Previous Page
To Previous Page IconTo Previous Page
Loading...
Page 34
Section 4.6
Service Training
09.04
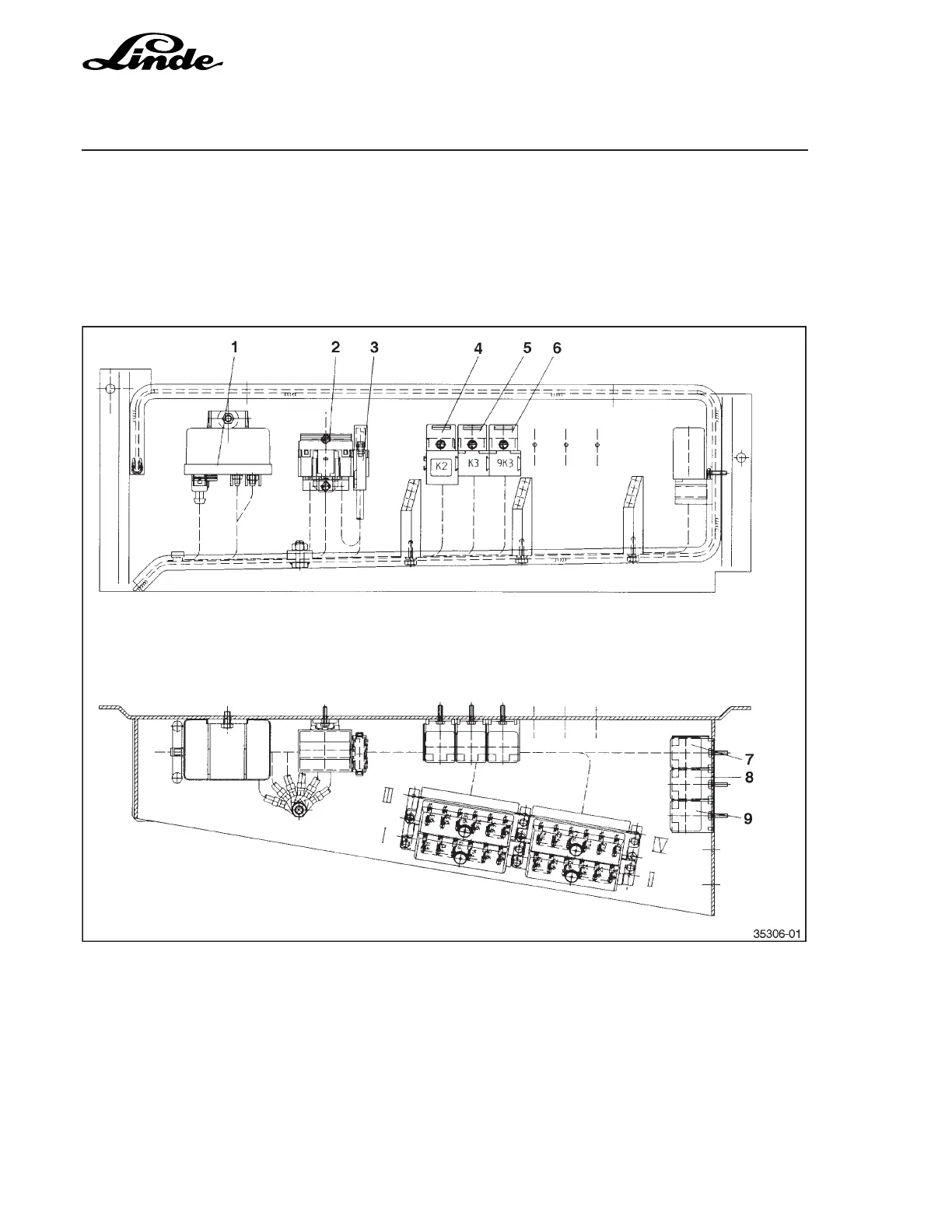
4.6.9 CENTRAL ELECTRICAL SYSTEM
The whole electrical system ist mounted on the left side of the truck behind a cover of the second foothold.
8 Interval relay 9K2
9 Flasher relay 5K1
I Fuse box
II Fuse box
III Fuse box
IV Fuse box
1 Preheating relay
2 Distributor plug (plus)
3 Preheating fuse 80 A
4 Starter relay
5 Signal converter preheating
6 Windsccreen wiper relay
7 Interval relay 9K1

Table of Contents

Related product manuals