EasyManua.ls Logo

Littelfuse MPS - DIF Summation Connection

Littelfuse MPS
148 pages
Print Icon
To Next Page IconTo Next Page
To Next Page IconTo Next Page
To Previous Page IconTo Previous Page
To Previous Page IconTo Previous Page
Loading...
Page 3-9
MPS Motor Protection System Rev. 6-F-022117
System Wiring
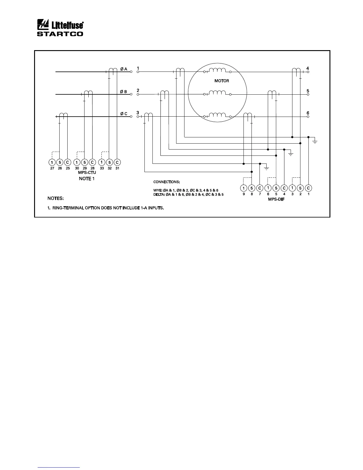
FIGURE 3.13 DIF Summation Connection.

Table of Contents