EasyManua.ls Logo

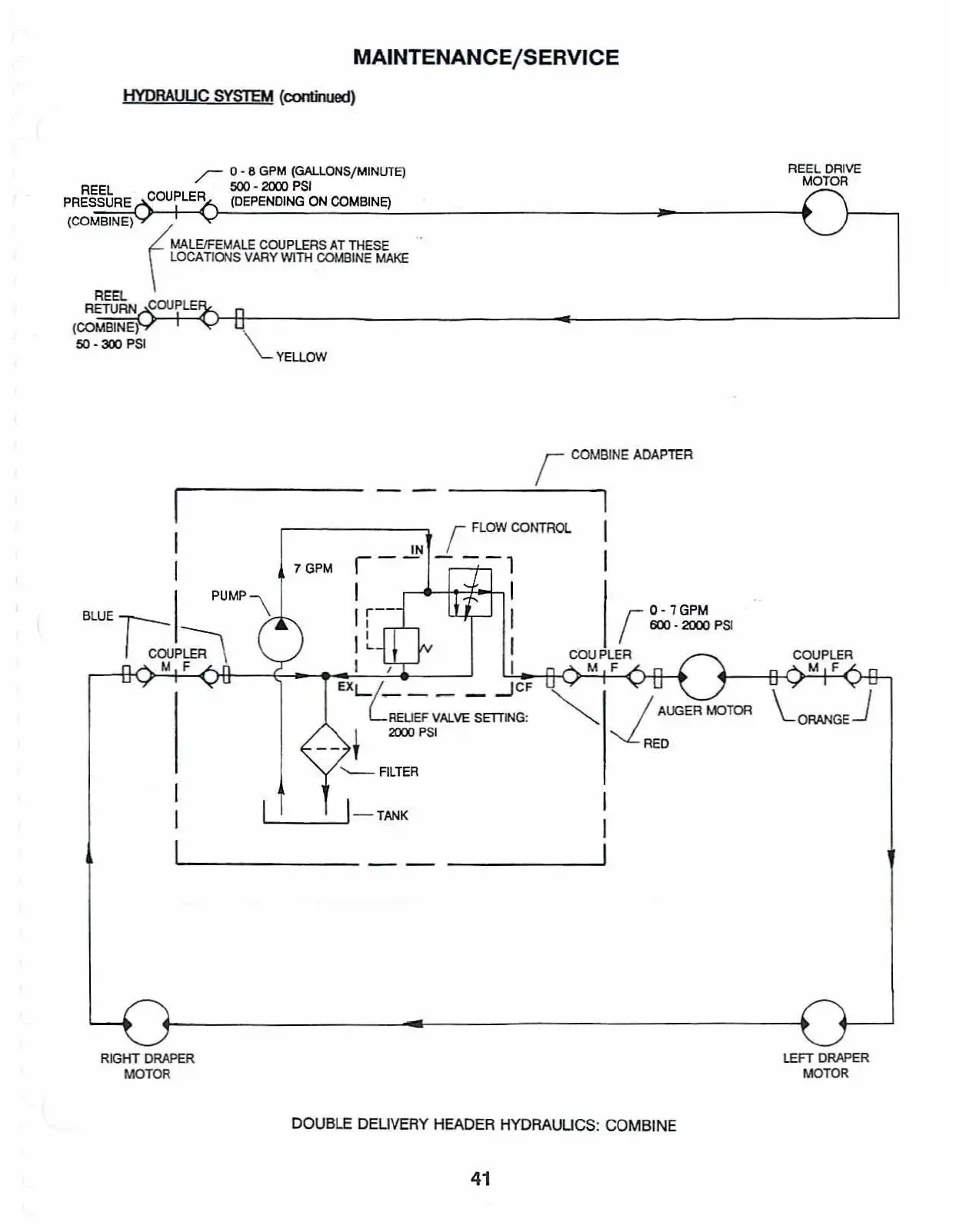
MacDon 960 - Hydraulic Schematic Double Delivery Header on Combine

MacDon 960
84 pages
Print Icon
To Next Page IconTo Next Page
To Next Page IconTo Next Page
To Previous Page IconTo Previous Page
To Previous Page IconTo Previous Page
Loading...
MAINTENANCE/SERVICE
HYPRAUUC
SYSTal
(c:orUlUEld)
REEL
PRESSURE
(COMBINE)
REEL
RETURN
(COMBINE
50·300
PSI
~
0·8
GPM
(GAllONS/MINUTE)
500 2000
PSI
COUPLER
(DEPENDING
ON
COMBINE)
I
MALEIFEMALE
COUPLERS
AT
THESE
\
LOCATIONS
VARY
WITH
COMBINE
MAKE
COOPLE
"-
YELLO'N
REEL
DRIVE
MOTOR
COUPLER
M F
~
/
AUGER
MOTOR
----L
REO
r
COMBINE
ADAPTER
---'----I
I
I
r
FLOW
CONTROl
'N
r--
-
--,
I I
I
r,
--
I r
0-1GPM
600·
2CXX)
PSI
I
~
I
COUPLER
I
~1~-fl-<yM¥F~>-ft-4
EXL/
-.JeF
L
REUEF
VALVE
SEITING:
2000
PSI
--
t
7 GPM
PUMP,
BLUEr--
\
I
COUP~
M F
'---
FILTER
~-----.:_1-1ANK
L--
_
RIm-IT
DRAPER
MOTOR
LEFT
DRAPER
MOTOR
DOUBLE
DEUVERY
HEADER
HYDRAUUCS:
COMBINE
41

Table of Contents

Related product manuals