EasyManua.ls Logo

Micros Systems Workstation 4 - Workstation 4 on Wall Mount Stand

Micros Systems Workstation 4
128 pages
Print Icon
To Next Page IconTo Next Page
To Next Page IconTo Next Page
To Previous Page IconTo Previous Page
To Previous Page IconTo Previous Page
Loading...
Workstation 4 Setup Guide A-7
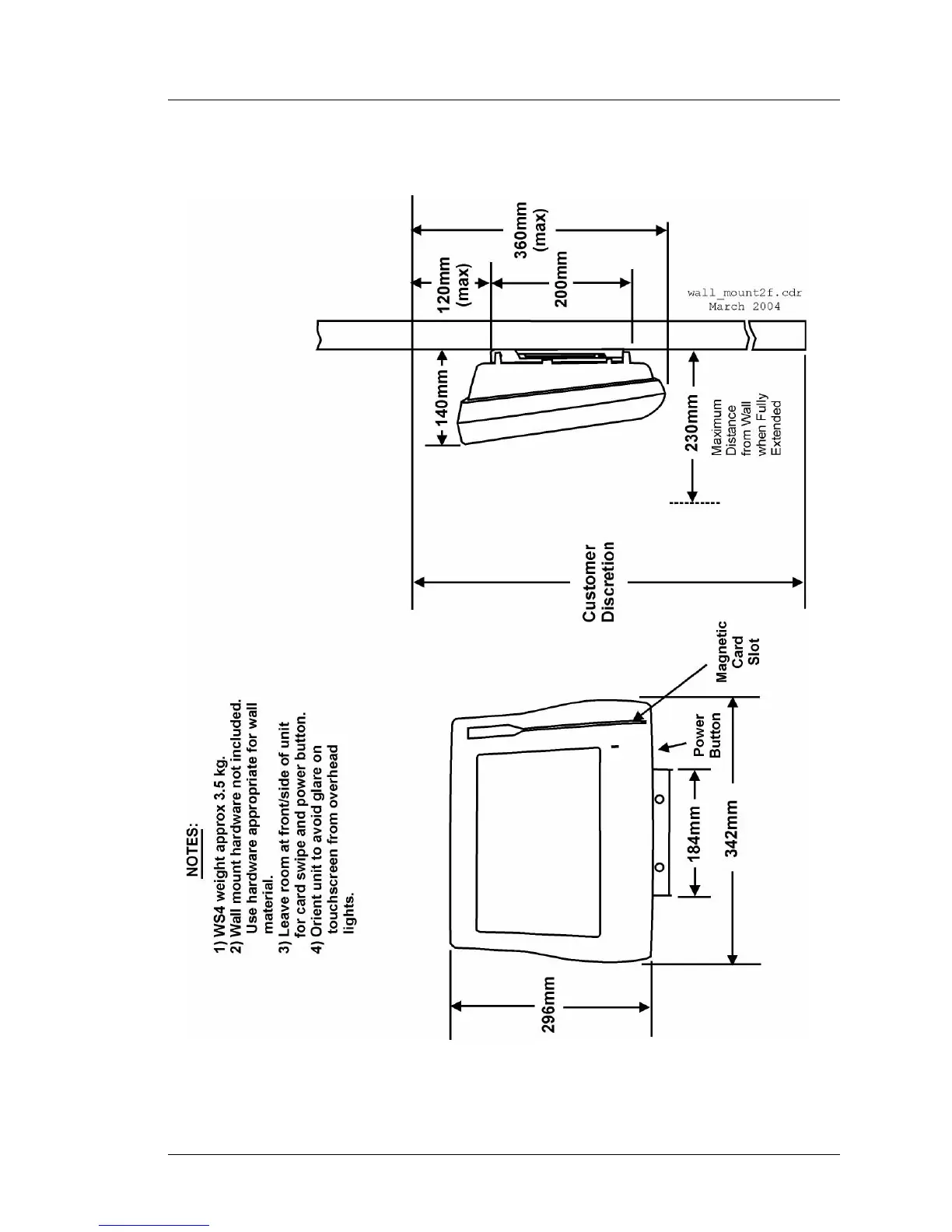
Equipment Dimensions
Workstation 4 on Wall Mount Stand
Workstation 4 on Wall Mount Stand

Table of Contents

Related product manuals