EasyManua.ls Logo

Midland SP-8 - Sp-708 R Ev -B

Midland SP-8
145 pages
Print Icon
To Next Page IconTo Next Page
To Next Page IconTo Next Page
To Previous Page IconTo Previous Page
To Previous Page IconTo Previous Page
Loading...
www.roadwidener.com
132
Model SP-8 &10
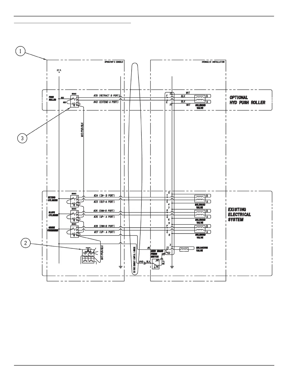
18.1.3 eleCtrICAl InstAllAtIon, sp-866 rev-B
Note:
Electric schematic for Hydraulic Push Roller Installation shown here is for single sided machine.
There is no change in electric schematic for Hydraulic Push Roller Installation for dual sided machine.
ELECTRICAL SCHEMATIC

Table of Contents

Related product manuals