EasyManua.ls Logo

Midland SP-8 - 11 B Aca; Blade and Column Assembly SP-8;SPD-8; Lade Nd Olumn Ssembly; Ight

Midland SP-8
145 pages
Print Icon
To Next Page IconTo Next Page
To Next Page IconTo Next Page
To Previous Page IconTo Previous Page
To Previous Page IconTo Previous Page
Loading...
www.roadwidener.com
74
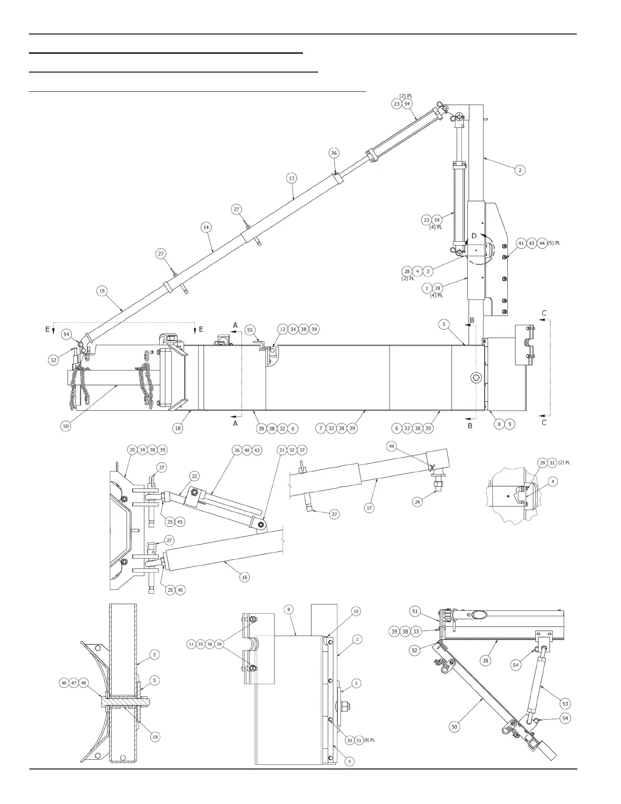
Model SP-8 &10
11.1 BlAde And Column AssemBly sp-8/spd-8
11.1.1 BlAde And Column AssemBly, rIGHt sIde, sp-579 rev-A
VIEW
A-A
VIEW
B-B
VIEW
C-C
VIEW
D-D
VIEW
E-E
11. BlAde And Column AssemBly

Table of Contents

Related product manuals