EasyManua.ls Logo

Omron CS1W-CRM21 - Page 149

Omron CS1W-CRM21
223 pages
Print Icon
To Next Page IconTo Next Page
To Next Page IconTo Next Page
To Previous Page IconTo Previous Page
To Previous Page IconTo Previous Page
Loading...
127
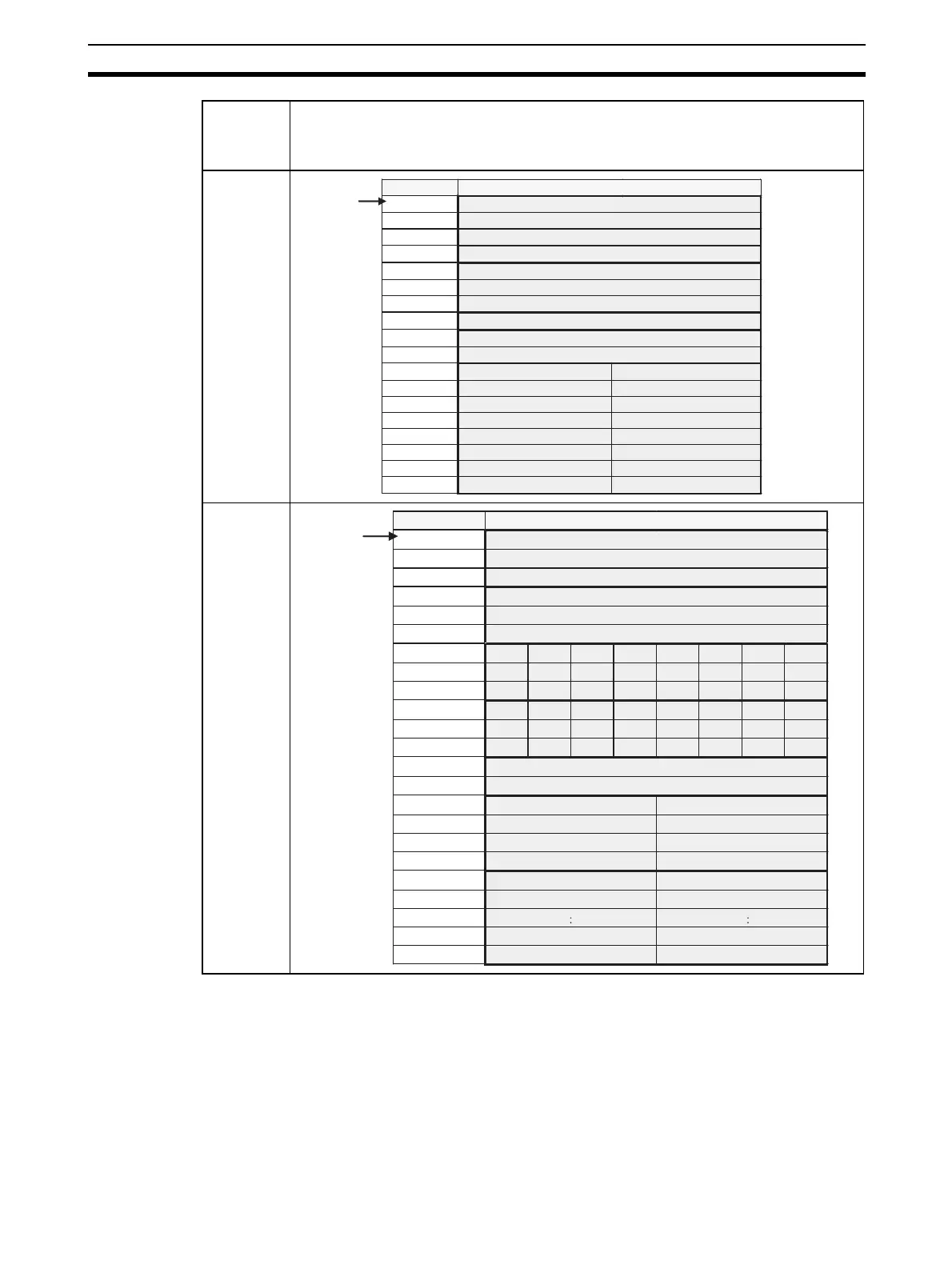
Allocations to Slave Units Section 5-2
Communications Mode
No. 8: Software Setting
When using communications mode 8 (Software Setting Mode), the CompoNet
Unit IN/OUT information can be allocated in the CIO, DM, WR, and HR Areas,
in addition to the Special I/O Unit Area.
The Software Setting Table is used in the following situations.
When allocating words in an area other than the Special I/O Unit Area to
Slave Units
When setting the number of words allocated, e.g., when words after those
allocated to the Slave Units will be used for another purpose.
2
3
Communi-
cations
mode num-
ber
Pattern
+0 [ OUT0 ]
: :
+30 [ OUT30]
+31 [ OUT31]
+32 [ I N0 ]
: :
+62 [ I N30 ]
+63 [ I N31 ]
+64
+65
+66
+67
+68
+69
+70
+71
+72
+73
Word address Bit 15 Bit 0
Special I/O
Unit Area
CIO 2000 +
(10 x unit
number)
Status
Parameters
Communications Error Flags: OUT0 to OUT7 Participation Flags: OUT0 to OUT7
Communications Error Flags: IN0 to IN7 Participation Flags: IN0 to IN7
Communications Error Flags: OUT8 to OUT15
Participation Flags: OUT8 to OUT15
Communications Error Flags: IN8 to IN15
Participation Flags: IN8 to IN15
Communications Error Flags: OUT16 to OUT23 Participation Flags: OUT16 to OUT23
Communications Error Flags: IN16 to IN23 Participation Flags: IN16 to IN23
Communications Error Flags: OUT24 to OUT31
Participation Flags: OUT24 to OUT31
Communications Error Flags: IN24 to IN31
Participation Flags: IN24 to IN31
+0 [ OUT0 ]
: :
+15 [ OUT15 ]
+16 [ I N0 ]
: :
+31 [ I N15 ]
+32 [ BIT OUT 7] [ BI T OUT 6] [ BI T OUT 5] [ BI T OUT 4] [ BI T OUT 3] [ BI T OUT 2] [ BI T OUT 1] [ BI T OUT 0]
: : : : : : : : :
+39 [ BIT OUT 63] [ BIT OUT 62] [ BIT OUT 61] [ BIT OUT 60] [ BIT OUT 59] [ BIT OUT 58] [ BI T OUT 57] [ BIT OUT 56]
+40 [ BI T IN 7] [ BI T I N 6] [ BI T I N 5] [ BI T IN 4] [ BI T I N 3] [ BI T IN 2] [ BIT IN 1] [ B IT IN 0]
: : : : : : : : :
+47 [ BIT IN 63] [ BIT IN 62] [ BIT IN 61] [ BI T IN 60] [ BI T IN 59] [ BI T IN 58] [ BI T IN 57] [ BI T I N 56]
+48
+49
+50
+51
+52
+53
+54
+55
:
+68
+69
Word address Bit 15 Bit 0
Special I/O
Unit Area
CIO 2000 +
(10 x unit
number)
Status
Parameters
Communications Error Flags: OUT0 to OUT7 Participation Flags: OUT0 to OUT7
Communications Error Flags: IN0 to IN7
Participation Flags: IN0 to IN7
Communications Error Flags: OUT8 to OUT15
Participation Flags: OUT8 to OUT15
Communications Error Flags: IN8 to IN15
Participation Flags: IN8 to IN15
Communications Error Flags: BIT OUT0 to BIT OUT7
Participation Flags: BIT OUT0 to BIT OUT7
Communications Error Flags: BIT OUT56 to BIT OUT63
Participation Flags: BIT OUT56 to BIT OUT63
Communications Error Flags: BIT IN56 to BIT IN63
Participation Flags: BIT IN56 to BIT IN63
Communications Error Flags: BIT IN0 to BIT IN7 Participation Flags: BIT IN0 to BIT IN7

Table of Contents

Related product manuals