EasyManua.ls Logo

Panasonic TH-37PHD8GK - HB-Board (2 of 2) Schematic Diagram

Panasonic TH-37PHD8GK
235 pages
Print Icon
To Next Page IconTo Next Page
To Next Page IconTo Next Page
To Previous Page IconTo Previous Page
To Previous Page IconTo Previous Page
Loading...
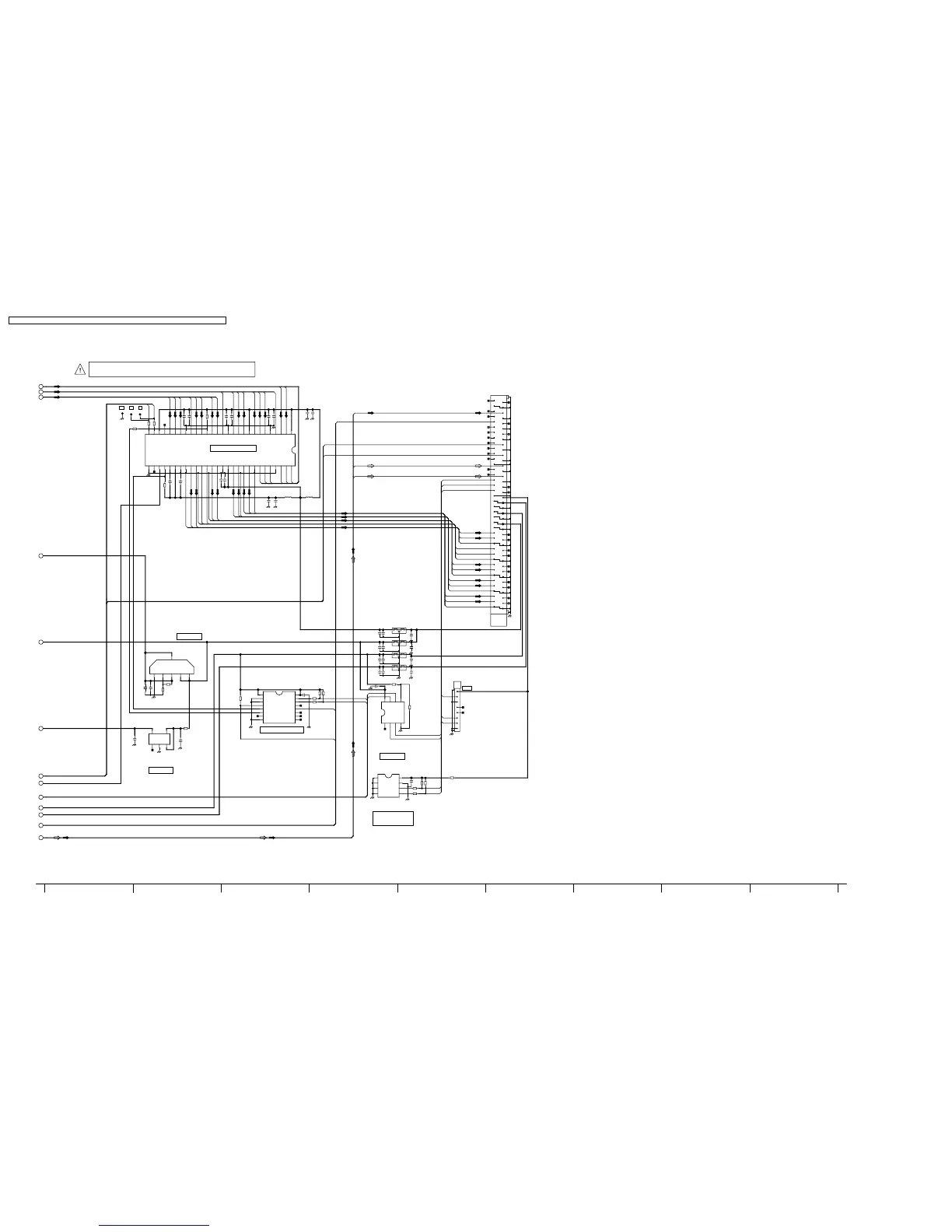
16.18. HB-Board (2 of 2) Schematic Diagram
+
+
+
++
+
+
C
C
C
C
C
AH_TX2+
AJ_TXC-
AJ_TXC+
AI_TX3-
AI_TX3+
AD_TX0-
AD_TX0+
AK_TX1-
AK_TX1+
AH_TX2-
AE_L
AM_VS
SRQ
AM_HS
AL_S2_DET
9V
5V
3.3V
PLL2.5V
AL_S_DET
3.3V
3.3V
AC_RO1
AC_RO7
AC_RO6
AC_RO5
AC_RO4
AC_RO3
AC_RO0
AC_RO2
AB_GO2
AB_GO3
AB_GO4
AB_GO0
AB_GO1
AB_GO5
AB_GO7
AB_GO6
AA_BO5
AA_BO7
AA_BO6
AA_BO2
AA_BO0
AA_BO1
AA_BO3
AA_BO4
3.3V
AJ_TXC-
3.3V
AI_TX3+
AJ_TXC+
AI_TX3-
AD_TX0+
AK_TX1-
AK_TX1+
AD_TX0-
AH_TX2+
AH_TX2-
AL_S_SEL
SCL2
SDA2
SRQ
3.3V
AM_VS
AM_HS
SDA2
SCL2
AG_SDA2
AG_SCL2
SDA2
SCL2
AG_SCL2
AG_SDA2
AE_V_Y
SDA2
SCL2
AE_R
3.3V
3.3V
2.5V
IC3302
C0DBEZG00004
1
IN
2
ON/OFF
3
OUT
4
V_adj
5
GND
6
OUT
1%
R3300
1.5k
R3338
22
R3308
10k
C3254
16V
0.1u
C3322
4V
220u
C3327
16V
0.1u
C3316
10V
1u
IC3699
C3EBGC000018
1
A0
2
A1
3
A2
4
GND
5
SDA
6
SCL
7
WP
8
VCC
C3265
4V
220u
C3264
16V
0.1u
IC3251
C0ZBZ0000684
1
2
3
4
5
6
7
8
9
10
11
12
13
14
15
16
17
18
19
20
21
22
23
24
25
26
27
2829
30
31
32
33
34
35
36
37
38
39
40
41
42
43
44
45
46
47
48
49
50
51
52
53
54
55
56
C3258
16V
0.1u
C3311
16V
0.1u
R3253
4.7k
C3313
10V
1u
R3337
22
C3260
16V
0.1u
C3318
16V
0.1u
C3328
16V
0.1u
C3308
4V
220u
C3257
50V
1000p
R3304
22
R3252
10k
C3256
16V
0.1u
C3309
10V
1u
IC3303
AN80L25RMSTX
5
4
3
1
2
C3325
16V
47u
C3321
16V
0.1u
H0
1
2
3
4
5
6
7
8
C3324
6.3V
100u
TS3101
C3319
16V
0.1u
C3329
16V
0.1u
L3251
ELJPA2R2MF
C3266
16V
0.1u
R3303
22
TS3102
1%
R3301
1.5k
C3259
50V
1000p
C3255
50V
1000p
R3251
100
C3261
4V
220u
TS3100
C3253
50V
1000p
C3323
4V
220u
C3320
16V
0.1u
C3330
16V
0.1u
IC3305
C0JBAZ000801
1
A0
2
A1
3
A2
4
P0
5
P1
6
P2
7
P3
8
GND
9
P4
10
P5
11
P6
12
P7
13
VDAC
14
SCL 1
15
SDA 1
16
VCC
C3263
16V
0.1u
L3252
ELJPA2R2MF
R3309
10k
C3262
50V
1000p
H1
A1
A2
A3
A4
A5
A6
A7
A8
A9
A10
A11
A12
A13
A14
A15
A16
A17
A18
A19
A20
A21
A22
A23
A24
A25
A26
A27
A28
A29
A30
A31
A32
A33
A34
A35
A36
A37
A38
A39
A40
B1
B2
B3
B4
B5
B6
B7
B8
B9
B10
B11
B12
B13
B14
B15
B16
B17
B18
B19
B20
B21
B22
B23
B24
B25
B26
B27
B28
B29
B30
B31
B32
B33
B34
B35
B36
B37
B38
B39
B40
L3305
ELKE103FA
1
2
3
L3306
ELKE103FA
1
2
3
L3307
ELKE103FA
1
2
3
L3308
ELKE103FA
1
2
3
C3317
10V
1u
R3302
4.7k
C3301
10V
1u
R3313
33k
R3314
10k
R3315
10k
R3305
0
R3307
0
R3254
22
R3255
22
C0JBBZ000285
IC3304
1
NC
2
SCL0
3
SDA0
4
GND
5
EN
6
SDA1
7
SCL1
8
VCC
33k
R3319
GND
VP HP
STB5V
Y3-
Y3+
LVDS GND
PLL GND
PLL VCC
PLL GND
/PDWN
CLK IN
D26
GND D25
D24
VCC
D23
D22
D21
D20
GND
D19
D18
D27
LVDS GND
Y0-
Y0+
Y1-
Y1+
LVDS VCC
LVDS GND
Y2-
Y2+
CLKOUT-
CLKOUT+ D17
CLKSEL
D16
D15
D14
GND
D13
D12
VCC
D10
D11
D9
GND
D2
D3
D4
D0
D1
D8
GND
D7
D6
D5
VCC
CLKI_M
S_DET
SRQ
GND
SDA
SCL
GND
OUT
ON/OFF
17 18141210 1611 1513
LVDS TRANSMITTER
AVR 2.5V
EEPROM
TERMINAL BOARD
INFORMATION
5V=>3.3V
DAC IIC EXPANDER
AVR 2.5V
3
1
11
12
10
8
9
7
13
5
6
4
2
TO
J-BOARD
SLOT
USE
FACTORY
FOR
IN
GNDNC
TH-37/42PHD8UK
HB-Board (2 of 2) Schematic Diagram
TH-37/42PHD8UK
HB-Board (2 of 2) Schematic Diagram
HB-BOARD TXNHB10QXS (2/2)
TH-37PHD8GK / TH-37PHD8GS / TH-37PHD8UK / TH-42PHD8GK / TH-42PHD8GS / TH-42PHD8UK
112

Table of Contents

Related product manuals