EasyManua.ls Logo

Panasonic TH-37PHD8GK - Removal of the SC-Board; Removal of the SS2-Board and the SS3-Board; Removal of the SS-Board; Removal of the C1, C2, C3 and the C4-Board

Panasonic TH-37PHD8GK
235 pages
Print Icon
To Next Page IconTo Next Page
To Next Page IconTo Next Page
To Previous Page IconTo Previous Page
To Previous Page IconTo Previous Page
Loading...
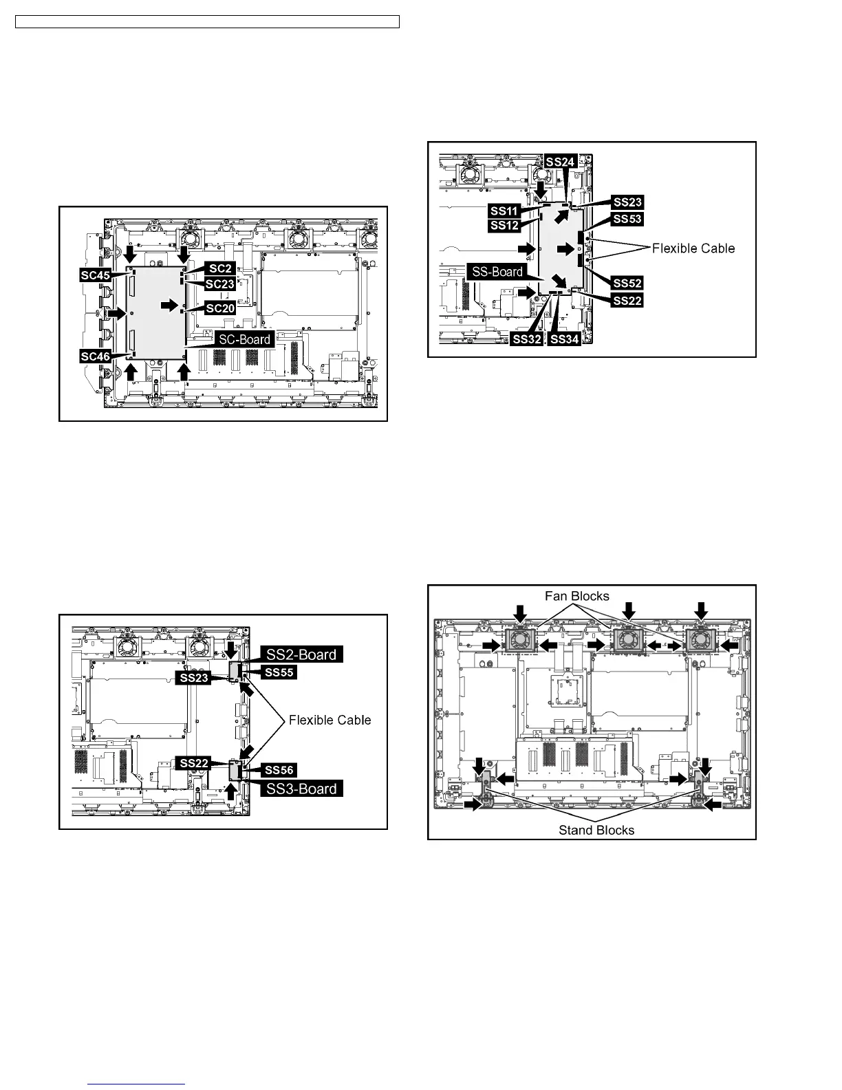
8.11. Removal of the SC-Board
1. Remove the Speaker Terminal Block(R).
(Reference to Removal of the H3-Board(L, R))
2. Remove the each 2 screws.
3. Slide the SU-Board and the SD-Board to the left.
(Reference to Removal of the SU-Board and the SD-Board)
4. Disconnect the couplers(SC2, SC20, SC23, SC45, SC46).
5. Remove the 6 screws and then remove the SC-Board.
8.12. Removal of the SS2-Board and
the SS3-Board
1. Disconnect the coupler(SS23).
2. Remove the Flexible Cable from the coupler(SS55).
3. Disconnect the coupler(SS22).
4. Remove the Flexible Cable from the coupler(SS56).
5. Remove the each 2 screws and then remove the SS2-
Board and the SS3-Board.
8.13. Removal of the SS-Board
1. Disconnect the couplers(SS11, SS12, SS22, SS23, SS24,
SS32, SS34).
2. Remove the Flexible Cable from the couplers(SS52, SS53)
3. Remove the 6 screws and then remove the SS-Board.
8.14. Removal of the C1, C2, C3 and
the C4-Board
1. Remove the Slot Block.
(Reference to Removal of the Slot Block)
2. Remove the Speaker Terminal Block(L, R).
(Reference to Removal of the H3-Board(L, R))
3. Remove the each 3 screws and then remove the Fan
Blocks.
4. Remove the each 3 screws and then remove the Stand
Blocks.
26
TH-37PHD8GK / TH-37PHD8GS / TH-37PHD8UK / TH-42PHD8GK / TH-42PHD8GS / TH-42PHD8UK

Table of Contents

Related product manuals