EasyManua.ls Logo

Panasonic TH-37PHD8GK - HX-Board (42 Inch)

Panasonic TH-37PHD8GK
235 pages
Print Icon
To Next Page IconTo Next Page
To Next Page IconTo Next Page
To Previous Page IconTo Previous Page
To Previous Page IconTo Previous Page
Loading...
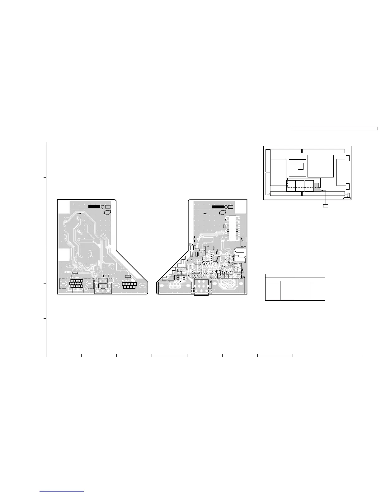
15.7. HX-Board (42inch)
ABCDEFGH I
1
2
3
4
5
6
HX-BOARD(FOIL SIDE)
TZTNP020YNS
HX-BOARD(COMPONENT SIDE)
TZTNP020YNS
TH-42PHD8GK/GS/UK
HX-BOARD TZTNP020YNS
TH-42PHD8GK/GS/UK
HX-BOARD TZTNP020YNS
L526
R653
R654
R655
R656
R663
R664
R668
L555
R672
JK509
JK511
JK513
C523
C524
D501
D502
D503
D504
D505
D506
D507
D508
D509
R508
R509
IC502
D510
Q531
Q532
Q533
Q534
R510
Q535
R511
Q536
Q537
R526R527
C550
R528
C551
R529
R530
R537
R538
C561
C562
C563
C564
C565
C566
C567
R547
R548
FL507
FL508
FL509
FL510
FL511
FL512
FL513
FL514
FL515
FL516
FL517
R776 R777
R778
R585
R586
R589
R780
R781
R782
R783
R784
R590
R785
R591
R786
R592
R787
R593
R788
R789
R790
R791
HX1
R792
R794
C404
C405
C409
R400
TNPA3400
CR NO.3
A
B
B
C
C
1
D
D
E
E
A
HX
PbF
1
5
6
9
1
5
ORDER
NO.
1
4
5
8
111
12
22
JK509
JK511
JK513
CR NO.3
TNPA3400
HX
1
PbF
15
6
9
1
5
6
10
11
15
SEE REVERSE FOR ORDER NO.
HX
Parts Location
HX-BOARD
IC
IC3502 E-4 Q3531 D-3
Q3532 D-3
Q3533 E-3
Q3534 E-3
Q3535 E-3
Q3536 E-3
Q3537 F-3
TRANSISTOR
TH-37PHD8GK / TH-37PHD8GS / TH-37PHD8UK / TH-42PHD8GK / TH-42PHD8GS / TH-42PHD8UK
65

Table of Contents

Related product manuals