EasyManua.ls Logo

Panasonic TH-37PHD8GK - C4-Board (2 of 2) Schematic Diagram (42 Inch)

Panasonic TH-37PHD8GK
235 pages
Print Icon
To Next Page IconTo Next Page
To Next Page IconTo Next Page
To Previous Page IconTo Previous Page
To Previous Page IconTo Previous Page
Loading...
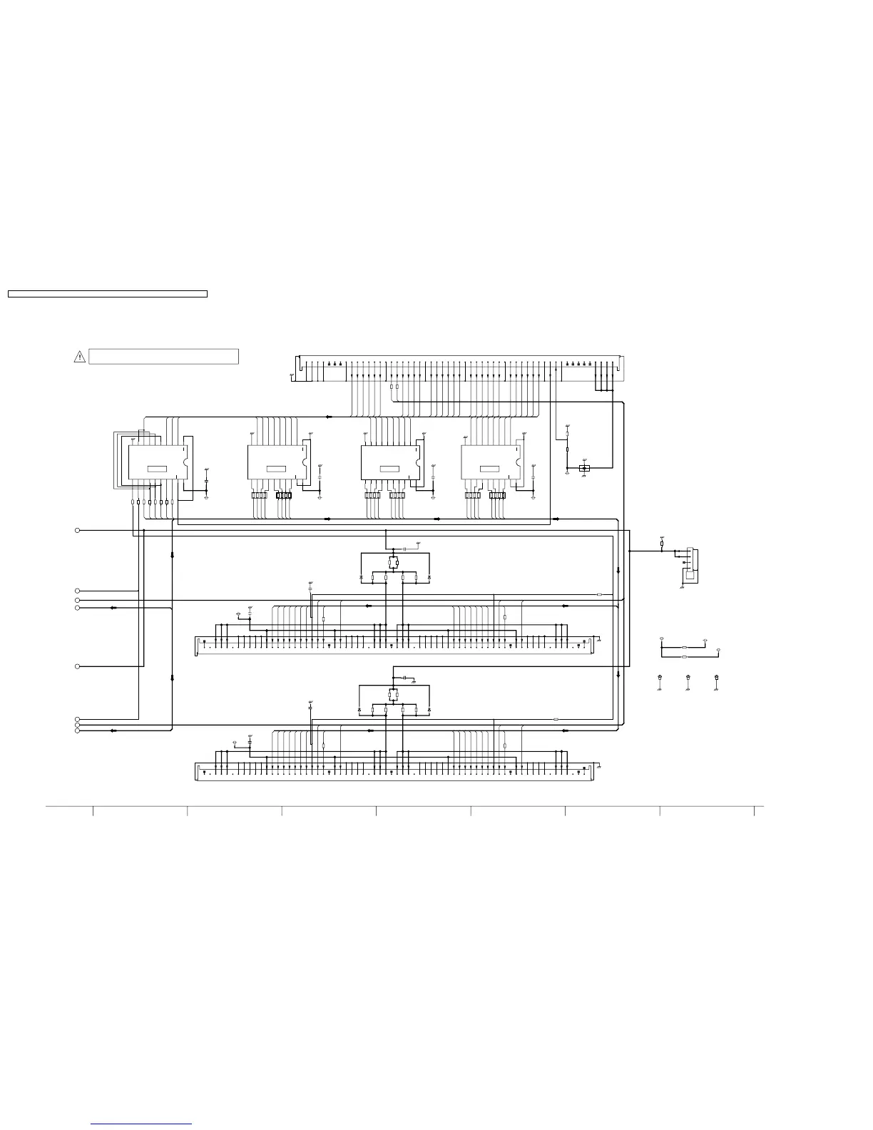
16.60. C4-Board (2 of 2) Schematic Diagram (42inch)
TERM
SIDE
TERM
SIDE
TERM
SIDE
G
G
AB_CLK2
AB_CLK3
AA_LED
AA_CLK2
AA_CLK3
AB_LEU4
AA_DDC8
AA_DDB8
AB_DDA8
AA_DDC9
AB_DDA9
AB_LEU4
AB_DDC8
AB_DDB8
AA_DDA8
AB_DDC9
AA_DDB9
AA_DDA9
AB_LEU3
AB_LEU3
AB_LEU1
AB_LEU2
AB_LEU3
AB_LEU4
AB_DDB12
AB_DDC12
AB_DDA15
AB_DDB15
AB_DDC15
AB_DDA14
AB_DDB14
AB_DDC14
AB_DDC10
AB_DDB10
AB_DDA10
AB_DDC11
AB_DDA13
AB_DDB13
AB_DDC13
AB_DDA12
AB_DDB9
AB_DDA9
AB_DDC9
AB_DDA8
AB_DDB8
AB_DDC8
AB_DDA11
AB_DDB11
AA_CLRD
AA_ODED
AA_CLRD
AA_ODED
AA_ODED
AA_CLRD
AA_CLRD
AA_ODED
AB_PCD2_1
AA_PCD2
AA_DDA14
AA_DDC15
AA_DDB15
AA_DDA15
AA_DDC14
AA_DDB14
AA_PCD2
AA_LED
AA_CLK3
AA_CLK2
AA_DDC12
AA_DDB12
AA_DDA12
AA_DDC13
AA_DDB13
AA_DDA13
AA_DDA10
AA_DDC11
AA_DDB11
AA_DDA11
AA_DDC10
AA_DDB10
AA_DDB9
AA_DDA9
AB_CLK2
AB_CLK3
AA_CLRD
AA_ODED
AA_DDB12
AA_DDC12
AA_DDA15
AA_DDB15
AA_DDC15
AA_DDA14
AA_DDB14
AA_DDC14
AA_DDC11
AA_DDA10
AA_DDB10
AA_DDC10
AA_DDA13
AA_DDB13
AA_DDC13
AA_DDA12
AA_DDA9
AA_DDB9
AA_DDC9
AA_DDA8
AA_DDB8
AA_DDC8
AA_DDA11
AA_DDB11
AB_CLK3
AA_DDC9
AA_DDA8
AA_DDB8
AA_DDC8
AB_DDB9
AA_DDC10
AB_DDA10
AA_DDC11
AB_DDB10
AB_DDB11
AB_DDA11
AB_DDA11
AB_DDB11
AA_DDC11
AB_DDA10
AB_DDB10
AA_DDC10
AB_CLK2
AB_PCD2_2
C4_5_3V_B
C4_5_3V_B
C4_5V
C4_5V
C4_5V
C4_5_3V
C4_5V
C4_5_3V
C4_5_3V
C4_5_3V
C7464
100V
0.47u
C0JBAZ001120
IC7404
OE1
1
2
A1
3
A2
4
A3
5
A4
6
A5
7
A6
8
A7
9
A8
10
GND
11
Y8
12
Y7
13
Y6
14
Y5
15
Y4
16
Y3
17
Y2
18
Y1
19
OE2
20
Vcc
R7401
0
R7483
47
R7485
47
R7446
22
R7434
EXB38V470JV
C7483
16V
0.1u
R7465
22
C7487
16V
0.1u
CB3
1
3
4
5
7
8
9
10
11
12
13
14
15
16
17
18
19
20
21
22
23
24
25
26
27
28
29
31
32
33
34
35
36
37
39
40
41
42
43
44
45
46
47
48
49
50
51
52
53
54
55
57
58
59
60
61
63
64
65
67
68
56
CB4
1
3
4
5
7
8
9
10
11
12
13
14
15
16
17
18
19
20
21
22
23
24
25
26
27
28
29
31
32
33
34
35
36
37
39
40
41
42
43
44
45
46
47
48
49
50
51
52
53
54
55
57
58
59
60
61
63
64
65
67
68
56
R7470
0
R7467
22
R7439
EXB38V470JV
C7440
16V
1u
R7435
EXB38V470JV
R7484
47
R7489
0
C41
1
2
3
4
5
6
7
8
9
10
11
12
13
14
15
16
17
18
19
20
21
22
23
24
25
26
27
28
29
30
31
32
33
34
35
36
37
38
39
40
41
42
43
44
45
46
47
48
49
50
51
52
53
54
55
D7406
B0HCMM000014
R7472
47
C0JBAZ001120
IC7401
OE1
1
2
A1
3
A2
4
A3
5
A4
6
A5
7
A6
8
A7
9
A8
10
GND
11
Y8
12
Y7
13
Y6
14
Y5
15
Y4
16
Y3
17
Y2
18
Y1
19
OE2
20
Vcc
R7460
0
C7485
16V
0.1u
R7416
0
R7487
47
C43
1
2
3
4
ZA7401
K4CD01000013
R7452
47
R7449
22
C0JBAZ001120
IC7402
OE1
1
2
A1
3
A2
4
A3
5
A4
6
A5
7
A6
8
A7
9
A8
10
GND
11
Y8
12
Y7
13
Y6
14
Y5
15
Y4
16
Y3
17
Y2
18
Y1
19
OE2
20
Vcc
ZA7402
K4CD01000013
C7461
50V
100p
R7447
22
J0HABH000013
FL7401
1
2
3
R7440
0
R7445
22
R7438
EXB38V470JV
D7405
B0HCMM000014
R7463
47
R7448
0
R7419
100k
R7466
22
R7443
47
R7486
47
C7444
100V
0.47u
R7418
22k
R7430
220k
C0JBAZ001120
IC7403
OE1
1
2
A1
3
A2
4
A3
5
A4
6
A5
7
A6
8
A7
9
A8
10
GND
11
Y8
12
Y7
13
Y6
14
Y5
15
Y4
16
Y3
17
Y2
18
Y1
19
OE2
20
Vcc
C7481
16V
0.1u
C7441
50V
100p
R7468
0
R7488
47
ZA7403
K4CD01000013
R7417
0
R7469
22
R7436
EXB38V470JV
D7407
B0HCMM000014
R7471
0
R7437
EXB38V470JV
C7460
16V
1u
R7490
0
D7408
B0HCMM000014
R7441
0
FX
GND
DM
GND
VDD1
VDD2
FX
GND
A4
VDD1
GND
GND
VDD2
NC
FDET
VDD2
NC
A4
VDD2
A3
GND
GND
VDD1
A2
LEN
CLR
VDD2
GND
A6
VDD2
A5
VDD2
GND
NC
NC
A3
NC
BLK
VDD2
GND
ODE
CLR
A1
A6
VDD1
GND
NC
NC
GND
DM
VDD2
NC
FS
GND
BLK
LEN
A1
A5
VDD2
FS
A2
FDET1
GND
VDD2
GND
ODE
VDD2
GND
FX
GND
DM
GND
VDD1
VDD2
FX
GND
A4
VDD1
GND
GND
VDD2
NC
FDET
VDD2
NC
A4
VDD2
A3
GND
GND
VDD1
A2
LEN
CLR
VDD2
GND
A6
VDD2
A5
VDD2
GND
NC
NC
A3
NC
BLK
VDD2
GND
ODE
CLR
A1
A6
VDD1
GND
NC
NC
GND
DM
VDD2
NC
FS
GND
BLK
LEN
A1
A5
VDD2
FS
A2
FDET1
GND
VDD2
GND
ODE
VDD2
GND
GND
Vda 70V
NC
Vda 70V
DOUTDC[8]
GND
DOUTDA[13]
P5V
P5V
DOUTDC[9]
DOUTDC[11]
LED
DOUTDC[15]
DOUTDB[12]
DOUTDB[11]
DRV_RST
CLRD
CLK[2](+)
DOUTDB[13]
DOUTDB[10]
P5V
P5V
5V_DET
DOUTDA[9]
DOUTDB[15]
DOUTDB[8]
DOUTDA[11]
DOUTDC[12]
GND
DOUTDB[9]
GND
DOUTDC[10]
DOUTDC[14]
DOUTDC[13]
DOUTDA[14]
GND
GND
DOUTDA[12]
ODED
DOUTDA[10]
GND
DOUTDA[15]
DOUTDB[14]
GND
CLK[3](-)
GND
PCD2
DOUTDA[8]
GND
GND
DOUTDA[17]
DOUTDC[17]
DOUTDB[17]
GND
DSHL
DMLL
DMHL
DMHR
DSLL
151310 11 14912
8
7
1
4
3
8
6
2
5
BUFFER BUFFER BUFFER BUFFER
C4-BOARD TNPA3556 (2/2)
TO
PANEL DATA
DRIVER
TO
PANEL DATA
DRIVER
C3-BOARD
TO
(C33)
D-BOARD
TO
(D34)
0
0
70.0
70.0
TH-42PHD8GK/GS/UK
C4-Board (2 of 2) Schematic Diagram
TH-42PHD8GK/GS/UK
C4-Board (2 of 2) Schematic Diagram
TH-37PHD8GK / TH-37PHD8GS / TH-37PHD8UK / TH-42PHD8GK / TH-42PHD8GS / TH-42PHD8UK
154

Table of Contents

Related product manuals