EasyManua.ls Logo

Panasonic TH-65PF9UK - DN-Board (3 of 10) Schematic Diagram

Panasonic TH-65PF9UK
184 pages
Print Icon
To Next Page IconTo Next Page
To Next Page IconTo Next Page
To Previous Page IconTo Previous Page
To Previous Page IconTo Previous Page
Loading...
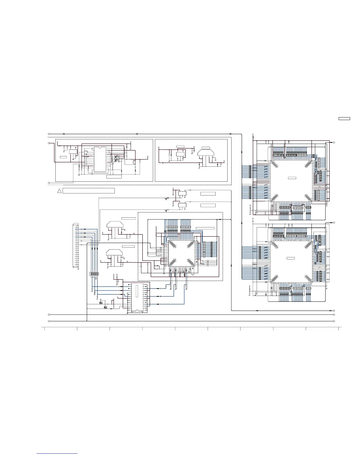
14.23. DN-Board (3 of 10) Schematic Diagram
+
+
+
SIDE
TERM
+
+
+
+
+
+
AD_PLLH
AD_PLLV
AD_FLD
HD_ADA
VD_ADA
HDA
VDA
A_OA5
A_OC4
A_OE5
A_OE4
A_OE3
A_OE2
A_OE1
A_OE0
A_EA6
A_EA5
A_EA4
A_EA3
A_EA2
A_EA1
A_EA0
A_EB6
A_EB5
A_EB4
A_EB3
A_EB2
A_EB1
A_EB0
A_EC6
A_EC5
A_EC4
A_EC3
A_EC2
A_EC1
A_EC0
A_ED6
A_ED5
A_ED3
A_ED2
A_ED1
A_EE6
A_EE5
A_EE4
A_EE3
A_EE2
A_EE1
A_EE0
LVA_CLK
A_OE6
A_OD0
CLKE
RE_5
RE_0
RE_2
RE_4
RE_1
RE_3
RE_7
RE_8
RE_9
GE_9
GE_8
BE_8
BE_3
BE_5
BE_7
GE_0
GE_1
BE_9
GE_2
BE_4
BE_6
GE_3
GE_4
GE_5
GE_6
GE_7
BE_2
BE_1
BE_0
CLP_A
A_OC5
A_OA6
A_OC3
A_OB0
A_OB1
A_OB2
A_OB4
A_OD4
A_OB5
A_OD5
A_OB3
A_OD6
A_OA0
A_OC0
A_OA1
A_OC1
A_OA2
A_OC6
A_OA3
A_OC2
A_OA4
A_OB6
A_OD1
A_OD2
A_OD3
A_ED0
B_OE1
B_EB4
B_OC4
B_OA5
B_ED4
B_EE0
B_OE2
B_EB5
B_OC5
B_OA6
B_OD2
B_ED5
B_EE1
B_OE3
B_EB6
B_OC3
B_ED6
B_EE2
B_OE4
B_EA0
B_OB0
B_EC0
B_EE3
B_OE5
B_EA1
B_OD3
B_EC1
B_EE4
B_EA2
B_OD1
B_EC2
B_EE5
B_EA3
B_OB2
B_EC3
B_EE6
B_EA4
B_OB4
B_EC4
B_OD4
B_EA5
B_OB5
B_EC5
B_ED1
B_OD5
B_EA6
B_ED0
B_OB3
B_EC6
B_ED2
B_OD6
B_OE0
B_OA0
B_EB0
B_OC0
B_OA1
B_EB1
B_OC1
B_OA2
B_OB6
B_OD0
B_EB2
B_OC6
B_OA3
B_OE6
B_EB3
B_OA4
B_ED3
LVB_CLK
B_OC2
LVA_PWDN
A_OA-
A_OA+
A_OB-
A_OB+
A_OC-
A_OC+
A_OD-
A_OD+
A_OE-
A_OE+
A_CLK-
A_CLK+
A_EA-
A_EA+
A_EB-
A_EB+
A_EC-
A_EC+
A_ED-
A_ED+
A_EE-
A_EE+
B_OA-
B_OA+
B_OB-
B_OB+
B_OC-
B_OC+
B_OD-
B_OE-
B_OE+
B_CLK-
B_CLK+
B_EA-
B_EA+
B_EB-
B_EB+
B_EC-
B_EC+
B_ED-
B_ED+
LVB_PWDN
LVA_EEN
LVA_OENLVB_OENLVB_EEN
P3V_SCL2
P3V_SDA2
RE_6
B_EE+
B_EE-
B_OD+
P3V_SDA2
P3V_SCL2
B_OB1
CLKE_57
A_ED4
P5V
C0DBEGE00002
IC5401
1
CTL
2
Vcc
3
GND
4
OUT
5
ADJ
R4307
100k
C5008
0.01u
16V
R5423
10k
Q5401
B1CBHD000002
G
D
S
R5435
0
C5442
6.3V
10u
C5026
0.01u
16V
R5427
1.8k
C5027
0.01u16V
C5437
10u
6.3V
C4353
16V
47u
C5032
6.3V
10u
C4352
16V
0.1u
R5003
EXB2HV470JV
R5086
EXB2HV470JV
R5079
100
R5429
9.1k
L5402
J0JHC0000096
C5033
6.3V
10u
R5139
10k
C0DBAYY00054
IC4307
1
GND
2
REFIN
3
VREF
4
CS
5
VCC
6
COVP
7
CUVP
8
PGOOD
9
CTL
10
LSAT
11
ILIM
12
+INC
13
-INC
14
N.C.
15
PGND
16
OUT-2
17
VDD
18
LX
19
OUT-1
20
CB
21
VIN
22
RT
23
VO
24
FB
R5425
0
R5072
100
C0DBEGE00002
IC4308
1
CTL
2
Vcc
3
GND
4
OUT
5
ADJ
C5023
0.01u
16V
C5447
16V
0.1u
C5444
16V
47u
C5416
16V
0.01u
2.5V
C4350
16V
0.1u
R5403
100
R5092
47
R5409
75
R5456
22
C5448
6.3V
10u
C5434
16V
47u
Q5402
B1CBHD000002
G
D
S
R5004
EXB2HV470JV
C5015
6.3V
10u
C0FBAY000031
IC5402
1
VD(1.8V)
2
BAIN0
3
GND
4
BAIN1
5
VD(1.8V)
6
GAIN0
7
GND
8
SOGIN0
9
VD(1.8V)
10
GAIN1
11
GND
12
SOGIN1
13
VD(1.8V)
14
RAIN0
15
GND
16
RAIN1
17
PWRDWN/TRI-ST
18
REFLO
19
NC
20
REFHI
21
O/E FIELD
22
VSOUT/A0
23
HSOUT
24
SOGOUT
25
DATAC K
26
VDD(3.3V)
27
GND
28
RED<9>
29
RED<8>
30
RED<7>
31
RED<6>
32
RED<5>
33
RED<4>
34
RED<3>
35
RED<2>
36
RED<1>
37
RED<0>
38
VDD(3.3V)
39
GND
40
GND
41
DAVDD(1.8)
42
GREEN<9>
43
GREEN<8>
44
GREEN<7>
45
GREEN<6>
46
GREEN<5>
47
GREEN<4>
48
GREEN<3>
49
GREEN<2>
50
GREEN<1>
51
GREEN<0>
52
VDD(3.3V)
53
GND
54
BLUE<9>
55
BLUE<8>
56
BLUE<7>
57
BLUE<6>
58
BLUE<5>
59
BLUE<4>
60
BLUE<3>
61
BLUE<2>
62
BLUE<1>
63
BLUE<0>
64
VDD(3.3V)
65
GND
66
SDA
67
SCL
68
HSYNC1
69
VSYNC1
70
HSYNC0
71
VSYNC0
72
EXTCLK/COAST
73
CLAMP
74
PVD(1.8V)
75
GND
76
PVD(1.8V)
77
GND
78
FILT
79
PVD(1.8V)
80
GND
R5125
100
R5419
47
R5421
10k
C5034
0.01u
16V
C5425
6.3V
10u
C0CBCAD00016
IC4305
1
Vcont
2
GND
3
Np
5
Vin
4
Vout
R5451
0
R5424
0
C4347
10V
1u
C5030
6.3V
10u
C5436
10u
6.3V
R5122
100
R5084
100
C5417
16V
0.01u
R5453
30k
C4348
6.3V
10u
C4373
6.3V
10u
R5410
75
L5004
J0JHC0000096
R5016
47
STB5V
R4344
15k
C5430
16V
2.2u
C5006
0.01u16V
C5443
16V
0.1u
R5464
4.7k
R5130
10k
C5022
6.3V
10u
C5028
6.3V 10u
C5413
16V
0.01u
C5411
10u
6.3V
3.3V
C4372
16V
0.1u
R5018
EXB2HV470JV
C5406
10u
6.3V
R5452
43k
R5123
100
P5V
C5403
25V
0.1u
R4310
51k
C5407
16V
0.01u
R5076
100
DN1
1
2
3
4
5
6
7
8
9
10
11
12
13
14
15
16
17
18
19
20
R5128
100
C5405
25V
0.1u
R5415
EXB28V220JX
C5035
6.3V
10u
C5004
0.01u
16V
C5016
6.3V
10u
R5074
100
R5093
EXB2HV470JV
C4351
6.3V
10u
R4347
0
C5422
25V
0.1u
C5018
6.3V
10u
C5037
6.3V
10u
2.5V
R5082
100
R5014
47
C5438
10u
6.3V
C5002
16V
47u
R4311
20k
C5010
0.01u
16V
C5031
6.3V
10u
R4302
68k
C5013
6.3V 10u
3.3V
C4321
0.1u25V
1.8V_PLLVDD
R5121
100
C4356
50V
1000p
C5433
16V
470u
C5409
6.3V
10u
3.3V
C5036
0.01u
16V
R5091
47
R5120
100
R5090
47
C5017
6.3V
10u
R5420
47
R5085
EXB2HV470JV
C5428
16V
2.2u
C5021
0.01u
16V
R5083
100
R5012
47
C5419
25V
0.1u
C5426
16V 0.01u
C4319
47p
50V
R5077
100
C5020
6.3V
10u
C5435
16V
2.2u
5V_M
R5418
10
R5081
100
R5129
100
R4342
0
C5432
16V
470u
R5060
EXB2HV470JV
C5423
25V
0.1u
R5112
0
C5011
0.01u16V
IC5404
C0JBAE000354
1
A
2
B
3
GND
5
VCC
4
Y
R5413
22
Q4301
B1MBEDA00015
S1G1S2G2
D2 D2 D1 D1
C0DBEGE00002
IC5406
1
CTL
2
Vcc
3
GND
4
OUT
5
ADJ
C5012
6.3V 10u
C5024
0.01u16V
R5080
100
C4312
0.1u
16V
C5424
25V
0.1u
C5025
0.01u
16V
C4315
0.1u
25V
C4310
10u 25V
C5429
16V
2.2u
R5119
100
R5405
0
R5094
EXB2HV470JV
L5401
J0JHC0000096
R5430
0
P5V
R5126
100
R5446
75
C5401
16V
0.1u
C5420
16V
0.01u
C4316
0.1u
16V
STB1.5V
R5009
EXB2HV470JV
R5401
1.5k
R5461
0
R5140
10k
D4301
B0JCPE000004
L5003
J0JHC0000096
0
R5404
L5002
J0JHC0000096
C4311
4.7u
6.3V
3.3V
R5124
100
R5444
75
3.3V
FL5401
J0MAB0000175
C4320
4700p
50V
R5411
EXB2HV220JV
C5029
6.3V 10u
C5410
16V
0.01u
C4341
50V
1000p
C1AB00002661
IC5405
1
REF1
2
VDD
3
SDA
4
SCL
5
VSS
6
TEST
7
ADS
8
IN1
9
NC
10
ISET
11
IN2
12
NC
13
IN3
14
NC
15
GND3
16
NC
17
OUT3
18
VCC3
19
GND2
20
NC
21
OUT2
22
VCC2
23
GND1
24
NC
25
OUT1
26
VCC1
27
REF3
28
REF2
R5095
EXB28V470JX
L4301
G1C3R0MA0248
R5417
EXB2HV220JV
C5402
16V
0.1u
C5441
16V
0.1u
C5439
16V
0.1u
R5436
0
R5426
0
R5020
EXB2HV470JV
R4345
0
R5443
10k
P5V_DC2
D4302
B0JCDD000002
R5455 22
R4304
39k
R4305
33k
R5442
10k
R5449
43k
R5131
10k
C4317
0.022u
25V
3.3V
R5437
0
R5007
EXB2HV470JV
R5088
EXB2HV470JV
P15V
C5001
0.01u
16V
R5422
10k
C5404
25V
0.1u
C4309
10u 25V
R4346
51k
C5440
16V
47u
C5412
6.3V
10u
R5005
EXB2HV470JV
C4318
0.1u
16V
C5431
16V
470u
R5414
EXB2HV220JV
R4312
0
C5418
16V
0.01u
R5412
22
R5416
47
C4313
68u
4V
C5421
25V
0.1u
STB3.3V
R4308
0
3.3V
C5414
6.3V
10u
R5078
100
C0DBAHD00011
IC4309
1
VOUT
2
GND
3
CE
5
VDD
4
NC
C5014
6.3V
10u
1.8V_AVDD
R5463
68
R5087
EXB2HV470JV
C5038
6.3V
10u
R5058
0
R4301
0
1.5V
C5408
6.3V
10u
R5026
EXB28V470JX
R5438
10k
C5019
6.3V
10u
IC5403
C0JBAE000354
1
A
2
B
3
GND
5
VCC
4
Y
R5402
100
R5138
10k
R5447
0
R5127
100
R4306
1.6k
C5415
6.3V
10u
C5427
16V 0.1u
C4349
16V
0.1u
R5445
75
R5089
EXB2HV470JV
R5135
10k
L5001
J0JHC0000096
R5001
EXB2HV470JV
R5448
30k
R5462
0
R5408
75
R4303
0
C0ZBZ0001412
IC5001
1
S2DAT
2
S2CLK
3
VDDP1
4
VSSP1
5
VSSP0
6
VDDP0
7
PWDNB
8
RXEE0
9
RXEE1
10
RXEE2
11
RXEE3
12
RXEE4
13
RXEE5
14
RXEE6
15
VSS0
16
VDD0
17
RXED0
18
RXED1
19
RXED2
20
RXED3
21
RXED4
22
RXED5
23
RXED6
24
VSSR0
25
VDDR0
26
RXEC0
27
RXEC1
28
RXEC2
29
RXEC3
30
RXEC4
31
RXEC5
32
VSS1
33
VDD1
34
RXEC6
35
RXEB0
36
RXEB1
37
RXEB2
38
RXEB3
39
RXEB4
40
RXEB5
41
RXEB6
42
VSSR1
43
VDDR1
44
RCLKOUT
45
VSS2
46
VDD2
47
RXEA0
48
RXEA1
49
RXEA2
50
RXEA3
51
RXEA4
52
RXEA5
53
RXEA6
54
VSS3
55
VDD3
56
RXOE0
57
RXOE1
58
RXOE2
59
RXOE3
60
RXOE4
61
RXOE5
62
RXOE6
63
RXOD0
64
VSS4
65
VDD4
66
RXOD1
67
RXOD2
68
RXOD3
69
RXOD4
70
RXOD5
71
RXOD6
72
RXOC0
73
RXOC1
74
RXOC2
75
RXOC3
76
RXOC4
77
RXOC5
78
RXOC6
79
RXOB0
80
RXOB1
81
RXOB2
82
RXOB3
83
RXOB4
84
RXOB5
85
RXOB6
86
VDDR2
87
VSSR2
88
RXOA0
89
RXOA1
90
RXOA2
91
RXOA3
92
RXOA4
93
RXOA5
94
RXOA6
95
VDD5
96
VSS5
97
RESRVD
98
MODE1
99
VSSL
100
VDDL
101
RXOA-
102
RXOA+
103
RXOB-
104
RXOB+
105
RXOC-
106
RXOC+
107
RXOD-
108
RXOD+
109
RXOE-
110
RXOE+
111
VSSL
112
VSSL
113
VDDL
114
VDDL
115
RCLKIN-
116
RCLKIN+
117
RXEA-
118
RXEA+
119
RXEB-
120
RXEB+
121
RXEC-
122
RXEC+
123
RXED-
124
RXED+
125
RXEE-
126
RXEE+
127
MODE0
128
RFB
C0ZBZ0001412
IC5002
1
S2DAT
2
S2CLK
3
VDDP1
4
VSSP1
5
VSSP0
6
VDDP0
7
PWDNB
8
RXEE0
9
RXEE1
10
RXEE2
11
RXEE3
12
RXEE4
13
RXEE5
14
RXEE6
15
VSS0
16
VDD0
17
RXED0
18
RXED1
19
RXED2
20
RXED3
21
RXED4
22
RXED5
23
RXED6
24
VSSR0
25
VDDR0
26
RXEC0
27
RXEC1
28
RXEC2
29
RXEC3
30
RXEC4
31
RXEC5
32
VSS1
33
VDD1
34
RXEC6
35
RXEB0
36
RXEB1
37
RXEB2
38
RXEB3
39
RXEB4
40
RXEB5
41
RXEB6
42
VSSR1
43
VDDR1
44
RCLKOUT
45
VSS2
46
VDD2
47
RXEA0
48
RXEA1
49
RXEA2
50
RXEA3
51
RXEA4
52
RXEA5
53
RXEA6
54
VSS3
55
VDD3
56
RXOE0
57
RXOE1
58
RXOE2
59
RXOE3
60
RXOE4
61
RXOE5
62
RXOE6
63
RXOD0
64
VSS4
65
VDD4
66
RXOD1
67
RXOD2
68
RXOD3
69
RXOD4
70
RXOD5
71
RXOD6
72
RXOC0
73
RXOC1
74
RXOC2
75
RXOC3
76
RXOC4
77
RXOC5
78
RXOC6
79
RXOB0
80
RXOB1
81
RXOB2
82
RXOB3
83
RXOB4
84
RXOB5
85
RXOB6
86
VDDR2
87
VSSR2
88
RXOA0
89
RXOA1
90
RXOA2
91
RXOA3
92
RXOA4
93
RXOA5
94
RXOA6
95
VDD5
96
VSS5
97
RESRVD
98
MODE1
99
VSSL
100
VDDL
101
RXOA-
102
RXOA+
103
RXOB-
104
RXOB+
105
RXOC-
106
RXOC+
107
RXOD-
108
RXOD+
109
RXOE-
110
RXOE+
111
VSSL
112
VSSL
113
VDDL
114
VDDL
115
RCLKIN-
116
RCLKIN+
117
RXEA-
118
RXEA+
119
RXEB-
120
RXEB+
121
RXEC-
122
RXEC+
123
RXED-
124
RXED+
125
RXEE-
126
RXEE+
127
MODE0
128
RFB
VP
HP
HD from DS-BOARD
VD from DS-BOARD
HD to FPGA Sync Block
VD to FPGA Sync Block
B/PB_M
GND
GND
HD_M
GND
GND
VD_M
G/Y_M
GND
GND
R/PR_M
ON/OFF_CTL
GND
GND
GND
GND
GND
GND
GND
GND
GND
262521 22 2720 2419 23
21
22
23
24
25
14
12
15
11
13
DS-BOARD
(DS1)
TO
A/D CONVERTER(MAIN)
LVDS RX
LVDS RX
AVR 1.8VPLLVDD
AVR 1.8VAVDD
5V->3.3V
LEVEL CONVERTER
5V->3.3V
LEVEL CONVERTER
AVR 5V
DC-DC CONVERTER
15V->1.5V
STB 1.5V
STB 3.3V
VIDEO BUFFER
!
DN-BOARD TZTNP01YPTU (3/10)
10Bit AD
P15V->1.5V STB5V->STB3.3V
STB5V->STB1.5V
TH-65PF9UK DN-Board (3 of 10) Schematic Diagram
TH-65PF9UK DN-Board (3 of 10) Schematic Diagram
TH-65PF9UK
101

Table of Contents

Related product manuals