EasyManua.ls Logo

Panasonic TH-65PF9UK - HX-Board Block and Schematic Diagram

Panasonic TH-65PF9UK
184 pages
Print Icon
To Next Page IconTo Next Page
To Next Page IconTo Next Page
To Previous Page IconTo Previous Page
To Previous Page IconTo Previous Page
Loading...
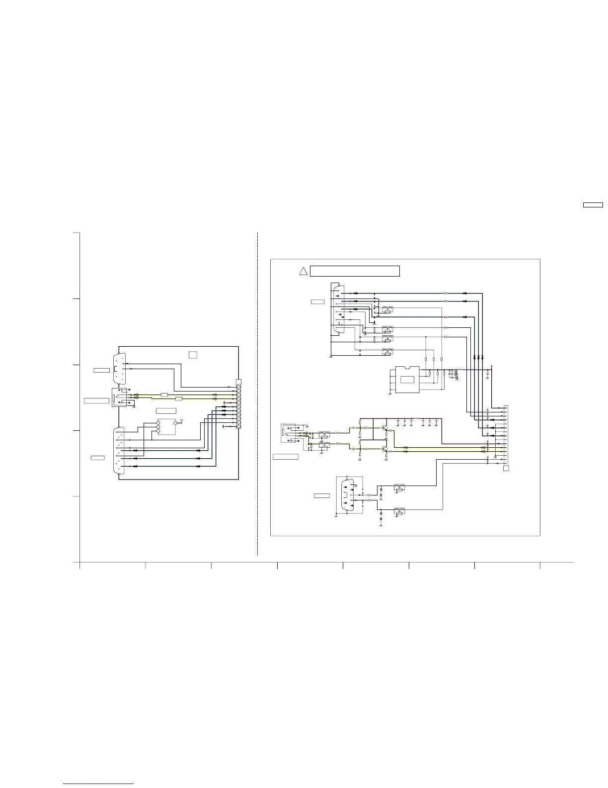
14.9. HX-Board Block and Schematic Diagram
AC_VD
AC_HD
R3655
15k
R3592
0
R3510
100
C3562
1u
16V
FL3515
J0MAB0000054
1
2
3
4
R3590
56
IC3502
TVRP156
1
E0
2
E1
3
E2
4
VSS
5
SDA
6
SCL
7
WC
8
VCC
R3509
4.7k
C3552
10u
25V
R3400
10k
C3524
50V
0.01u
R3668
100
R3777
100
FL3514
J0MAB0000054
1
2
3
4
L3526
ELJPA100KFB
R3530
180k
R3672
100
FL3517
J0MAB0000054
1
2
3
4
C3404
16V
0.1u
D3508
MAZ81600HL
TP67
TP66
R3654
33k
HX1
1
2
3
4
5
6
7
8
9
10
11
12
13
14
15
D3507
MAZ81600HL
R3790
100
R3776
100
C3405
10u
25V
TP65
FL3511
J0MAB0000054
1
2
3
4
TP69
JK3509
1
2
3
4
5
8
9
6
7
R3778
47k
C3550
50V
0.01u
C3551
10u
25V
TP71
R3511
100
R3653
15k
C3406
10u
25V
TP74
R3548
100
TP73
R3529
180k
R3585
56
R3656
33k
FL3512
J0MAB0000054
1
2
3
4
R3791
100
TP68
C3561
1u
16V
R3547
100
TP70
Q3532
2SD0601A0L
C3523
10u
25V
R3664
1k
Q3531
2SD0601A0L
R3591
0
L3555
ELJPA100KFB
R3508
4.7k
FL3510
J0MAB0000054
1
2
3
4
R3593
0
FL3516
J0MAB0000054
1
2
3
4
D3509
MAZ81600HL
FL3513
J0MAB0000054
1
2
3
4
TP75
TP72
R3663
1k
JK3513
K2HC103B0105
R3589
47k
D3504
MAZ30560ML
JK3511
1
2
3
4
5
6
7
8
9
10
11
12
13
14
15
C3409
16V
0.1u
D3510
MAZ81600HL
R3586
56
JK3513
+9V
+5V
JK3511
1
2
3
4
5
6
7
8
9
10
11
12
13
14
15
+5V
JK3509
1
2
3
4
5
8
9
6
7
5V
9V
TXD
RXD
VD
HD
TJS8A9880
CTS
RTS
PCis
DSR
RI
K1FA109B0062
L
R
RXD
TXD
DTR
CD
GND
9V
PC Ls
PC Rs
PC R
PC G
PC B
HX-BOARD TZTNP01YPTJ
813 7
B
42
A
56
D
E
C
!
EEPROM
DDC
PC IN
PC AUDIO IN
RS-232C
TO
DS-BOARD
(DS14)
TXD
RXD
AMP
VD
HD
HX
5
PC IN/RS232C
TERMINAL
6
4
7
5
6
PC G
PC B
RXD
TXD
PC Ls
PC Rs
RS-232C
TO DS14
8
L
10
12
13
WC
SDA
IC3502
HX1
SCL
14
15
8
1
AMP
DDC EEPROM
PC IN
PC AUDIO IN
PC R
VCC
R
2
5V
Q3531
9V
Q3532
TH-65PF9UK
HX-Board Block and Schematic Diagram
TH-65PF9UK
HX-Board Block and Schematic Diagram
TH-65PF9UK
87

Table of Contents

Related product manuals