EasyManua.ls Logo

Panasonic TH-65PF9UK - Page 20

Panasonic TH-65PF9UK
184 pages
Print Icon
To Next Page IconTo Next Page
To Next Page IconTo Next Page
To Previous Page IconTo Previous Page
To Previous Page IconTo Previous Page
Loading...
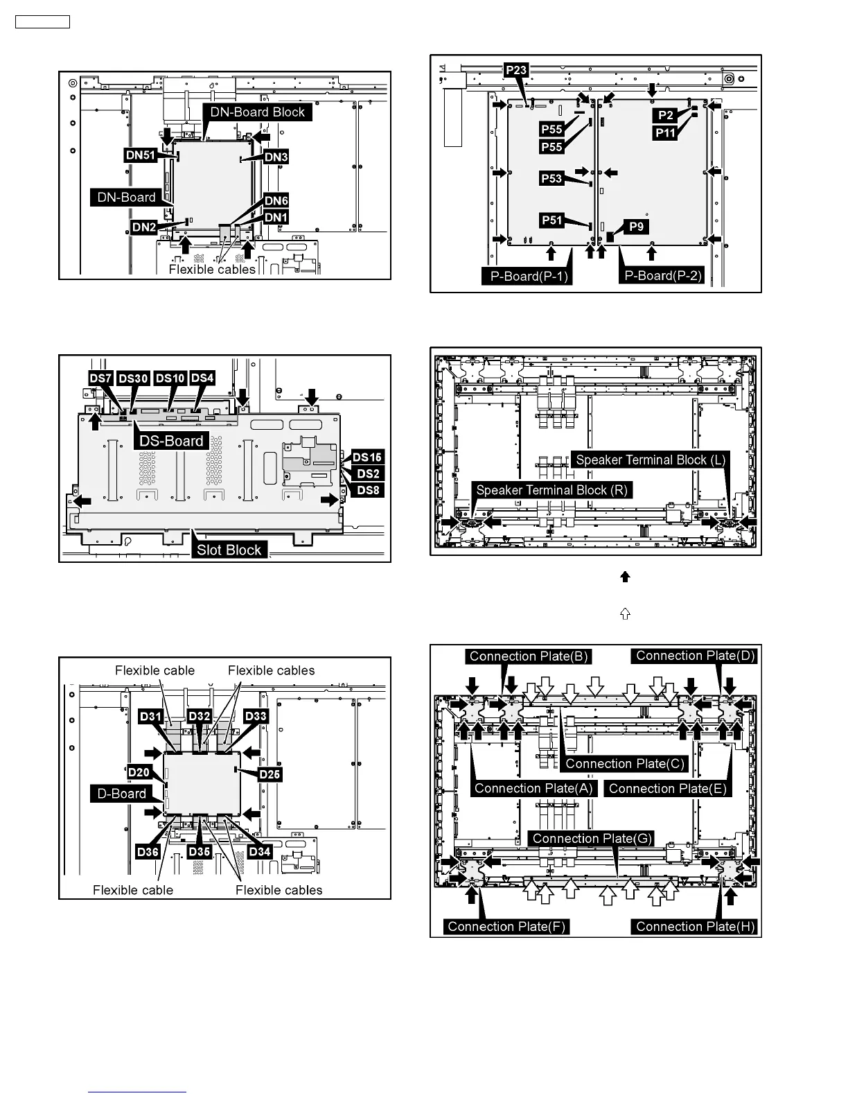
7. Remove the 4 screws and then remove the DN-Board
Block.
8. Disconnect the couplers (DS2, DS4, DS7, DS8, DS10,
DS15, DS30).
9. Remove the 5 screws and then remove the Slot Block.
10. Disconnect the couplers (D20, D25).
11. Remove the flexible cables from the couplers (D31, D32,
D33, D34, D35, D36).
12. Remove the 4 screws and then remove the D-Board.
13. Disconnect the couplers (P2, P9, P11, P12, P23, P51, P53,
P55).
14. Remove the 19 screws and then remove the P-Board.
15. Remove the each 2 screws and then remove the Speaker
Terminal Blocks (L), (R).
16. Remove the each 4 screws ( ) and then remove the
Connection Plate (A), (B), (D), (E), (F), (H).
17. Remove the each 7 screws (
) and then remove the
Connection Plate (C), (G).
20
TH-65PF9UK

Table of Contents

Related product manuals