EasyManua.ls Logo

PianoDisc 228CFX - Page 34

Default Icon
84 pages
Print Icon
To Next Page IconTo Next Page
To Next Page IconTo Next Page
To Previous Page IconTo Previous Page
To Previous Page IconTo Previous Page
Loading...
34 PianoDisc Installation Guide
228CFX - PianoCD - iQ
K. Place pivot pin in lever #2. Drill a
hole in lever #2 for the pivot pin.
(See Fig. 16) Tap the pivot pin into
the hole. (Use a small amount of
grease).
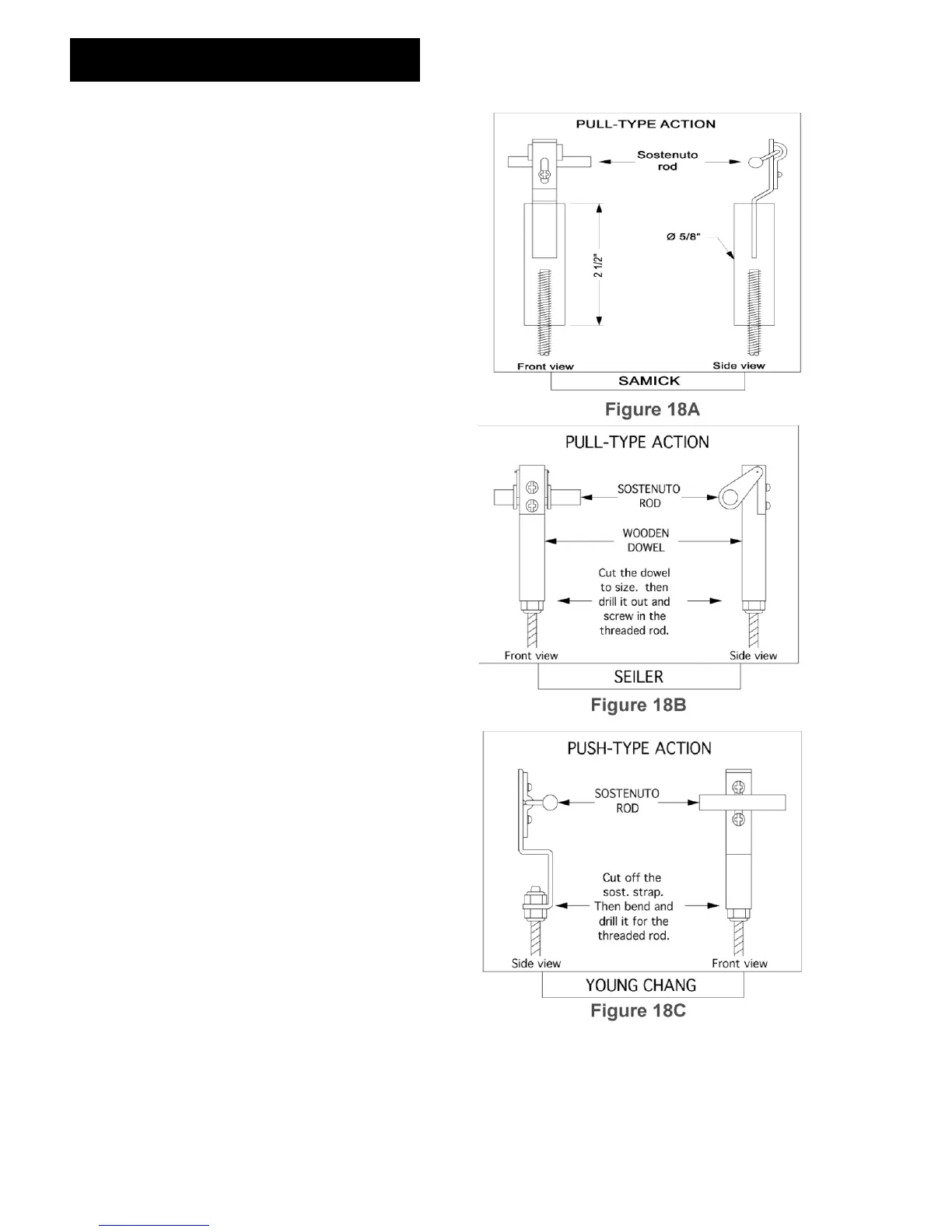
L. Before proceeding, it is important to
determine exactly how the sostenuto
linkage is done on this particular
piano. This linkage varies a great
deal from one piano to another.
In examples A thru C, the rod connects
in various ways. In example A, use a 5/
8” x 2 ½” (16 mm x 76 mm) wood dowel
to make the connection.
Approximately half of the rod must be
cut off. Using the correct size of die,
thread 1” (26 mm) of the rod. Then
use the correct size of drill bit (screw
in fit) to drill the dowel. Use super
glue on the rods during assembly.
In example B, it is necessary to drill out the end of
the dowel and screw the rod into the dowel with
super glue.
In example C, the rod is secured with two nuts.
These are only three examples and there are
other styles of connections, If you have any
trouble with this, please call PianoDisc tech
support.
M. Determine the connection point
of the threaded rod to the
sostenuto lever. As the illustration
above indicates, the threaded rod
should form a perfect right angle
with keybed. So determine the
place on the lever where the
threaded rod should be mounted to
form the 90°angle to the keybed.
Mark this point on the lever.
Figure 19

Table of Contents

Related product manuals