EasyManua.ls Logo

ProMinent DULCOMETER Compact - Page 23

ProMinent DULCOMETER Compact
116 pages
Print Icon
To Next Page IconTo Next Page
To Next Page IconTo Next Page
To Previous Page IconTo Previous Page
To Previous Page IconTo Previous Page
Loading...
Preparing the control panel
I.
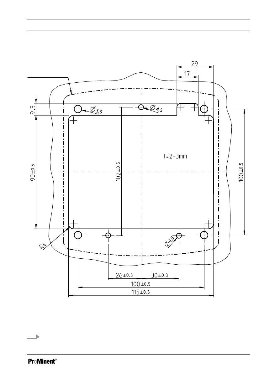
A0347
Fig. 5: The drawing is not to scale and is intended for information purposes only.
I. Outline contour of the DULCOM‐
ETER
®
Compact Controller housing
1.
Mark the exact position of the DULCOMETER
®
Compact Controller on the control
panel using the drilling template
Assembly and installation
23

Table of Contents

Related product manuals