EasyManua.ls Logo

Ridder RW800 - Dimensions

Ridder RW800
52 pages
Print Icon
To Next Page IconTo Next Page
To Next Page IconTo Next Page
To Previous Page IconTo Previous Page
To Previous Page IconTo Previous Page
Loading...
The RW70/140-34 motor gearboxes are drive units to operate indirectly-operated venlaon-
systems in greenhouses and livestock houses or crop-storage buildings.
This secon tells about usual conguraons of motor gearboxes and operated systems. Possibly
other conguraons (or applicaons) are applicable.
For other (dierent) applicaons, approval from Ridder Drive Systems is necessary.
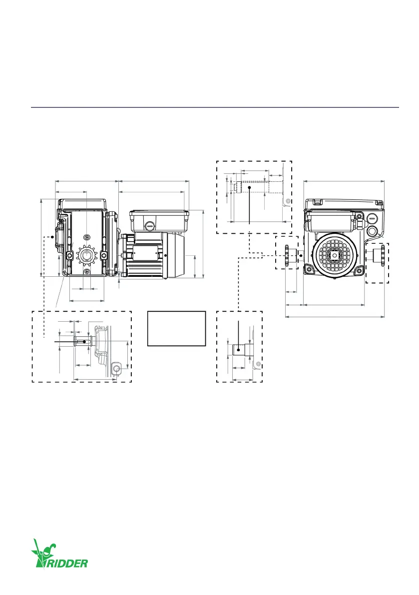
3.4 Dimensions
The dimensions and illustraons are approximate. In this manual shown illustraons can be
dierent than the components and/or systems.
RW45:
H1 = 53–56 mm
H2=170–175mm
L1 = 157–168 mm
L2 = 167–204 mm
RW-L
RW-TRA
M20
RW-D
68
12
34
Ø25
120
Ø28
Ø25
50
30
28
45
Ø28
Ø16
H2
157
52
192
L2
78 L1
200
H1
85
19
M10X18
151
245
(6)
45
25
Ø15
70.5
Ø17.5
1.8
1
Ridder Drive Systems B.V.
T +31 (0)341 416 854 - F +31 (0)341 416 611 - I ridder.com
11

Table of Contents

Other manuals for Ridder RW800

Related product manuals