EasyManua.ls Logo

Rutter VDR-100G2 - System Overview Drawings

Default Icon
79 pages
Print Icon
To Next Page IconTo Next Page
To Next Page IconTo Next Page
To Previous Page IconTo Previous Page
To Previous Page IconTo Previous Page
Loading...
VDR-100G2/G2S Operation User Manual 17
RUT-UM-02-002_Rev. 2.0
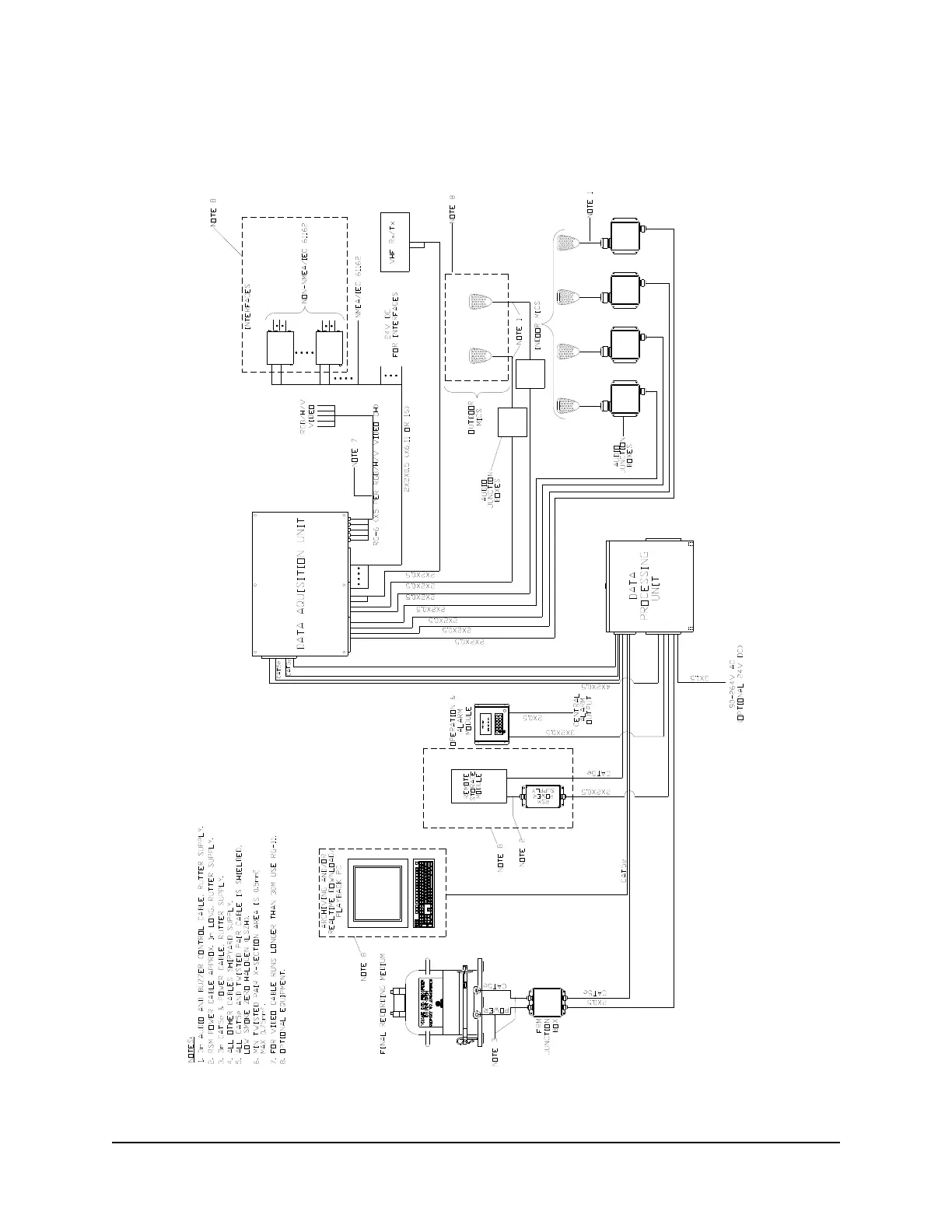
1.3 System Overview Drawings
Figure 1-19 - System Overview (with DAU)

Table of Contents

Related product manuals