EasyManua.ls Logo

Siemens LME71 Series

Siemens LME71 Series
116 pages
To Next Page IconTo Next Page
To Next Page IconTo Next Page
To Previous Page IconTo Previous Page
To Previous Page IconTo Previous Page
Loading...
42/116
Smart Infrastructure Basic Documentation LME7... CC1P7105enr
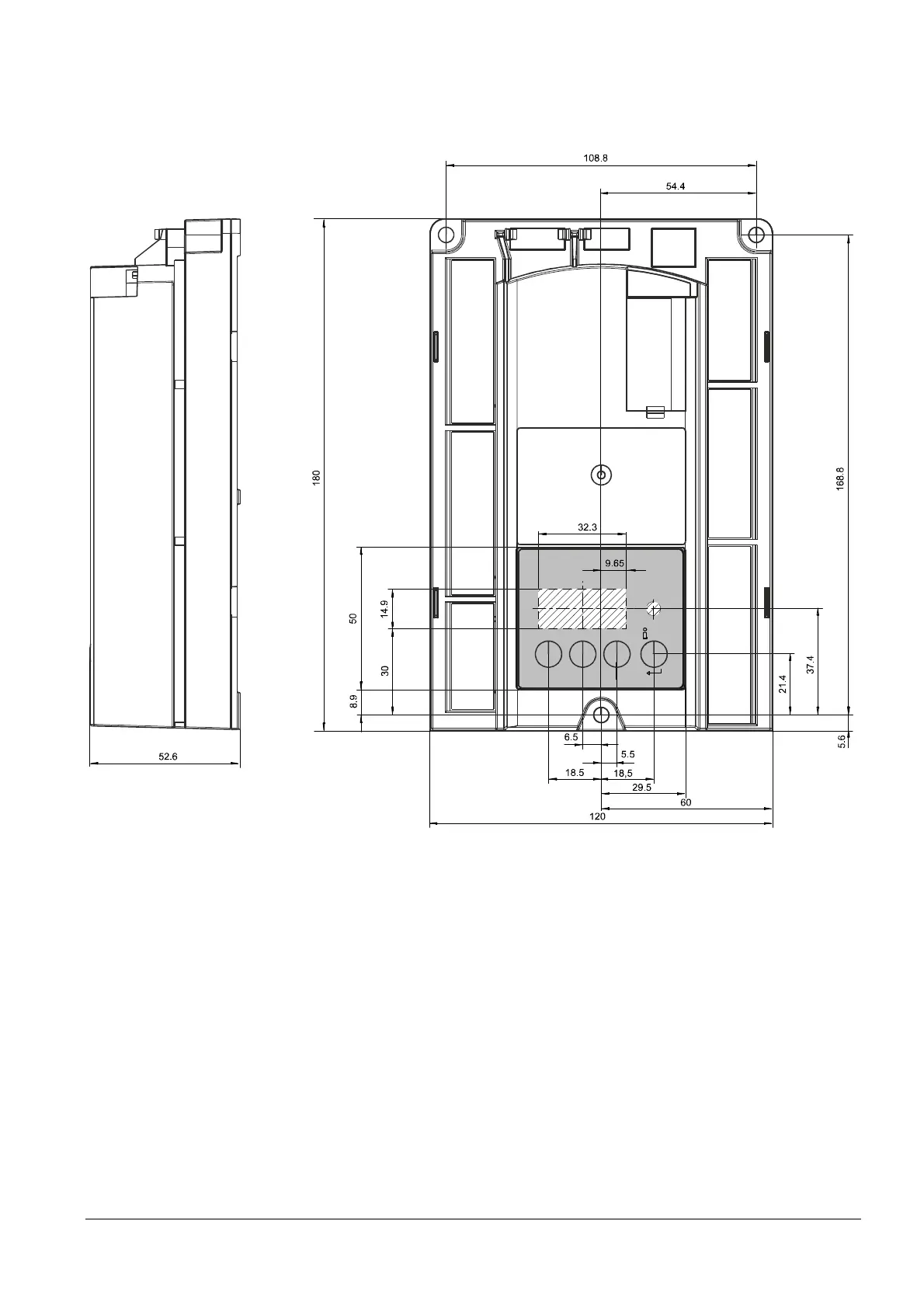
5 Dimensions 24.07.2020
5 Dimensions
Dimensions in mm
nfo
+
-
A
7105m02en/0316
Figure 6: Dimensions of LME7
LME7

Table of Contents

Related product manuals