EasyManua.ls Logo

socomec ATyS - Installation; Dimensions: Frame B3 to B5 (125 A to 630 A)

socomec ATyS
52 pages
Print Icon
To Next Page IconTo Next Page
To Next Page IconTo Next Page
To Previous Page IconTo Previous Page
To Previous Page IconTo Previous Page
Loading...
20
EN
ATyS / ATySr - 541630C - SOCOMEC
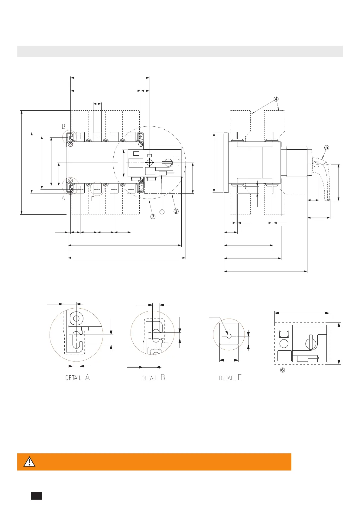
6. INSTALLATION
6.1. Product dimensions
6.1.1. Dimensions: Frame B3 to B5 (125A to 630A)
V
J
mm
Fix. M
Y
Z1
T10 X T T
F
A
fix. 187,5
BA
AA
AC
Z2
H
C
Y
48
140
88
U
J1
229,5
105
90
120
12,5
7,5
8,6
16,2
16,2
8,6
W
U
CA
138
101
1. Padlocking Facility: Locking bracket for up to 3 padlocks of dia. 4 – 8mm
2. Emergencymanualoperation:Maximumoperatingradiuswithanoperatingangleof2x90°
3. Connection and disconnection area
4. Terminal shrouds
5. Emergency removable handle
6. Flush mounting cutout dimensions for front door
CAUTION
To consider the space required for manual operation and wiring.
(When using the ATySr emergency handle: note 2).

Table of Contents

Other manuals for socomec ATyS

Related product manuals