EasyManua.ls Logo

socomec ATyS - Dimensions: Frame B6 & B7 (800 A to 1600 A)

socomec ATyS
52 pages
Print Icon
To Next Page IconTo Next Page
To Next Page IconTo Next Page
To Previous Page IconTo Previous Page
To Previous Page IconTo Previous Page
Loading...
22
EN
ATyS / ATySr - 541630C - SOCOMEC
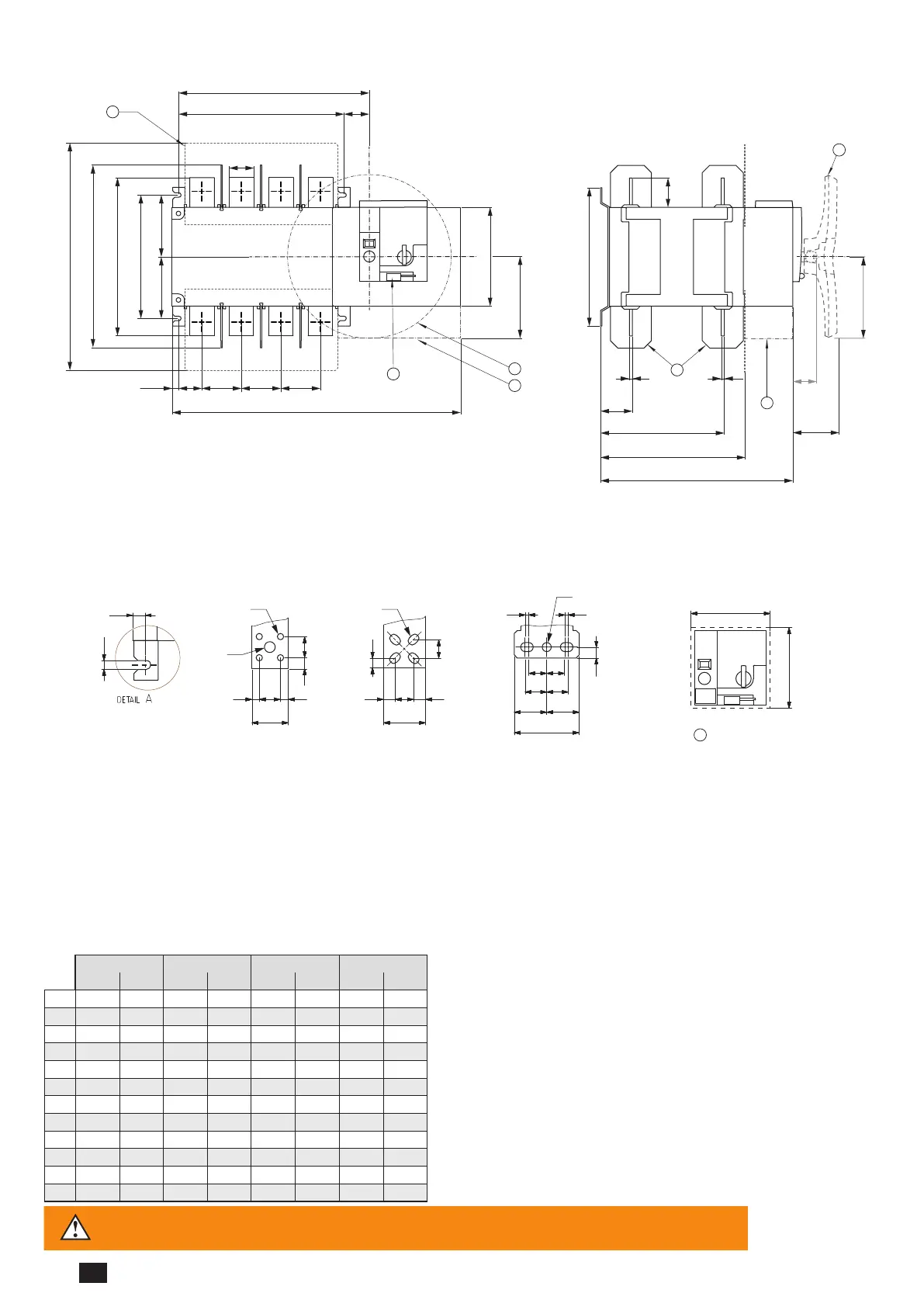
6.1.2. Dimensions: Frame B6 & B7 (800A to 1600A)
J mm
3
6
= =
4
1
2
3
5
7
Fix. M
Y
Z1
T12,5 X T T
F
fix. 250
AA
B
AC
253,5
293
391,5
Y
48
164
89
U
51,5
200
280
V
166
138
101
9
12.5
8,5
15,75 15,75
5
5
16x11ø 9
ø15
15
15
28,5
28,5
8,5
50
60
90
33
30 30
45 45
25 25
3310
800 A - 1000 A 1250 A 1600 A - 3200 A
ø 12,5
1. Padlocking Facility: Locking bracket for up to 3 padlocks of dia. 4 – 8mm
2. Emergencymanualoperation:Maximumoperatingradiuswithanoperatingangleof2x90°
3. Connection and disconnection area
4. Terminal screen
5. Phase Barriers
6. Emergency removable handle
7. Flush mounting cutout dimensions for front door
800 A 1000 A 1250 A 1600 A
3P 4P 3P 4P 3P 4P 3P 4P
AA
321 321 321 321 330 330 288 288
AC
461 461 461 461 461 461 531 531
B
370 370 370 370 370 370 380 380
F
504 584 504 584 504 584 596 716
J
307 387 307 387 307 387 399 519
M
255 335 255 335 255 335 347 467
T
80 80 80 80 80 80 120 120
U
50 50 50 50 60 60 90 90
V
60.5 60.5 60.5 60.5 65 65 44 44
X
47.5 47.5 47.5 47.5 47.5 47.5 53 53
Y
7 7 7 7 7 7 8 8
Z1
66.5 66.5 66.5 66.5 66.5 66.5 67.5 67.5
CAUTION
To consider the space required for manual operation and wiring.
(When using the ATySr emergency handle: note 2).

Table of Contents

Other manuals for socomec ATyS

Related product manuals