EasyManua.ls Logo

TEC TECDrive20-EU Series - Page 98

TEC TECDrive20-EU Series
171 pages
Print Icon
To Next Page IconTo Next Page
To Next Page IconTo Next Page
To Previous Page IconTo Previous Page
To Previous Page IconTo Previous Page
Loading...
TECDrive20-EU Series Inverter Function parameters
-93-
Function
code
Name
Description
Default
Modify
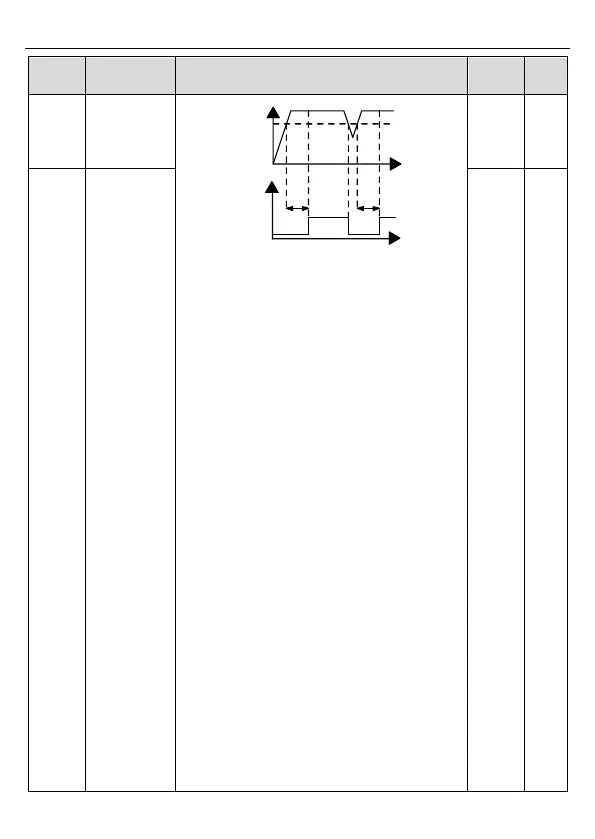
P11.09
Overload
pre-alarm
detection level
Output current
Overload
pre-warning
point
T
T
Y1,
RO1, RO2
Pre-warning
time
Pre-warning
time
Setting range of P11.08:
Enable and define the overload pre-alarm of the
inverter or the motor.
Setting range: 0x00000x1132
Ones place:
0: Motor overload/underload pre-alarm, relative
to rated motor current;
1: inverter overload/underload pre-alarm, relative
to rated inverter current.
2: Motor output torque overload/underload
pre-alarm, relative to rated motor torque
Tens place:
0: The inverter continues to work after
over/under-load pre-alarm
1: The inverter continues to work after underload
pre-alarm and stops running after overload fault
2: The inverter continues to work after overload
pre-alarm and stops running after underload fault
3. The inverter stops when over/under-load
occurred.
Hundreds place:
0: Detect all the time
1: Detect during constant running
Thousands place:
0: Overload integral is invalid
1: Overload integral is valid
Setting range of P11.09: P11.11200% (relative
value determined by ones place of P11.08)
Setting range of P11.10: 0.13600.0s
150%
P11.10
Overload
pre-alarm
detection time
1.0s

Table of Contents

Related product manuals