EasyManua.ls Logo

Trane Technologies Thermo King Advancer A360 - Hot Gas Bypass Solenoid Valve; Removal; Installation; Compressors with Internal Oil Filter

Trane Technologies Thermo King Advancer A360
156 pages
Print Icon
To Next Page IconTo Next Page
To Next Page IconTo Next Page
To Previous Page IconTo Previous Page
To Previous Page IconTo Previous Page
Loading...
TK 61753-2-MM-EN
129
Hot Gas Bypass Solenoid Valve
Removal
1. Recover the refrigerant charge.
2. Disconnect the wires and remove the coil for the valve.
3. Unsolder the refrigeration lines.
4. Remove the mounting bolts and remove the valve.
Installation
1. Clean the tubes for soldering.
2. Remove the coil from the valve.
3. Place the valve in the unit and install the mounting bolts. The arrow on the valve indicates the direction of flow
through the valve. Verify that the arrow points in the proper direction.
4. Solder the inlet and outlet connections. After the valve cools, install the coil.
5. Pressurize the refrigeration system and test for leaks.
6. If no leaks are found, evacuate the system.
7. Recharge the unit with proper refrigerant and check the compressor oil.
Compressors with Internal Oil Filter
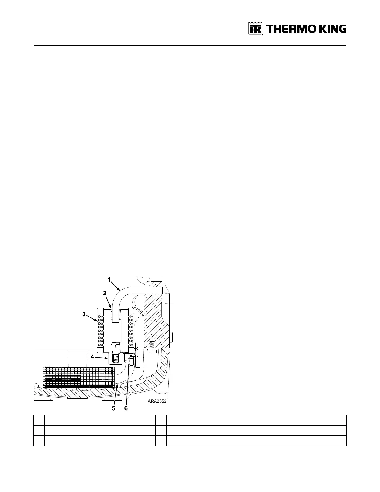
The internal oil filter is located in the compressor sump near the oil pickup tube (Figure 76, p. 129).
NNoottee:: These units use compressors with oil filters. If the compressor does not have an external oil filter, it has an
internal oil filter.
Internal Oil Filter Replacement
The internal oil filter is Maintenance free and should only be replaced if Compressor repairs are performed.
Figure 76. Internal Oil Filter
1. Oil Discharge Tube 4. Pressure Relief Valve
2. O-Ring 5. Oil Pickup Tube
3. Internal Oil Filter 6. Stud On Oil Pickup Tube Bracket
RReeffrriiggeerraattiioonn SSeerrvviiccee OOppeerraattiioonnss

Table of Contents

Related product manuals