EasyManua.ls Logo

Trox Technik FKR-EU - Shaft Walls with Metal Support Structure; General

Trox Technik FKR-EU
164 pages
Print Icon
To Next Page IconTo Next Page
To Next Page IconTo Next Page
To Previous Page IconTo Previous Page
To Previous Page IconTo Previous Page
Loading...
5.9 Shaft walls with metal support structure
5.9.1
General
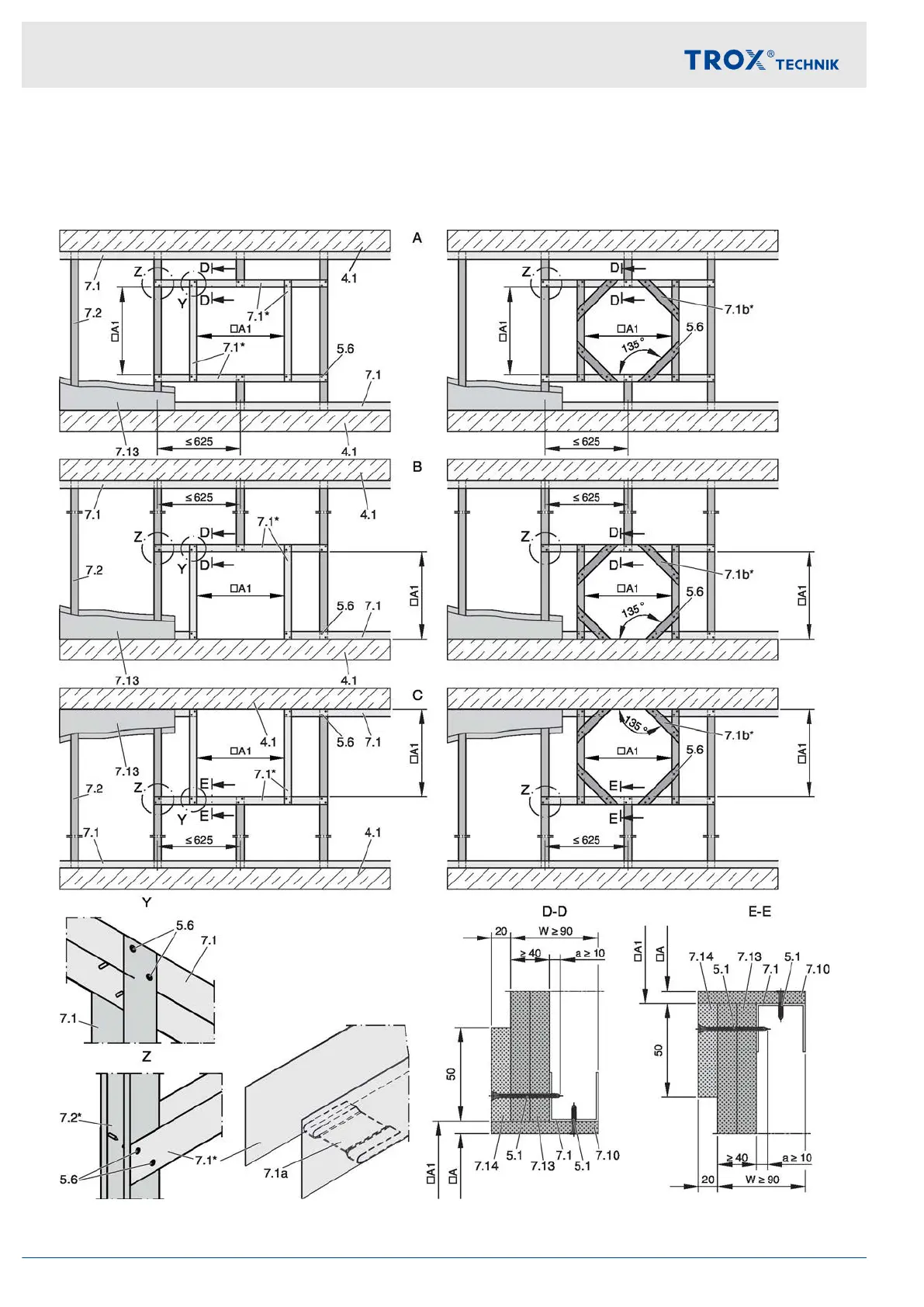
Shaft walls with metal support structure and cladding on one side
Fig. 74: Shaft walls with metal support structure and cladding on one side
Installation
Shaft walls with metal support structure > General
Fire damper FKR-EU98

Table of Contents

Other manuals for Trox Technik FKR-EU

Related product manuals