EasyManua.ls Logo

UD Trucks UD2000 - Page 332

Default Icon
385 pages
Print Icon
To Next Page IconTo Next Page
To Next Page IconTo Next Page
To Previous Page IconTo Previous Page
To Previous Page IconTo Previous Page
Loading...
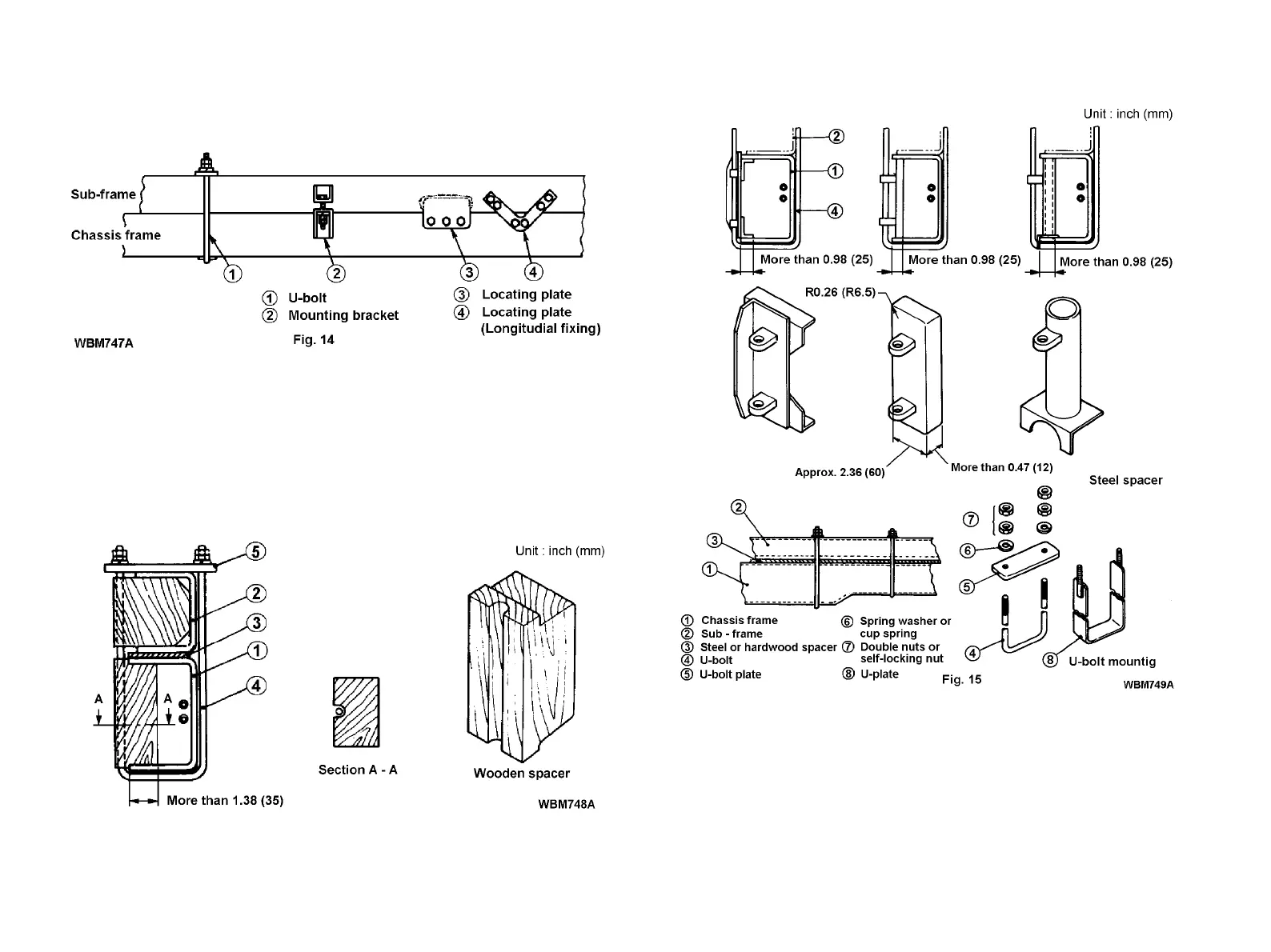
6. COMBINATION WITH CHASSIS FRAME
To be effective, the sub-frame must be securely attached to the chas-
sis frame. “U-bolts”, “mounting brackets”, “locating plates”, etc. are nor-
mally used to connect the sub-frame to the chassis frame (Fig. 14). Never
affix flanges directly to each other by welding or by bolt-nut attachment.
(1) U-bolts
Use of U-bolts, must conform to the following (See Fig.15):
1) Insert a spacer to reduce the possibility of flange deflection. Avoid us-
ing a wooden spacer near the exhaust system.
2) Lock the nuts.
3) Install the U-bolt vertically to the frame.
4) Do not use the bolt in a tapered portion of the frame (where the web
changes in width).
C14

Table of Contents

Related product manuals