EasyManua.ls Logo

VIPA SPEED7 CPU 313SCDPM - 3 Assembly and Installation Guidelines; Installation Dimensions

VIPA SPEED7 CPU 313SCDPM
205 pages
Print Icon
To Next Page IconTo Next Page
To Next Page IconTo Next Page
To Previous Page IconTo Previous Page
To Previous Page IconTo Previous Page
Loading...
3 Assembly and installation guidelines
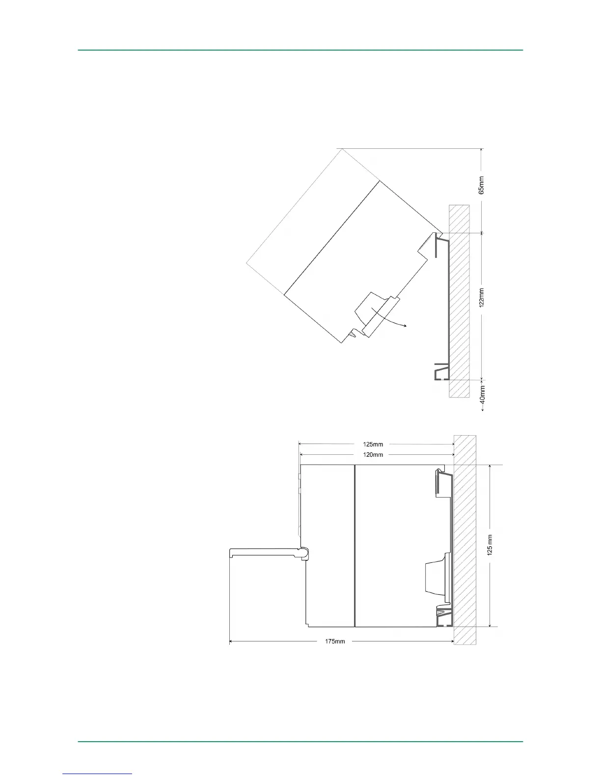
3.1 Installation dimensions
2tier width (WxHxD) in mm: 80 x 125 x 120Dimensions Basic
enclosure
Dimensions
Installation dimensions
VIPA System 300SAssembly and installation guidelines
Installation dimensions
HB140 | CPU-SC | 313-6CF13 | GB | 15-50 16

Table of Contents

Related product manuals