EasyManua.ls Logo

YASKAWA GA500 series - Page 512

YASKAWA GA500 series
526 pages
To Next Page IconTo Next Page
To Next Page IconTo Next Page
To Previous Page IconTo Previous Page
To Previous Page IconTo Previous Page
Loading...
5.5 Control I/O Connections
512 YASKAWA TOEPYAIGA5002A GA500 Programming
Note:
Use tweezers or a jig with a tip width of approximately 0.8 mm (0.03 in) to set DIP switches.
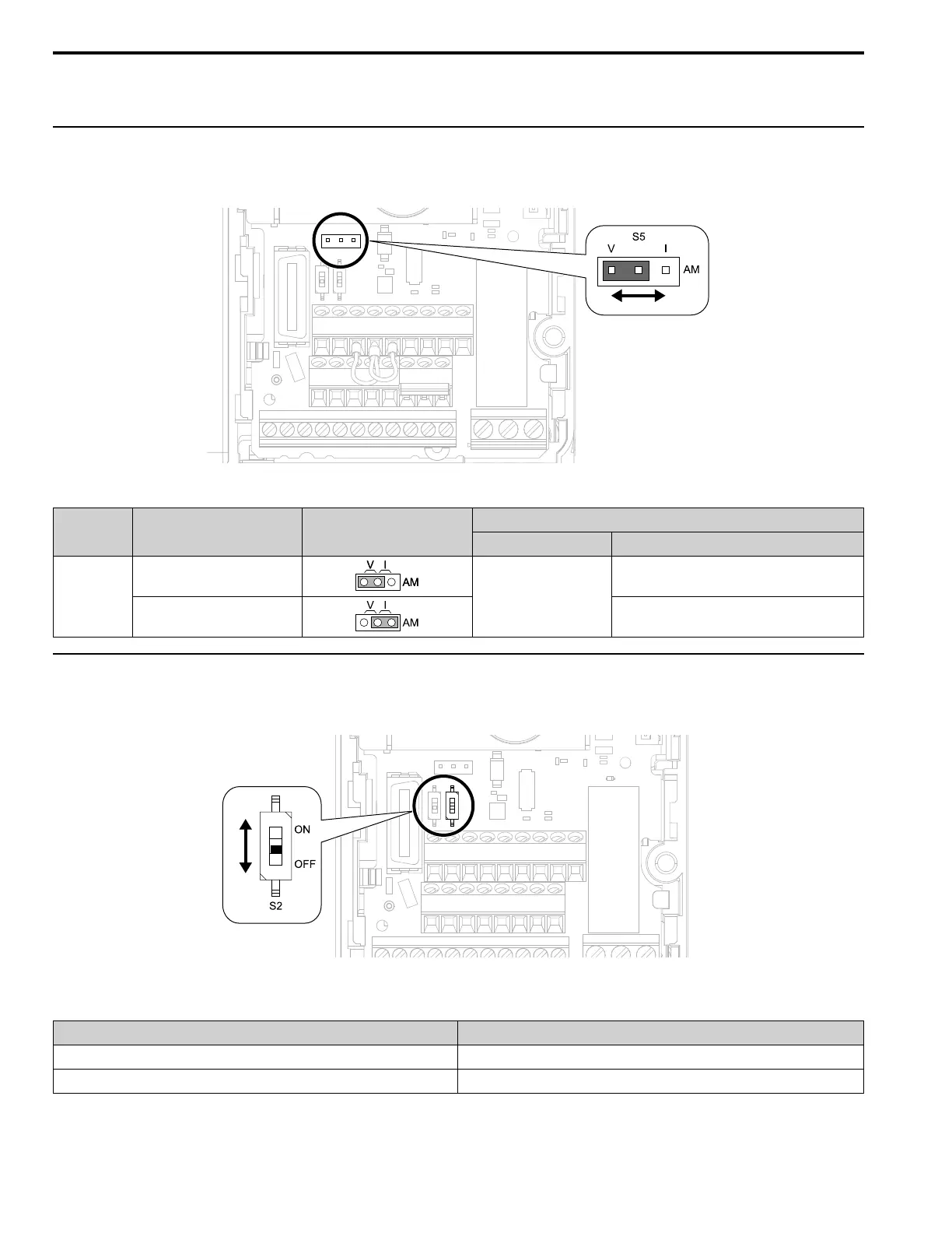
Set the Output Signal for the MFAO Terminal AM
Set the signal type for terminal AM to voltage or current output. Use jumper S5 and H4-07 [Terminal AM Signal
Level Select] to set the signal type.
Figure 5.9 Location of Jumper Switch S5
Terminal Types of Output Signals Jumper S5
Parameter
No. Signal Level
AM
Voltage output
(Default)
H4-07
0: 0 V to 10 V
Current output 2: 4 mA to 20 mA
Switch ON Termination Resistor for MEMOBUS/Modbus Communications
When the drive is the last slave in a MEMOBUS/Modbus communications, set DIP switch S2 to the ON position.
This drive has a built-in termination resistor for the RS-485 interface.
Figure 5.10 Location of DIP Switch S2
Table 5.10 MEMOBUS/Modbus Communications Termination Resistor Setting
DIP switch S2 Description
ON The built-in termination resistor is ON.
OFF (Default) The built-in termination resistor is OFF.

Table of Contents

Other manuals for YASKAWA GA500 series

Related product manuals