EasyManua.ls Logo

YASKAWA MP2300Siec - Page 106

YASKAWA MP2300Siec
116 pages
Print Icon
To Next Page IconTo Next Page
To Next Page IconTo Next Page
To Previous Page IconTo Previous Page
To Previous Page IconTo Previous Page
Loading...
14.6 LIO-06 Module
14.6.20 LIO-06 Module Connector Connection Example
104
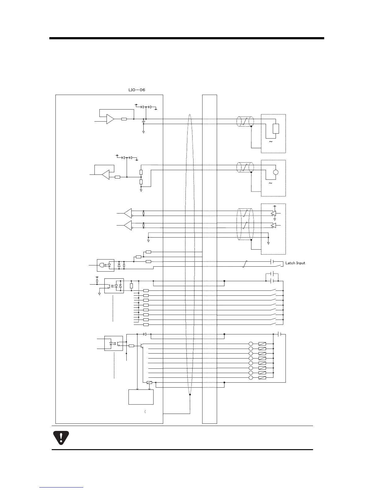
14.6.20 LIO-06 Module Connector Connection Example
An example of LIO-06 module connector connection is shown below.
The cable shield between the external equipment and the junction terminal
block should be installed on the external device side.
L
Load
External Fuse
(Installed by customer)
FG
Relay Terminal Block
1
L
External Device
-10
+10V
V
-10 +10V
FG
External Device
+5V
0V
Pulse Generator
FG
L
L
L
L
L
L
L
L
External Input
Signal
External Output
Signal
26
2
27
4
5
29
30
6
31
10
34
9
35
13
38
14
15
16
17
39
40
41
42
20
45
21
22
23
24
46
47
48
49
25
50
AO
AO_GND
AI
AI_GND
PA+
PA-
PB+
PB-
GND
GND
PILC(24V)
PILC(12V)
PILC(5V)
PIL
DICOM
DICOM
DI_00
DI_01
DI_02
DI_03
DI_04
DI_05
DI_06
DI_07
DO_24V
DO_24V
DO_00
DO_01
DO_02
DO_03
DO_04
DO_05
DO_06
DO_07
DO_GND
DO_GND
+
-
+15
V
-15V
+
-
+15
V
-15V
+5V
Fuse Break
Detection
Circuit
Analog Output
Analog Input
Pulse Input
Z-phase Latch
Input
Digital Input
Digital Output
FG Connector
Shell)
L
Load
External Fuse
(Installed by customer)

Related product manuals