EasyManua.ls Logo

YOKOGAWA GX20 - Page 623

YOKOGAWA GX20
707 pages
Print Icon
To Next Page IconTo Next Page
To Next Page IconTo Next Page
To Previous Page IconTo Previous Page
To Previous Page IconTo Previous Page
Loading...
11
All Rights Reserved. Copyright © 2012, Yokogawa Electric Corporation
GS 04L51B01-01EN
June. 14, 2017-00
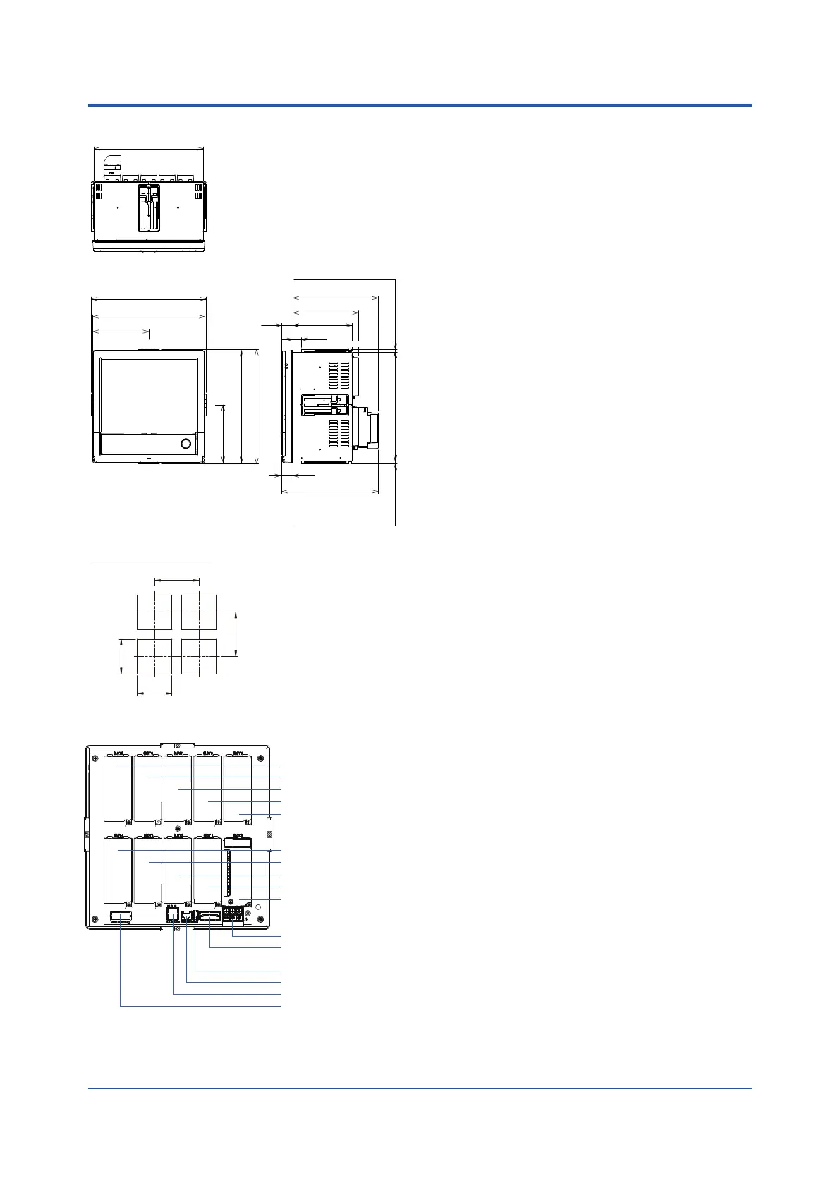
GX20:
(14.17)
(11.06)
(14.21)
(11.06)
360 min.
361 min.
Panel cut dimensions
281
+2
0
281
+2
0
Unit: mm (approx. inch)
Unless otherwise
specified, tolerance is
±3% (however,
tolerance is ±0.3 mm
when below 10 mm).
*1: with modules
*2: without moduels
(*1)
(*2)
(Dimension after fitting attachment)
(Dimension before fitting attachment)
MAX 
Thickness of attachment panel
7.5(0.30)
9.4(0.37)280.2(11.03)
247.4(9.74)
32.3(1.27)
219.2(8.63)
168.8(6.65)
152.6(6.01)
2(0.08) to 26(1.02)
(1.11)
28.2
295.2(11.62)
288(11.34)
148(5.67)
295.2(11.62)
288(11.34)
144(5.67)
280.2(11.03)
Rearview
Power supply terminal
RS-422A/485 terminal (/C3)
or RS232 terminal (/C2)
USB port (/UH)
Ethernet port
FAIL/STATUS terminal (/FL)
VGA output terminal (/D5)
I/O module (slot 0)
I/O module (slot 1)
I/O module (slot 2)
I/O module (slot 3)
I/O module (slot 4)
I/O module (slot 5)
I/O module (slot 6)
I/O module (slot 7)
I/O module (slot 8)
I/O module (slot 9)
PrecautionstoBeTakenWhileWiring
Withascrewterminal,werecommendthatyouuseacrimp-on
lugwithaninsulationsleeve(M4forpowersupplywiring,M3for
signal wiring).
Recommended signal wiring crimp-on lug
N1.25-MS3(JSTMfg.Co.,Ltd.)
SPECIFICATIONS OF OPTIONAL
FUNCTIONS
ADVANCEDSECURITYFUNCTION(/AS)
Securityandelectronicrecord/signaturefunctions
havebeenaddedthatarecompliantwiththeUSA’s
FDAtitle21CFRPart11.
• Enabling/disablingtheadvancedsecurity
function:
You can enable or disable the advanced security
function.
* The set values and data stored in the internal
memoryareinitializedeachtimethefunctionis
enabled or disabled.
• Dataanti-tamperfunction:
Settings and measured data are saved as
encryptedbinaryles.
• Datatype:
Onlyfordisplayorevent
Trigger mode is not possible with event data.
• Loginfunction:
Usingtheloginfunctiondescribedbelow,you
can enter security settings on the instrument
• Username
• Password
• UserID(dependonsetting)
• Userlevelandnumberofusers:
System administrator (all can be operated),
Generaluser(Withuserrestrictions,
youcansetrestrictionsonperforming
operations and sign authority.), Monitor
user (monitoring only), totally 100 users
• Userrestrictionssetting:10kinds(for
general users)
• Passwordexpirationtime:
selectformOff,1month,3month,6month
• Passwordcontrolfunction:
LoginsareveriedbyaKerberosv5
authentication server* (only user name and
password)
Encryption method:
AES128-CTS-HMAC-SHA1-96
AES256-CTS-HMAC-SHA1-96
ARCFOUR-HMAC-MD5
Pre-Authfunction:use
* Thefunctionhasconrmedcompatibilitywith
WindowsServer2003SP2/WindowsServer2008
SP2/WindowsServer2012ActiveDirectory
• Signaturefunction:
Aftercheckingdatathathasnishedbeing
recorded,youcanaddthreelevelsofelectronic
signature,selectapass/fail,andentercomments
(50charactersmaximum)
• Audittrailfunction:
The operation log, the settings change log and
thesettingslewhenthechangewasmadeare
saved.
• Measurementmodelimitations
HighspeedandDualintervalmeasurement
modes are not supported.
• Modulelimitations
PIDcontrolmodulesarenotsupported.

Table of Contents

Related product manuals