EasyManua.ls Logo

ABB ACS320 - Page 230

ABB ACS320
442 pages
Print Icon
To Next Page IconTo Next Page
To Next Page IconTo Next Page
To Previous Page IconTo Previous Page
To Previous Page IconTo Previous Page
Loading...
230 Actual signals and parameters
4002
INTEGRATION TIME
0.0 … 3600.0 s 0.1 s 3.0 s
Defines the PID controller’s
integration time.
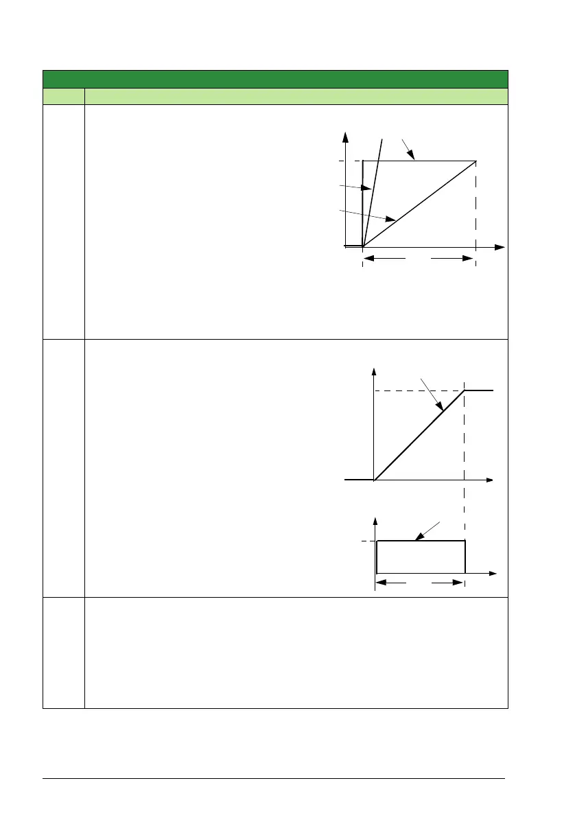
Integration time is, by definition, is
the time required to increase the
output by the error value:
Error value is constant and 100%.
Gain = 1.
Integration time of 1 second
denotes that a 100% change is
achieved in 1 second.
0.0 = NOT SEL Disables integration
(I-part of controller).
0.1 … 3600.0 = Integration time
(seconds).
See parameter 4001 GAIN for adjustment procedure.
4003
DERIVATION TIME
0.0 … 10.0 s 0.1 s 0.0 s
Defines the PID controller’s derivation time.
You can add the derivative of the error to
the PID controller output. The derivative is
the error value’s rate of change. For
example, if the process error value
changes linearly, the derivative is a
constant added to the PID controller
output.
Error-derivative is filtered with a 1-pole
filter. The time constant of the filter is
defined by parameter 4004 PID DERIV
FILTER.
0.0 = NOT SEL Disables the error-derivative
part of the PID controller output
0.1 … 10.0 = Derivation time (seconds)
4004
PID DERIV FILTER
0.0 … 10.0 s 0.1 s 0.1 s
Defines the filter time constant for the error-derivative part of the PID controller output.
Before being added to the PID controller output, the error-derivative is filtered with a
1-pole filter.
Increasing the filter time smooths the error-derivative, reducing noise.
0.0 = NOT SEL Disables the error-derivative filter.
0.1 … 10.0 = Filter time constant (seconds).
Group 40: Process PID set 1
Code Description Range Resolution Default S
t
A
B
A = Error
B = Error value step
C = Controller output with Gain = 1
D = Controller output with Gain = 10
D (4001 = 10)
C (4001 = 1)
4002
t
100%
Gain
Process error value
D-part of controller output
PID output
Error
t
0%
4002
4003
4001

Table of Contents

Other manuals for ABB ACS320

Related product manuals