EasyManua.ls Logo

ABB ACS320 - Page 268

ABB ACS320
442 pages
Print Icon
To Next Page IconTo Next Page
To Next Page IconTo Next Page
To Previous Page IconTo Previous Page
To Previous Page IconTo Previous Page
Loading...
268 Actual signals and parameters
8118
AUTOCHNG INTERV
0.1 … 336.0 h 1 = 0.1 h NOT SEL
Controls operation of the Autochange function and sets the interval between changes.
The Autochange time interval only applies to the time when the speed regulated motor
is running.
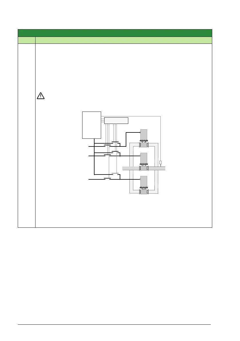
See parameter 8119 AUTOCHNG LEVEL for an overview of the Autochange function.
The drive always coasts to stop when the Autochange function is performed. The
Autochange enabled selection requires parameter 8120 INTERLOCKS > 0.
WARNING! When enabled, the Autochange function requires the interlocks (8120
INTERLOCKS > 0) enabled. During the Autochange function the power output is
interrupted and the drive coasts to stop, preventing damage to the contacts.
-0.1 = TEST MODE – Forces the interval to value 36…48 s.
0.0 = NOT SEL – Disables the Autochange function.
The operating time interval (the time when the start signal is on) between automatic
motor changes.
Group 81: PFA control
Code Description Range Resolution Default S
PFC with Autochange mode
Relay logic
ACS320

Table of Contents

Other manuals for ABB ACS320

Related product manuals