EasyManua.ls Logo

ABB ACS880-604

ABB ACS880-604
134 pages
To Next Page IconTo Next Page
To Next Page IconTo Next Page
To Previous Page IconTo Previous Page
To Previous Page IconTo Previous Page
Loading...
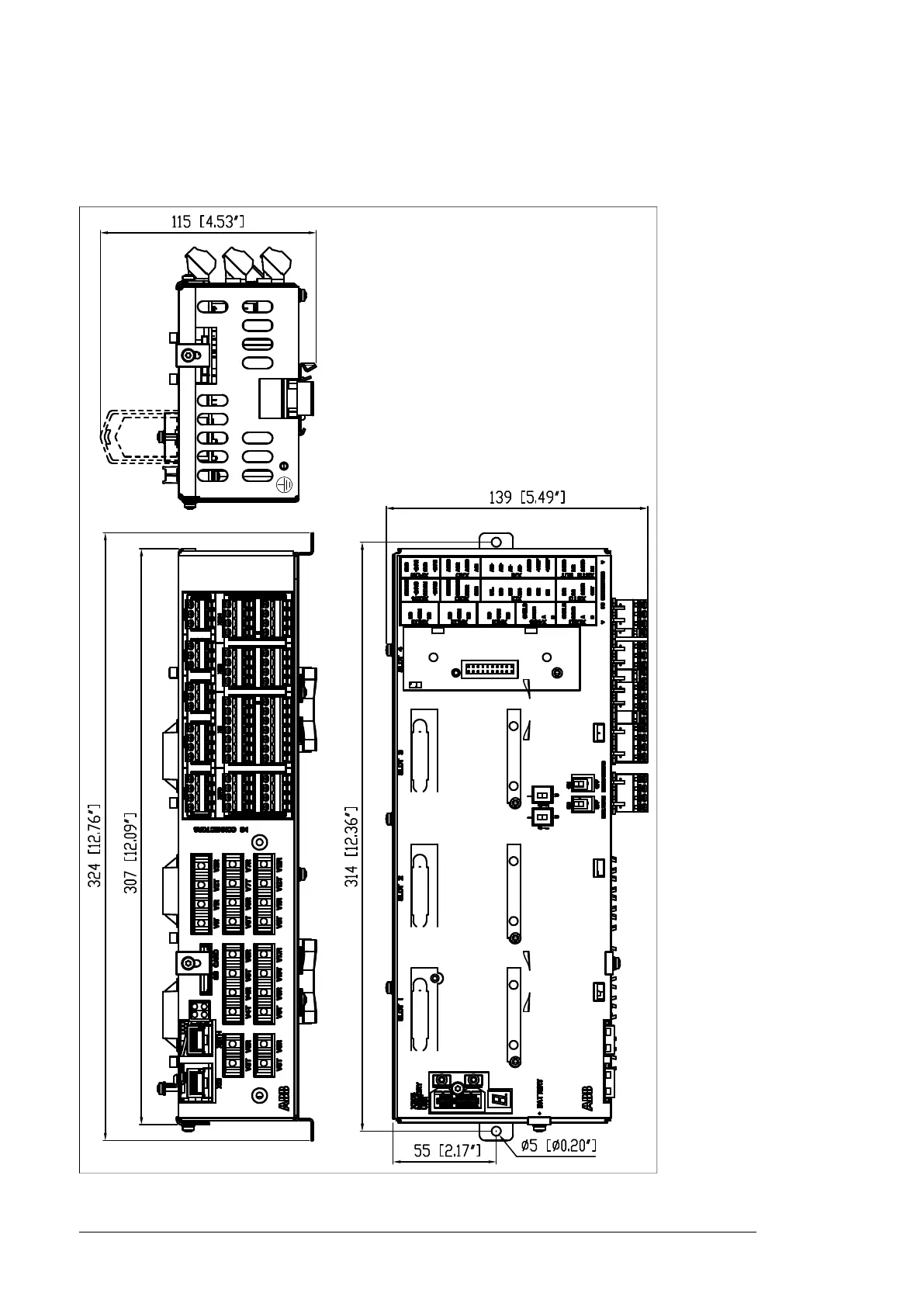
Control electronics
BCU control unit
114 Dimension drawings

Table of Contents

Related product manuals